Bildegalleri

Landlig eiendom på Starum med flott utsikt mot Mjøsa. Våningshus, låve og garasje. Nærhet til fine turområder.
Nøkkelinfo
- Boligtype
- Enebolig
- Eieform
- Eier (Selveier)
- Internt bruksareal
- 252 m² (BRA-i)
- Balkong/Terrasse
- 23 m² (TBA)
- Byggeår
- 1850
- Energimerking
- G - Oransje
- Tomteareal
- 3 182 m² (eiet)
- Boligselgerforsikring
- Ja
Velkommen
Velkommen til Mjøsvegen 974!
Beliggenhet
Eiendommen ligger i et landlig og naturskjønt område på Starum, mellom Kapp og Skreia i Østre Toten kommune. Det er ca. 6 km til Skreia sentrum og 7 km til Lena sentrum. Det er bussforbindelse med Ringruta i umiddelbar nærhet. I Kapp sentrum er det blant annet dagligvare, barneskole og barnehage.
Eiendommen ligger idyllisk til med flott utsikt over Mjøsa. Eiendommen har umiddelbar nærhet til fantastiske turområder innover i skog og mark, noe som gir gode rekreasjonsmuligheter på helårsbasis. Vinterstid kan du benytte deg av milevis med oppkjørte skiløyper i kommunen og om sommeren finner du idylliske badeplasser langs Mjøsas bredder.
Det er kort vei til Norsk hestesenter på Starum som byr på mange muligheter for den hesteinteresserte. Kapp har et eget idrettslag med fotball og allidrett på agendaen, med alderbestemte lag for gutter og jenter. Idrettsplassen, Fauchaldplassen, ligger flott til med utsikt over Mjøsa og rommer grusbane, kunstgressbane, gressbane og kiosk. For golfentusiaster kan Gjøvik og Toten Golfklubb på Sillongen friste med 9-hulls bane i herlige omgivelser. Totenbadet kan også anbefales, og på Lena er det et nyere treningssenter.
Kapp Melkefabrikk har mange aktiviteter hele året; blant annet kulturskolen Mjølkefabrikken. Kapp er ellers et populært besøksmål i sommerhalvåret, hvor hjuldamperen DS Skibladner anløper sommerstid. Stedet har også båthavn og campingplass, samt arrangementer som konserter og show om sommeren.
Det er også kort vei til Skreia, et hyggelig tettsted ved foten av Totenåsen, med et aktivt lokalmiljø og et godt utvalg av servicetilbud. Her finner du blant annet dagligvarebutikk, kafé, frisør, legekontor, bensinstasjon og ulike håndverks- og servicebedrifter. Tettstedet har også barnehage og barneskole, samt gode idretts- og fritidstilbud gjennom Skreia IL, som tilbyr både fotball, ski og allidrett.
Området har et rikt kulturliv og et sterkt lokalsamhold, med blant annet kulturhuset og Skreia kino som samlingspunkt. I nærområdet ligger også Skreia stasjon, hvor den gamle Tertittenbanen skaper nostalgisk stemning og minner om stedets jernbanehistorie.
Fra Skreia er det kort vei til flotte friluftsområder både langs Mjøsa og innover i Totenåsen, med gode tur-, ski- og sykkelmuligheter året rundt. Sommerstid kan du nyte bading og båtliv ved Totenvika, mens vinteren byr på oppkjørte skiløyper rett fra sentrum.
Servicetilbud:
Dagligvarehandelen kan gjøres på Kiwi Kapp, som ligger ca. 10 min unna med bil. Like ved finner du restauranten Toscana Kapp. Det tar få minutter med bil til Lena, som er Totens handels- og servicesenter. Der du finner vinmonopol, kafé, Fellskjøpet, Europris og flere dagligvarebutikker.
For ytterligere servicetilbud kan turen legges til Gjøvik med kjøpesenteret CC og flere hyggelige spisesteder, eller til Hamar som har alt av bymessige fasiliteter. Området gir mulighet for offentlig kommunikasjon med buss. Nærmeste holdeplass er Blindtarmen, som ligger ca. 1,5 kilometer fra eiendommen.
Togstasjonen på Raufoss ligger ca. 30 min unna med bil. Det tar ellers ca. 15 min til Lena, 25 min til Gjøvik, 60 min til Hamar og 45 min til Minnesund. Fra eiendommen er det ca. 4,5 km til Kapp barnehage og Kapp barneskole. På Lena er det både ungdomsskole og to videregående skoler.
Adkomst
Se kart. Eiendommen er tilknyttet offentlig vei.
Jord, skog og tun
Eiet tomt som er flat/skrånende og opparbeidet med plen og beplantning. Gruset gårdsplass.
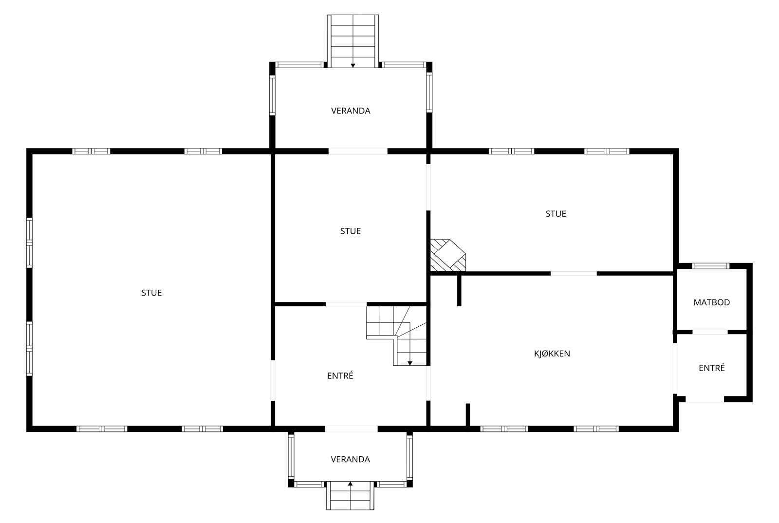
Innhold og standard
Bolig med primær-areal på 228 m² over 2 etasjer. Veranda mot øst i begge etasjer, overbygget. Garasje med biloppstillingsplass og skåle samt låve med mange muligheter.
Enebolig:
Boligen er fra omkring 1850 tallet og noe modernisert i senere tid. Boligen har noe enklere standard og god planløsning.
Murt/støpt ringmur med kryperom under deler av bygget, med utvendig adkomst. På resterende av bygget er blindkjeller. Yttervegger i tømmer/laft. Stående utvendig trekledning. Mønet skråtak i trekonstruksjoner Kaldt loft. Taket er tekket med betongtakstein. Utvendige beslag, takrenner og nedløp i metall. Vindskier og toppbord i treverk. Trevinduer med enkle gass og varevindu. Ytterdører og balkongdører i treverk med enkle glass. Veranda med utgang fra kammers i 1. etasje og fra ett soverom i 2. etasje. Konstruksjoner, overflater, rekkverk og håndlist i treverk. Overbygget. I 1. etasje er trapp til terreng. Overbygget inngangsparti med trapp/veranda utført i trekonstruksjoner. Støpt trapp/gulv.
Innvendig:
Innvendige overflater er hovedsakelig preget av:
Gulv: Laminat og heltre.
Vegg: Trepanel.
Himling: Trepanel og himlingsplater.
Innvendige trapper mellom etasjer er utført i trekonstruksjoner. Innvendige dører utført i malt treverk.
Bad:
Gulv: Fliser.
Vegg: Fliser.
Himling: Malte glatte flater.
Baderomsinnredning med glatte fronter, heldekkende servant og speilskap over med tilhørende belysning. Dusjhjørne og gulvmontert toalett. Det er varme i gulv og mekanisk avtrekk på vegg.
Kjøkken:
Kjøkkeninnredning med skrog i heltre og laminat, heltre benkeplate med kjøkkenkum. Det er plass til integrert koketopp og stekeovn. Det er plass til frittstående kjøleskap, oppvaskmaskin og fryseskap.
Lekkasjestopper anbefales montert på utsatte steder. Kjøkkenventilator er montert over komfyr.
Teknisk:
Synlige vannrør i: Kobber/metall. Innvendig hovedstoppekran og vannmåler er plassert i kjeller. Synlige avløpsrør i: Plast og soil/støpejern. Ventilasjonen består av naturlig ventilasjon. Frisk tilluft blir tilført
gjennom ventil i yttervegg, ventiler i vindu eller gjennom aktiv lufting med vinduer. Brukt luft trekkes ut uten bruk av vifter. Varmepumpe luft/luft er montert i hall. Det anbefales å lede kondensvann fra varmepumpa vekk fra grunnmur. Varmtvannsbereder på ca. 200 liter. Bereder er plassert i kjeller. El-anlegg med automatsikringer. Inntak med knivsikringer. I hovedsak åpent ledningsnett. Sikringsskapet er plassert i hall.
- Røykvarsler
- Brannslukningsapparat
Låve:
Byggeår: 1956
Tradisjonell låve oppført på dels støpt og murt fundamentering. Tidligere gjødselkjeller under deler av bygningen. Vegger over bakken er oppført i bindingskverkskonstruksjoner utvendig kledd med malt trepanel. Deler av bygningen er murt. Mønet saltak med trekonstruksjoner, tekket med eternittplater (asbestholdige). Etasjeskiller og kjørebru i tre- og betongkonstruksjoner. Låvebrufundament er murt/støpt. Plassbygde dører. Garasje, uthus o.l. er ikke teknisk vurdert på linje med bolighuset. Tilstandsgrad er derfor ikke angitt. Bygningen har vedlikeholdsbehov.
Garasje:
Byggeår: 1960
Garasje/uthus oppsatt på murt/støpt grunnmur. Støpt plate må mark. Vegger er over bakken utført i trekonstruksjoner, utvendig malt trepanel. Mønet skråtak i trekonstruksjoner tekket med metallplater. Plassbygde dører og leddport. Garasje, uthus o.l. er ikke teknisk vurdert på linje med bolighuset. Tilstandsgrad er derfor ikke angitt. Bygningen har vedlikeholdsbehov.
Bygningers arealer
Bolighus
Totalt BRA (bruksareal): 252 kvm
BRA-i totalt: 252 kvm
1. etasje: 126 kvm.
2. etasje: 126 kvm.
Låve:
753 kvm bra-e.
Garasje:
48 kvm bra-e.
TBA totalt: 23 kvm
Informasjon om arealbegrepene
Fra og med 1. januar 2024 er det innført nye arealkrav, arealbegrep og måleprinsipper for bygninger gjennom NS 3940:2023. Det innebærer bl.a. at tidligere begrep som p-rom (primærrom) og s-rom (sekundærrom) ikke lenger blir benyttet. De nye arealbegrepene for bolig er:
BRA-i (Internt bruksareal) er areal innenfor omsluttende vegger. Det er for eksempel stue, soverom, kjøkken, entré, bad, innvendig bod og rom for kommunikasjon mellom disse. Dersom boligen består av en bruksenhet
BRA-e (Eksternt bruksareal) er for eksempel en ekstern bod, kjellerstue med egen inngang, gjesterom, tilleggsbygg eller andre rom som tilhører boenheten, men som ikke er direkte tilknyttet det interne arealet. Tilleggsbygg kan være for eksempel garasje, naust eller utvendig bod.
BRA-b (Innglasset balkong) er innglassede balkonger, verandaer og altaner som tilhører boenheten.
TBA (Terrasse- og balkongareal) er arealet av terrasser, altaner, verandaer og åpne balkonger som er tilknyttet boenheten.
GUA (Gulvareal) og ALH (Areal med lav takhøyde) kan opplyses om dersom det er aktuelt for den spesifikke boligen. GUA og ALH skal bare oppgis sammen med BRA for å forhindre uklarhet om hva som er boligens bruksareal.
Boligens bruksareal (BRA) utgjør totalt arealene for BRA-i, BRA-e og BRA-b, dvs.:
BRA-i + BRA-e + BRA-b = BRA.
Arealer for andre bygningstyper som ikke er bolig/fritidsbolig, f.eks. landbruksbygninger, opplyses som BRA (Bruksareal), og/eller BTA (Bruttoareal/Grunnflate).
Ta kontakt med ansvarlig megler dersom det skulle være spørsmål knyttet til arealbegrepene.
Oppvarming, piper og ildsteder
Oppvarming består av vedfyring og strøm. Ventilasjon består av naturlig ventilasjon. Murte piper med ildsteder montert.
Reguleringsforhold
Deler av eiendommen er under vedtatt reguleringsplan : Fv 92 Bilitt - Kapp.
Arealformål: Jordbruk og skogbruk.
Hensyn landskap
Gul sone støy iht T-1442
LNFR areal.
Odel - Konsesjon
Eiendommen er under arealgrensene for konsesjonspliktig landbrukseiendom, og er dermed konsesjonsfri. Siden eiendommen er over to dekar må kjøper fylle ut et egenerklæringsskjema om konsesjonsfrihet som må godkjennes av kommunen. Eiendomsmegler vil bistå med dette.
Eiendommen oppfyller ikke arealkravene til at det kan opparbeides odel.
Boligkjøperforsikring
Det gjøres oppmerksom på at forbrukerkjøpere har anledning til å tegne boligkjøperforsikring. Forsikringen gir kjøper bistand etter avhendingsloven og dekker all advokatbistand, skadetakster og utgifter til rettsapparatet. Forsikringen tegnes senest på kontraktsmøtet. Les mer om forsikringen i salgsoppgaven. Kjøpere som handler som ledd i næringsvirksomhet har ikke anledning til å tegne boligkjøperforsikring iht. vilkår fra forsikringsselskapet.
Oppgjør
Kjøpesum og kjøpers omkostninger, samt pantedokument tilknyttet eventuelt lån, skal være innbetalt til eiendomsmeglers klientkonto senest dagen før avtalt overtakelse. Hvis kjøper ikke ønsker en hjemmelsoverføring av eiendommen til seg, må det tas forbehold om dette i budet
Tilbud om lånefinansiering og forsikringer
Landkreditt Bank kan gi deg lånetilbud til finansiering av eiendommen. Våre meglere kan opprette kontakt mellom deg og en kunderådgiver i banken og som kunde hos oss lover banken en hurtig behandling av din låneforespørsel. Landkreditt Forsikring kan gi deg forsikringstilbud på eiendommen du velger å kjøpe. Samler du flere forsikringer hos Landkreditt Forsikring, kan du få inntil 23% rabatt.
Landkreditt Bank og Forsikring er lokalt til stede i store deler av Norge og tar gjerne bank- eller forsikringspraten hjemme hos deg.
Budgivning
Forbrukerinformasjon om budgivning er vedlagt i salgsoppgaven.
Alle bud, budforhøyelser og budendringer skal inngis skriftlig til megler. Det første budet skal legitimeres og med budgivers signatur.Det første budet skal legitimeres og med budgivers signatur/BankID.
Bud inngis fortrinnsvis via budgivningsplattformen Tryggbudgivning.no på nett hvor legitimasjon og signatur bekreftes ved å benytte e-signatur, eksempelvis BankID. Link til budskjema på Tryggbudgivning.no ligger tilgjengelig i nettannonsen på Finn.no, link kan også fås tilsendt av megler. Om ikke denne benyttes kan ordinært budskjema i salgsoppgaven brukes. Megler skal så snart som mulig bekrefte skriftlig overfor budgiver at bud er mottatt.
Bud som ikke er skriftlig, eller som har kortere akseptfrist enn til kl. 12.00 første virkedag etter siste annonserte visning, vil ikke bli formidlet til selger. Megler skal heller ikke formidle bud med forbehold om at budet eller forbehold i budet skal holdes skjult (hemmelig) for andre budgivere og interessenter. Et bud er bindende for budgiver når budet er kommet til selgers kunnskap. Selger står fritt til å akseptere eller forkaste ethvert bud, og er således ikke forpliktet til å akseptere det høyeste budet på eiendommen.
Et bud er bindende for budgiver når budet er kommet til selgers kunnskap. Selger står fritt til å akseptere eller forkaste ethvert bud, og er således ikke forpliktet til å akseptere det høyeste budet på eiendommen.
Megler skal, i den grad det er nødvending og mulig, informere de involverte i budrunden skriftlig om status i budgivningen.
Megler skal legge til rette for en forsvarlig avvikling av budrunden, og for at budene skal kunne bli behandlet og videreformidlet skriftlig til alle involverte parter må ethvert bud ha en tilstrekkelig lang akseptfrist. Selger må skriftlig akseptere budet før budaksept kan formidles til budgiver. Bud og senere budforhøyelser/endringer bør derfor ha akseptfrist på minimum 30 minutter fra budet inngis. Budforhøyelser bør derfor skje i god tid før fristens utløp.
Selger og kjøper har krav på å få utlevert kopi av budjournalen straks etter at handel er kommet i stand. Alle som har inngitt bud på eiendommen kan på forespørsel få en kopi av anonymisert budjournal etter at budrunden er avsluttet.
Lovanvendelse og kontraktsbetingelser
Eiendommen selges etter reglene i avhendingsloven. Selgers eventuelle mangelsansvar og kjøpers undersøkelsesplikt reguleres av bestemmelsene i avhendingsloven kapittel 3.
Det er vedtatt endringer i avhendingsloven som trådte i kraft 01.01.2022. Som følge av endringene vil det gjelde ulike regler, om kjøper er en forbrukerkjøper eller ikke. Dette er redegjort for nedenfor:
Følgende gjelder ved salg til forbrukerkjøper*:
* Med forbrukerkjøper menes kjøp av eiendom når kjøperen er en fysisk person som ikke hovedsakelig handler som ledd i næringsvirksomhet.
For å få et best mulig beslutningsgrunnlag er det viktig å lese salgsdokumentene grundig før visning, og uansett før budgivning. Salgsoppgaven inneholder sentrale opplysninger fra eiendomsmegleren, tilstandsrapport fra bygningssakkyndig, egenerklæring fra selger og andre dokumenter med relevant innhold. Uavhengig av om det er lest eller ikke, regnes Kjøper for å kjenne til det som går tydelig fram av salgsdokumentene.
I tillegg til å sette seg grundig inn i dokumentene, oppfordres interessenter til å undersøke eiendommen nøye.
Eiendommen kan ha en mangel dersom den ikke samsvarer med kravene til kvalitet, utrustning og annet som følger av avtalen, jf. avhendingsloven § 3-1. Videre vil eiendommen ha mangel dersom det er holdt tilbake eller gitt uriktige opplysninger om eiendommen som har virket inn på avtalen, jf. avhendingsloven §§ 3-7 og 3-8.
Ved salg til forbrukerkjøper er det ikke anledning til å ta forbehold om at eiendommen selges "som den er" eller med lignende generelle forbehold. Forbehold om eiendommens tilstand som er spesifisert nok til å kunne innvirke på kjøpsvurderingen, anses likevel som en del av avtalen, og vil derfor ikke kunne påberopes som mangel jf. avhendingsloven § 3-9 (2) andre setning.
Hvis det ikke er avtalt noe særskilt, gjelder bestemmelsene i avhendingsloven §§ 3-2 til 3-6 om generelle krav til eiendommen, arealavvik og tilbehør. Disse bestemmelsene supplerer altså det som følger av avtalen.
Boligens alder, type og synlige tilstand har betydning for hvilken kvalitet og stand som kan forventes. For eksempel kan det ikke forventes at en eldre bolig har samme tilstand som en ny eller nyere bolig. Eldre boliger er vanligvis bygget etter andre krav og med andre materialer, og vil i tillegg ha varierende grad av slitasje og skader som følge av blant annet bruk, værpåkjenninger og annen aldersforringelse. Skader og forringelser som er naturlige følger av dette vil normalt ikke bli ansett som kjøpsrettslige mangler.
Kjøper kan ikke gjøre gjeldende som en mangel noe kjøperen kjente eller måtte kjenne til da avtalen ble inngått. Dersom kjøperen før avtaleinngåelsen har undersøkt eiendommen, eller uten rimelig grunn unnlatt å følge oppfordringen om undersøkelse, kan kjøperen ikke gjøre gjeldende som mangel noe han burde blitt kjent med ved undersøkelsen.
Det gjøres oppmerksom på at selv om det skulle være mangel ved eiendommen, må kjøperen selv dekke tap og kostnader opp til et beløp på 10 000 kroner (kjøpers "egenandel"/ "egenrisiko"), om ikke annet er sagt i loven.
Kjøpers egenrisiko har ikke betydning for spørsmålet om det foreligger en mangel. Beløpet kommer imidlertid til fradrag i en eventuell utmåling av prisavslag eller erstatning dersom det er en mangel ved eiendommen som selger er ansvarlig for.
Følgende gjelder ved salg til noen som hovedsakelig handler som ledd i næringsvirksomhet (ikke-forbrukerkjøper):
Dersom kjøper ikke er forbrukerkjøper selges eiendommen "som den er". Eiendommen selges i den forfatning den er under visning. Salget følger Avhendingsloven § 3-9:
Endå eigedomen er selt 'som han er' eller med liknande allment atterhald, har eigedomen likevel mangel der dette følger av §§ 3-7 eller 3-8. Eigedomen har også mangel dersom han er i vesentlig ringare stand enn kjøparen hadde grunn til å rekne med ut i frå kjøpesummen og tilhøva ellers. Kjøper kan derfor ikke påberope seg noen andre bestemmelser etter avhl. Kapittel 3, enn det som følger direkte av § 3-9. Dette reduserer selgers ansvar etter avhendingsloven og vil være en del av kontraktsvilkårene, dersom man ikke reserverer seg mot avhl. § 3-9 ved budgiving.
Informasjonen ovenfor om kjøpers undersøkelsesplikt, herunder oppfordringen om å undersøke eiendommen nøye, gjelder også for kjøpere som ikke anses som forbrukere.
Ved spørsmål, kontakt megler for mer informasjon.
I alle tilfeller forutsettes det, med mindre annet er avtalt, at hjemmel overføres til kjøper ved overtakelse.
Salgsoppgaven beskriver vesentlig og lovpålagt informasjon om eiendommen
Se komplett salgsoppgaveNyttige lenker
Nærområdet
Landkreditt Eiendom
Annonseinformasjon
| FINN-kode | 431170970 |
|---|---|
| Sist endret | 12. mars 2026 03:14 |
| Referanse | 40250027 |
Annonsene kan være mangelfulle i forhold til lovpålagt opplysningsplikt. Før bindende avtale inngås oppfordres interessenter til å innhente komplett informasjon fra meglerforetaket, selger eller utleier.















































