Bildegalleri

Velkommen til Bjønnavegen 21
Sandvollan - Romslig familiebolig med attraktiv beliggenhet. Betydlig påkostet de senere år. Fjordutsikt. Gode solforhol
Prisantydning3 790 000 kr
Nøkkelinfo
- Boligtype
- Enebolig
- Eieform
- Selveier
- Soverom
- 3
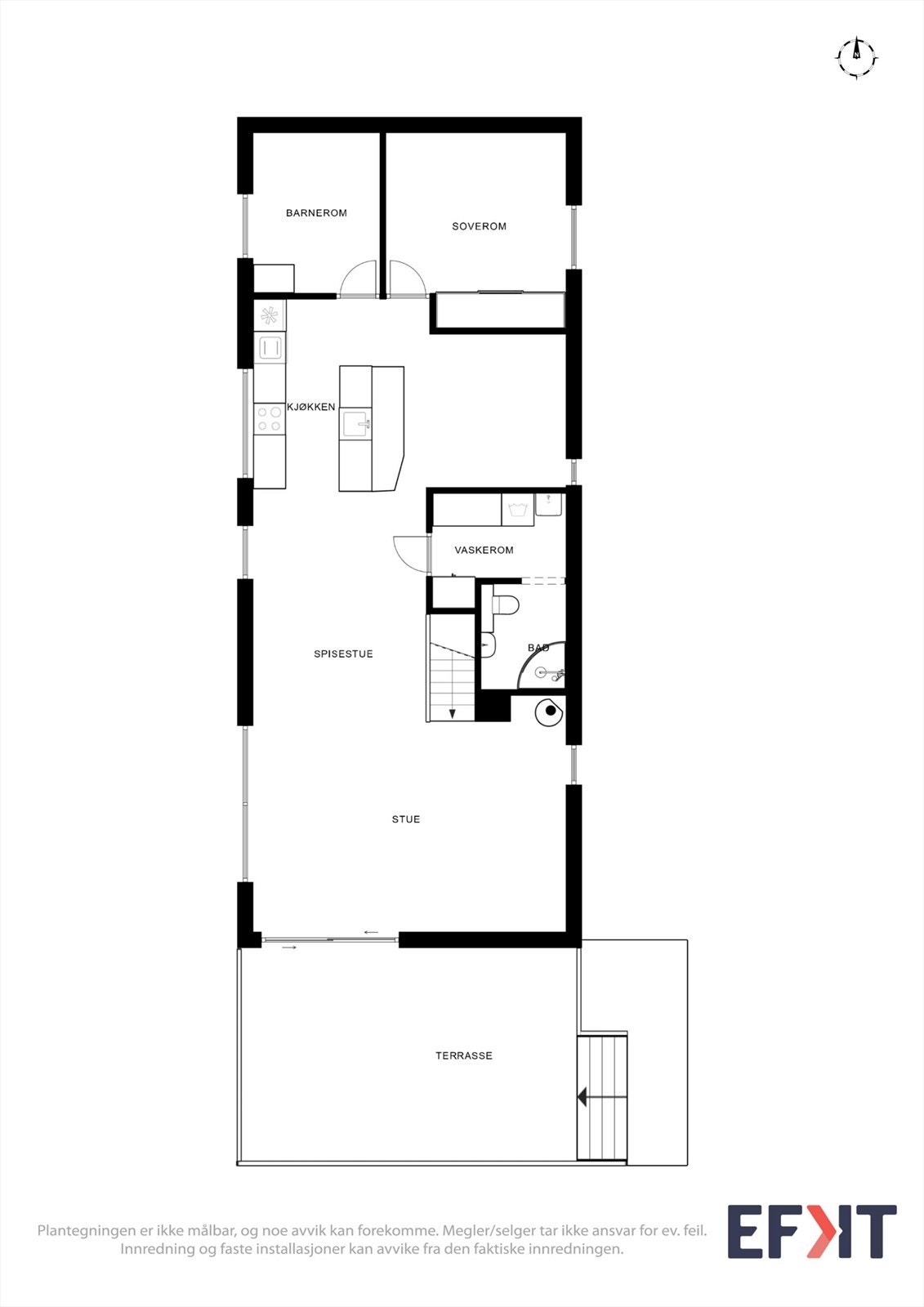
- Internt bruksareal
- 162 m² (BRA-i)
- Bruksareal
- 182 m²
- Eksternt bruksareal
- 20 m² (BRA-e)
- Balkong/Terrasse
- 36 m² (TBA)
- Etasje
- 2
- Byggeår
- 1971
- Energimerking
- Tomteareal
- 1 046 m² (eiet)
Fasiliteter
Balkong/Terrasse
Barnevennlig
Bredbåndstilknytning
Garasje/P-plass
Hage
Offentlig vann/kloakk
Peis/Ildsted
Rolig
Utsikt
Turterreng
Om boligen
Attraktiv boligeiendom med flott beliggenhet
Søkt om fasadeendring, samt utbygging av garasje på 7*6 meter med veranda over. Søknad godkjent i juni 2022
Fasadeendring og etterisolering, ny kledning og skifte av vinduer i forhold til Enova krav.
Oppgradering av energi merking fra E til B, kvalifiserer til grønt boliglån
Drenering fra 2012
Nytt tak i 2013, beslag og takrenner/nedløp
Kjøkken fra 2024
Bad 2026
Stor del av el-anlegg oppgradert
Oppgradering av vaskerom må påberegnes
Velkommen på visning
Søkt om fasadeendring, samt utbygging av garasje på 7*6 meter med veranda over. Søknad godkjent i juni 2022
Fasadeendring og etterisolering, ny kledning og skifte av vinduer i forhold til Enova krav.
Oppgradering av energi merking fra E til B, kvalifiserer til grønt boliglån
Drenering fra 2012
Nytt tak i 2013, beslag og takrenner/nedløp
Kjøkken fra 2024
Bad 2026
Stor del av el-anlegg oppgradert
Oppgradering av vaskerom må påberegnes
Velkommen på visning
NB: Knappen for å vise hele beskrivelsen har kun en visuell effekt.
NB: Knappen for å vise hele beskrivelsen har kun en visuell effekt.
Salgsoppgaven beskriver vesentlig og lovpålagt informasjon om eiendommen
Se komplett salgsoppgaveNærområdet
Aktiv Steinkjer
Annonseinformasjon
| FINN-kode | 431009229 |
|---|---|
| Sist endret | 27. mars 2026 13:02 |
| Referanse | 1708250223 |
Annonsene kan være mangelfulle i forhold til lovpålagt opplysningsplikt. Før bindende avtale inngås oppfordres interessenter til å innhente komplett informasjon fra meglerforetaket, selger eller utleier.






























