Bildegalleri

Velkommen til Sagene og Maridalsveien 144 B!
Lys, fin & luftig 3-R hjørneleilighet oppusset i 2025 I Ingen innsyn & nydelig utsikt I Oppvarming/VV & bredbånd inkl.
Nøkkelinfo
- Boligtype
- Leilighet
- Eieform
- Andel
- Soverom
- 2
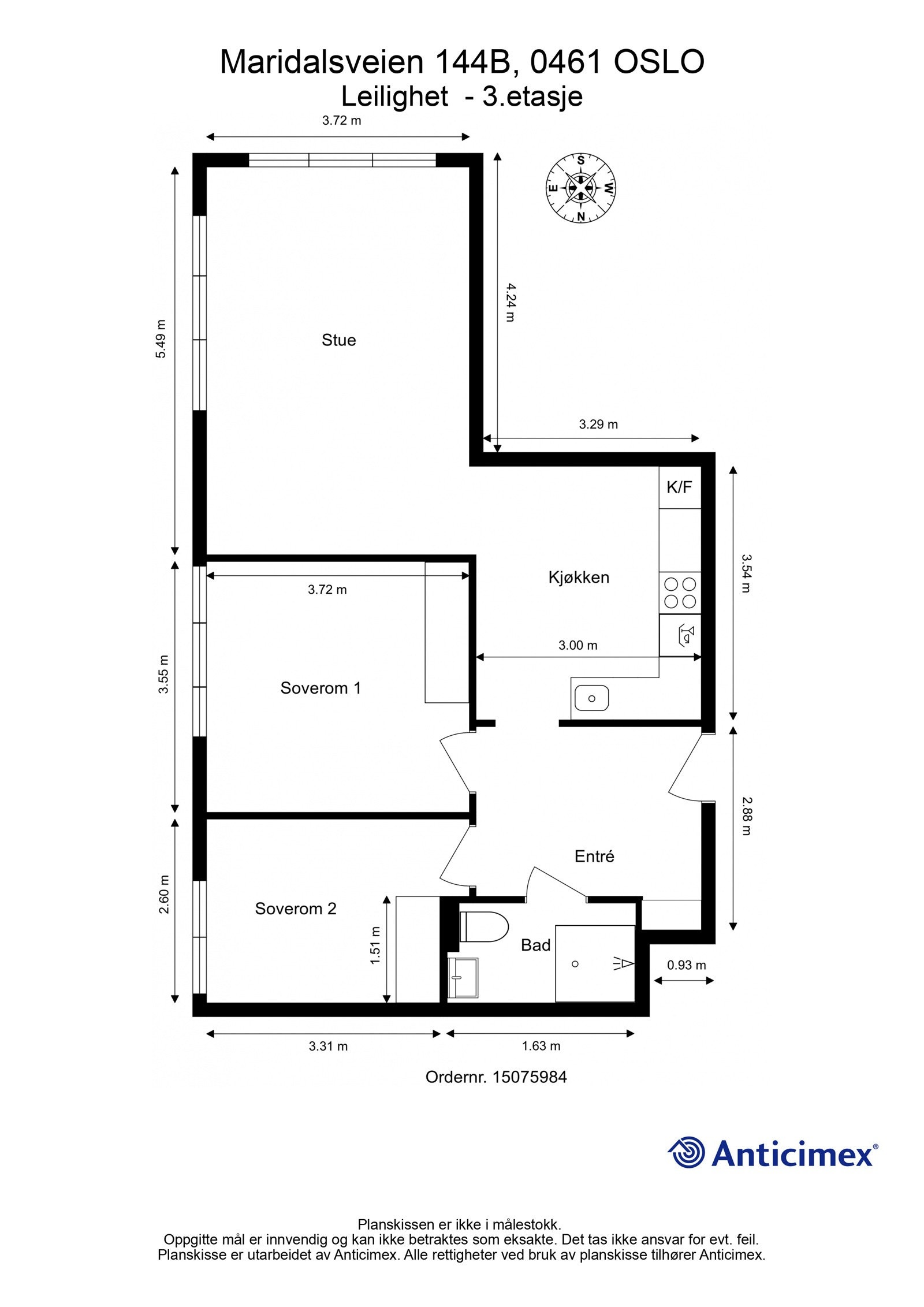
- Internt bruksareal
- 68 m² (BRA-i)
- Bruksareal
- 71 m²
- Eksternt bruksareal
- 3 m² (BRA-e)
- Etasje
- 3
- Byggeår
- 1938
- Energimerking
- G - Mørkegrønn
- Rom
- 3
- Tomteareal
- 890 m² (eiet)
Fasiliteter
Visning
Om boligen
En lys og innbydende 3-roms hjørneleilighet oppusset i 2025. Leiligheten har en fin beliggenhet på hjørnet i byggets 3.etasje, og har en god planløsning. Store vindusflater slipper inn rikelig med naturlig lys, samtidig som det ikke er innsyn og fin utsikt. Leiligheten er pent oppusset i 2025 - her kan du flytte rett inn!
Leiligheten ligger sentralt til i et svært attraktivt og rolig boligområde sentralt på Sagene, ved den gamle trehusbebyggelsen og med Akerselva med turveier rett utenfor døren.
- Hjørneleilighet oppusset i 2025
- Store vinduer uten innsyn og fin utsikt
- God takhøyde på ca. 2,66 meter
- Flott kjøkken fra 2025 med integrerte hvitevarer
- 2 fine soverom med garderober
- Lekkert flislagt baderom oppusset i 2025
- Oppvarming, varmtvann og bredbånd inkl.
- Kjellerbod og fellesvaskeri
- Ingen forkjøpsrett
Salgsoppgaven beskriver vesentlig og lovpålagt informasjon om eiendommen
Se komplett salgsoppgaveNyttige lenker
Nærområdet
&Partners Sagene
Annonseinformasjon
| FINN-kode | 430375720 |
|---|---|
| Sist endret | 16. mars 2026 03:15 |
| Referanse | 19250391 |
Annonsene kan være mangelfulle i forhold til lovpålagt opplysningsplikt. Før bindende avtale inngås oppfordres interessenter til å innhente komplett informasjon fra meglerforetaket, selger eller utleier.



































