Bildegalleri

Oskar Braatens vei 5A - flott beliggende enderekkehus med god intern beliggenhet "midt i smørøyet" på Sofiemyr
Flott beliggende enderekkehus med fin uteplass - 3 soverom og bad (fra 2023) + wc - Barnevennlig rett ved ny barneskole
Nøkkelinfo
- Boligtype
- Rekkehus
- Eieform
- Eier (Selveier)
- Soverom
- 3
- Internt bruksareal
- 120 m² (BRA-i)
- Bruksareal
- 123 m²
- Eksternt bruksareal
- 3 m² (BRA-e)
- Balkong/Terrasse
- 31 m² (TBA)
- Byggeår
- 1969
- Energimerking
- G - Rød
- Tomteareal
- 125 m² (eiet)
Fasiliteter
Om boligen
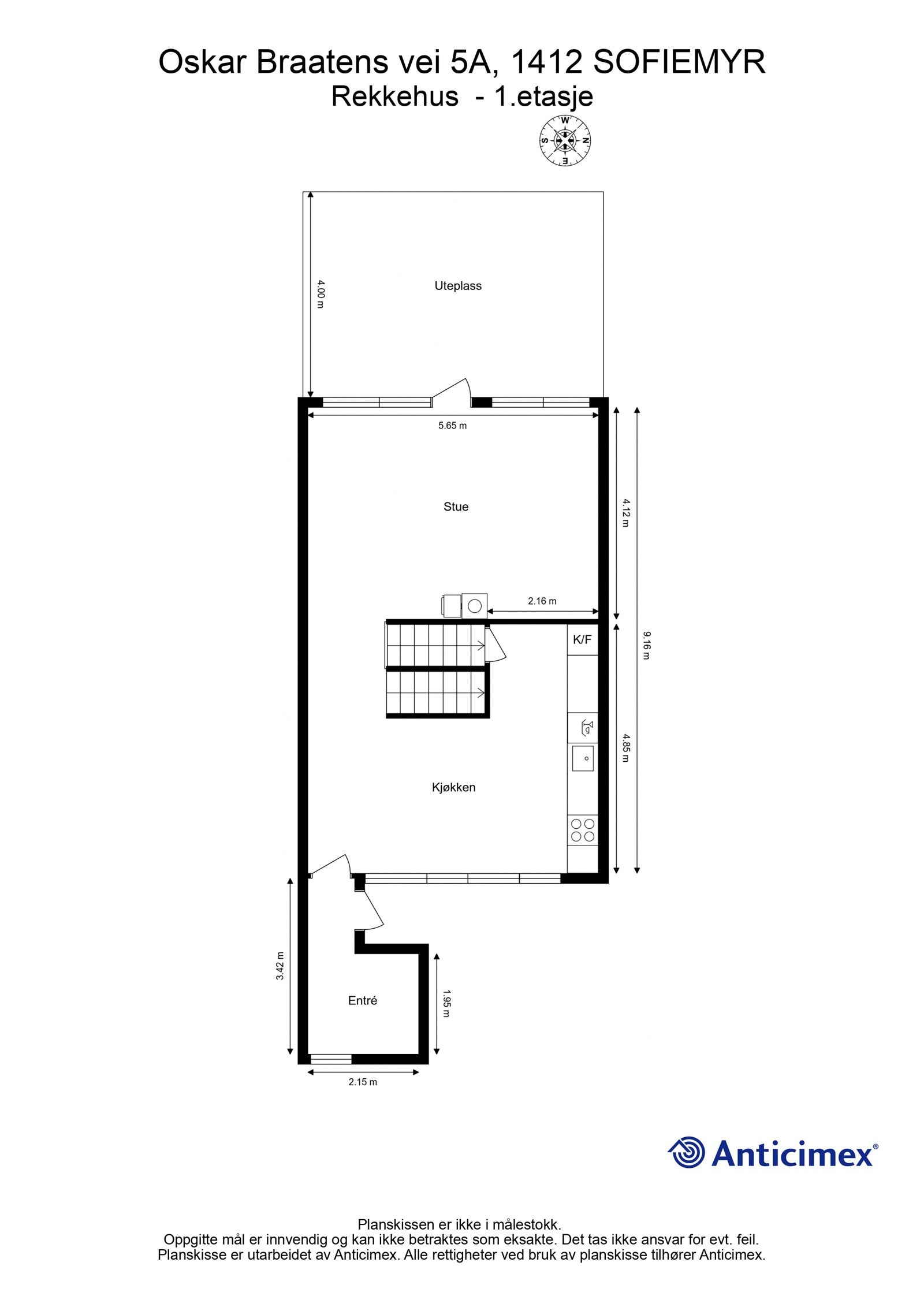
Oskar Braatens vei 5A - flott enderekkehus med svært god intern beliggenhet. Eiendommen ligger "midt i smørøyet" på Sofiemyr med trygg og kort gangavstand til flere barnehager, ny barneskole, ungdomsskole og videregående skole. I tillegg ligger Sofiemyr idrettspark med gress- og kunstgressbaner, svømmehall, sandvolleyballbaner og marka med flotte turmuligheter sommer og vinter, i kort avstand fra boligen.
Det er 3 soverom (hovedsoverom med utgang til altan på 9 kvm), bad fra 2023, wc-rom, velutstyrt kjøkken fra 2021 og romslig stue med god plass til sofagruppe og spisebord. Usjenert og solfylt uteplass mot vest (på 22 kvm). Uteplassen har utebelysning, utvendig stikkontakt og markise. Kjeller med potensiale og bodplass. Ekstra utvendig bod på 3 kvm. Parkering tilknyttet Bråten Garasjelag.
Salgsoppgaven beskriver vesentlig og lovpålagt informasjon om eiendommen
Se komplett salgsoppgaveNyttige lenker
Nærområdet
Nord Eiendomsmegling AS
Prisstatistikk
Oskar Braatens vei 5A
på annonsen
prisantydning per kvadratmeter
Prisfordeling
Pris per m² ligger 6 584 kr under snittet for rekkehus i Oppegård.
Grafen viser antall rekkehus solgt i Oppegård siste året fordelt på pris per m² - totalt 88 rekkehus
Antall boliger
Kvadratmeterpris tilsvarer prisantydning pluss fellesgjeld per kvadratmeter (p-rom eller BRA-i). Prisene i grafen er avrundet til nærmeste 1000 kr.
Annonsene kan være mangelfulle i forhold til lovpålagt opplysningsplikt. Før bindende avtale inngås oppfordres interessenter til å innhente komplett informasjon fra meglerforetaket, selger eller utleier.










































