Bildegalleri

Privatmegleren Park v/Anne Elisabeth Naper har gleden av å presentere Richard Baches vei 6B!
Solgt
Varden terrasse
Lekker 3-roms selveier med flott utsikt og overbygget terrasse | Heis fra garasje | Elbil-lader | Vannbåren gulvvarme
Prisantydning4 500 000 kr
Nøkkelinfo
- Boligtype
- Leilighet
- Eieform
- Eier (Selveier)
- Soverom
- 2
- Internt bruksareal
- 54 m² (BRA-i)
- Bruksareal
- 61 m²
- Eksternt bruksareal
- 7 m² (BRA-e)
- Balkong/Terrasse
- 12 m² (TBA)
- Etasje
- 1
- Byggeår
- 2017
- Energimerking
- C - Mørkegrønn
- Rom
- 3
- Tomteareal
- 3 082 m² (eiet)
- Boligselgerforsikring
- Ja
Fasiliteter
Balkong/Terrasse
Parkett
Heis
Barnevennlig
Rolig
Kabel-TV
Moderne
Sentralt
Garasje/P-plass
Fiskemulighet
Bademulighet
Turterreng
Offentlig vann/kloakk
Utsikt
Lademulighet
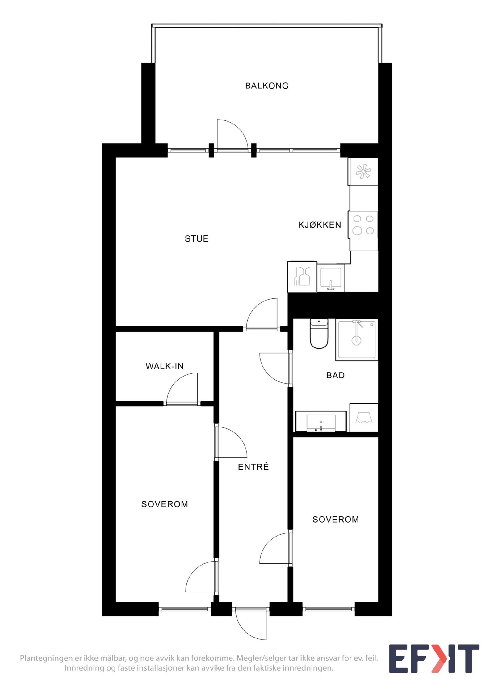
Om boligen
Velkommen til denne flotte 3-roms leiligheten med fantastisk utsikt og gjennomtenkte løsninger! Leiligheten har adkomst rett inn fra bakkeplan. Heis fra garasjen.
Spektakulær utsikt over Oslofjorden!
Perfekt for pendlere! 1 minutt til buss som korresponderer med båt til Aker Brygge / Lysaker.
Kort fortalt:
- Gjennomgående leilighet med egen inngang fra bakkeplan
- Smakfull leilighet med god planløsning og moderne standard.
- Vannbåren varme i gulvene
- Åpen og sosial kjøkkenløsning
- Stor walk-in garderobe og svært god bodplass
- 2 soverom
- Delikat flislagt bad
- Overbygget terrasse på 12 m²
- Stor felles takterrasse med panoramautsikt
- Garasje med elbil-lader.
- 1 minutt til buss som korresponderer med båt Aker Brygge/Lysaker
- Flotte turmuligheter rett inn i Nesoddmarka
- Kan overtas snarlig dersom ønskelig for kjøper
NB: Knappen for å vise hele beskrivelsen har kun en visuell effekt.
NB: Knappen for å vise hele beskrivelsen har kun en visuell effekt.
Salgsoppgaven beskriver vesentlig og lovpålagt informasjon om eiendommen
Se komplett salgsoppgaveNyttige lenker
Nærområdet

PrivatMegleren Park
Kun det beste på dine vegne
Simen August Haugen Floer
Trainee
Annonsene kan være mangelfulle i forhold til lovpålagt opplysningsplikt. Før bindende avtale inngås oppfordres interessenter til å innhente komplett informasjon fra meglerforetaket, selger eller utleier.


























