Bildegalleri

EiendomsMegler 1 ved Markus Tangvik har gleden av å presentere en moderne enebolig i et attraktivt og familievennlig område på Lohove. Foto: Krokstad&Nervik.
Lohove
SÆRDELES LEKKER ENEBOLIG FRA 2017 MED FINE UTEPLASSER. 2 bad og eget vaskerom. Vedfyring. Carport. Barnevennlig nabolag.
Prisantydning8 690 000 kr
Nøkkelinfo
- Boligtype
- Enebolig
- Eieform
- Eier (Selveier)
- Soverom
- 3
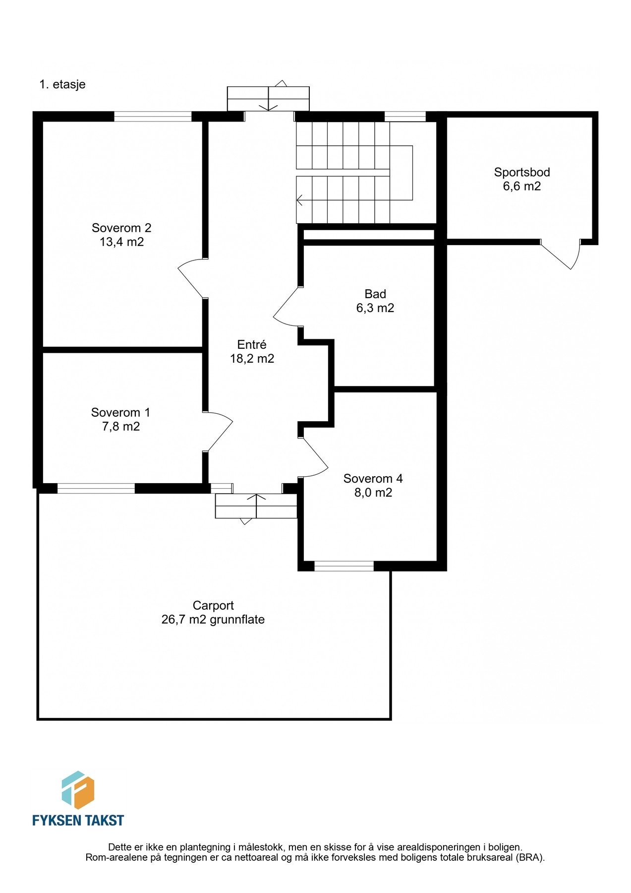
- Internt bruksareal
- 169 m² (BRA-i)
- Bruksareal
- 176 m²
- Eksternt bruksareal
- 7 m² (BRA-e)
- Balkong/Terrasse
- 26 m² (TBA)
- Byggeår
- 2017
- Energimerking
- B - Gul
- Rom
- 5
- Tomteareal
- 209 m² (eiet)
Fasiliteter
Barnevennlig
Balkong/Terrasse
Garasje/P-plass
Offentlig vann/kloakk
Parkett
Peis/Ildsted
Turterreng
Utsikt
Sentralt
Moderne
Rolig
Lademulighet
Balansert ventilasjon
Visning
mandag, 23. februar
17:30 – 18:15
Våre visninger har påmelding. Dette gjør vi for å kunne yte bedre service for våre kunder. Verdifullt for boligkjøper og for oss. Vi anbefaler at salgsoppgaven lastes ned digitalt før visning, og ring oss gjerne på forhånd for spørsmål om boligen. Passer ikke angitt tidspunkt, ta kontakt så finner vi en løsning. Skulle det mot formodning ikke være påmeldte til angitt visningstidspunkt vil ikke visning bli gjennomført.
Om boligen
EiendomsMegler 1 ved Markus Tangvik har gleden av å presentere en særdeles flott og moderne enebolig i Bjørkhaugvegen 25 B på Lohove. Her får du en stor familiebolig fra 2017 i endegate med et bruksareal på 176 kvadratmeter, store uteplasser og fine materialvalg.
Visningstidspunkt må avtales direkte med megler.
Kvaliteter
- Fantastisk enebolig fra 2017 med store oppholdsrom som er lett å innrede.
- Stor balkong og fin hage som er ypperlig å benytte i sommerhalvåret.
- Stilig JKE-kjøkken med god skap- og benkeplass samt praktisk kjøkkenøy.
- 2 stk. lekre baderom samt eget vaskerom.
- Barnevennlig beliggenhet med kort avstand til skoler og barnehager.
- Carport med 2 elbil-ladere. Biloppstillingsplass for totalt fire biler.
- Balansert ventilasjon og 2 stk varmepumper.
- Vedfyring.
Velkommen på visning!
Visningstidspunkt må avtales direkte med megler.
Kvaliteter
- Fantastisk enebolig fra 2017 med store oppholdsrom som er lett å innrede.
- Stor balkong og fin hage som er ypperlig å benytte i sommerhalvåret.
- Stilig JKE-kjøkken med god skap- og benkeplass samt praktisk kjøkkenøy.
- 2 stk. lekre baderom samt eget vaskerom.
- Barnevennlig beliggenhet med kort avstand til skoler og barnehager.
- Carport med 2 elbil-ladere. Biloppstillingsplass for totalt fire biler.
- Balansert ventilasjon og 2 stk varmepumper.
- Vedfyring.
Velkommen på visning!
NB: Knappen for å vise hele beskrivelsen har kun en visuell effekt.
NB: Knappen for å vise hele beskrivelsen har kun en visuell effekt.
Salgsoppgaven beskriver vesentlig og lovpålagt informasjon om eiendommen
Se komplett salgsoppgaveNærområdet
EiendomsMegler 1 Trondheim sentrum, Kongens gate
Vi loser deg trygt gjennom hele boligsalget
Annonseinformasjon
| FINN-kode | 429623022 |
|---|---|
| Sist endret | 13. feb. 2026 12:43 |
| Referanse | 32250286 |
Annonsene kan være mangelfulle i forhold til lovpålagt opplysningsplikt. Før bindende avtale inngås oppfordres interessenter til å innhente komplett informasjon fra meglerforetaket, selger eller utleier.








































