Bildegalleri

Velkommen til Blåkollstubben 13 - en eiendom spekket av ettertraktede kvaliteter!
Sørumsand
Perfekt for barnefamilien - moderne enebolig fra 2022 med 5 soverom, 2 stuer og marka rett ved | Integrert dobbelgarasje
Prisantydning7 690 000 kr
Nøkkelinfo
- Boligtype
- Enebolig
- Eieform
- Eier (Selveier)
- Soverom
- 5
- Internt bruksareal
- 169 m² (BRA-i)
- Bruksareal
- 212 m²
- Eksternt bruksareal
- 43 m² (BRA-e)
- Balkong/Terrasse
- 58 m² (TBA)
- Byggeår
- 2022
- Energimerking
- B - Oransje
- Rom
- 6
- Tomteareal
- 936 m² (eiet)
Fasiliteter
Balkong/Terrasse
Barnevennlig
Garasje/P-plass
Hage
Offentlig vann/kloakk
Parkett
Peis/Ildsted
Rolig
Utsikt
Turterreng
Balansert ventilasjon
Visning
mandag, 12. januar
18:30 – 19:30
Velkommen til visning! Meld deg på ved å trykke "visningspåmelding" i våre boligannonser. Visning med megler til stede vil ikke bli avholdt uten påmeldinger. Ta gjerne kontakt med megler i forkant av visningen om du har spørsmål.
VisningspåmeldingOm boligen
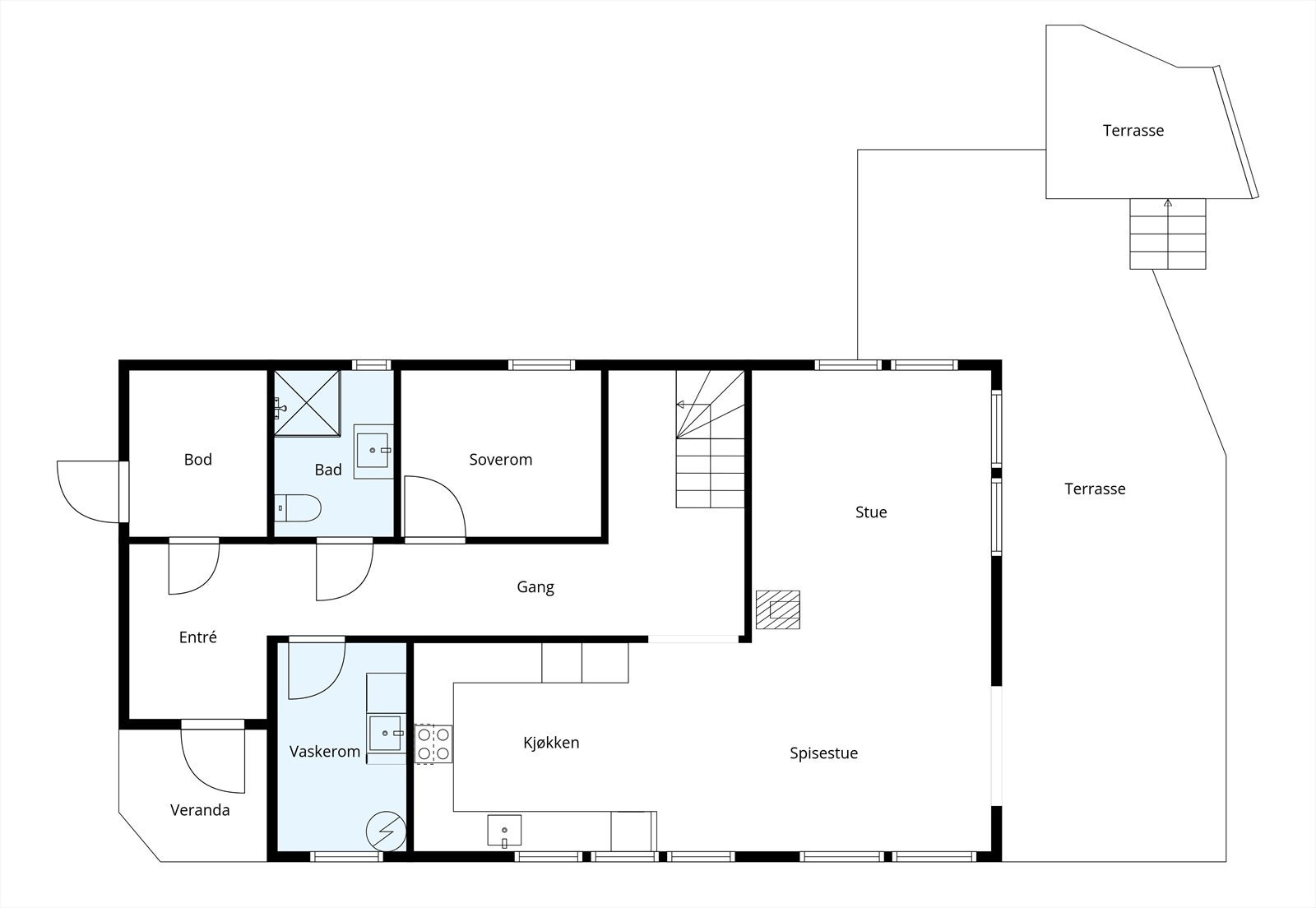
Denne lekre og innbydende eneboligen fra 2022 gir deg muligheten til å flytte rett inn i et hjem med gjennomført stil, moderne teknisk standard og minimalt vedlikeholdsbehov i lang tid fremover. Planløsningen er meget familievennlig med 2 stuer, bad i begge etasjer og hele 5 soverom. Direkte adkomst fra dobbelgarasje inn i entré gir ekstra komfort i hverdagen. Fra stuene er det utgang til hyggelige utearealer, inkludert en romslig markterrasse og balkong med flott utsikt.
Boligen ligger fredelig og attraktivt til i et landlig og barnevennlig område, med marka som nærmeste nabo. Samtidig har du korte kjøreavstander til skoler, togforbindelser, butikker og treningssentre en ideell kombinasjon av natur og tilgjengelighet.
Velkommen til visning!
Boligen ligger fredelig og attraktivt til i et landlig og barnevennlig område, med marka som nærmeste nabo. Samtidig har du korte kjøreavstander til skoler, togforbindelser, butikker og treningssentre en ideell kombinasjon av natur og tilgjengelighet.
Velkommen til visning!
NB: Knappen for å vise hele beskrivelsen har kun en visuell effekt.
NB: Knappen for å vise hele beskrivelsen har kun en visuell effekt.
Salgsoppgaven beskriver vesentlig og lovpålagt informasjon om eiendommen
Se komplett salgsoppgaveNyttige lenker
Nærområdet
DNB Eiendom AS
Fra hjem til hjem
Annonseinformasjon
| FINN-kode | 429609169 |
|---|---|
| Sist endret | 05. jan. 2026 09:03 |
| Referanse | 303250446 |
Annonsene kan være mangelfulle i forhold til lovpålagt opplysningsplikt. Før bindende avtale inngås oppfordres interessenter til å innhente komplett informasjon fra meglerforetaket, selger eller utleier.




























































