Bildegalleri

Notar v/Kjetil Gujord presenterer Norvikvegen 31! Foto: Interiørfoto (Joachim Borøchstein)
Fritidseiendom med unik beliggenhet i sjøkanten - god standard - flotte turmuligheter
Prisantydning2 990 000 kr
- Omkostninger
- 75 840 kr
- Totalpris
- 3 065 840 kr
- Kommunale avg.
- 9 092 kr per år
- Eiendomsskatt
- 4 531 kr per år
Nøkkelinfo
- Beliggenhet
- Ved sjøen
- Boligtype
- Hytte
- Eieform
- Selveier
- Internt bruksareal
- 69 m² (BRA-i)
- Bruksareal
- 83 m²
- Eksternt bruksareal
- 14 m² (BRA-e)
- Balkong/Terrasse
- 52 m² (TBA)
- Tomt
- Festet
- Festeavgift
- 6 000 kr
- Byggeår
- 1974
- Soverom
- 2
- Rom
- 3
- Energimerking
Fasiliteter
Innlagt vann
Balkong/Terrasse
Barnevennlig
Bilvei frem
Bredbåndstilknytning
Båtplass
Garasje/P-plass
Hage
Kabel-TV
Peis/Ildsted
Rolig
Utsikt
Bademulighet
Fiskemulighet
Innlagt strøm
Turterreng
Visning
søndag, 12. april
13:00 – 14:00
Husk å lese komplett salgsoppgave før visning. Bestill komplett, utskriftsvennlig salgsoppgave.
VisningspåmeldingOm boligen
Notar v/Kjetil Gujord presenterer Norvikvegen 31!
Flott fritidseiendom i sjøkanten, med fantastisk utsikt og beliggenhet. Boligen har gjennomgått store oppgraderinger og moderniseringer - og har i dag alt man kan tenke seg av fasiliteter på en fritidsbolig.
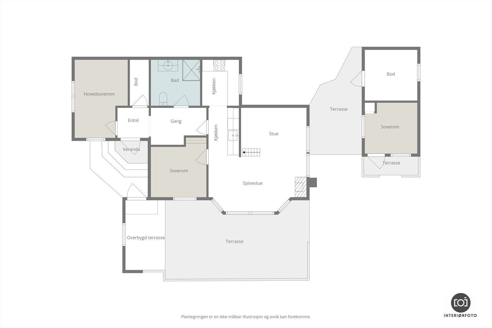
Boligen inneholder gang, to soverom, bad, kjøkken og stue +hems. God standard, innlagt vann og strøm, oppusset overflater, 2 soverom + hems, samt uthus som i dag er innredet som soverom.
Flott uteområde med terrasse mot vest, med utgang fra stue. Romslig bod i bakkant på uthus. Beliggende i Eidsbygda - med kort vei til alt naturen har å by på. Fiske og sjøliv rett utenfor døra, samt uttallige flotte turmuligheter. Mulighet til å kjøpe båtplass i umiddelbar nærhet.
Velkommen til visning! Husk påmelding.
Flott fritidseiendom i sjøkanten, med fantastisk utsikt og beliggenhet. Boligen har gjennomgått store oppgraderinger og moderniseringer - og har i dag alt man kan tenke seg av fasiliteter på en fritidsbolig.
Boligen inneholder gang, to soverom, bad, kjøkken og stue +hems. God standard, innlagt vann og strøm, oppusset overflater, 2 soverom + hems, samt uthus som i dag er innredet som soverom.
Flott uteområde med terrasse mot vest, med utgang fra stue. Romslig bod i bakkant på uthus. Beliggende i Eidsbygda - med kort vei til alt naturen har å by på. Fiske og sjøliv rett utenfor døra, samt uttallige flotte turmuligheter. Mulighet til å kjøpe båtplass i umiddelbar nærhet.
Velkommen til visning! Husk påmelding.
NB: Knappen for å vise hele beskrivelsen har kun en visuell effekt.
NB: Knappen for å vise hele beskrivelsen har kun en visuell effekt.
Salgsoppgaven beskriver vesentlig og lovpålagt informasjon om eiendommen
Se komplett salgsoppgaveNærområdet
Notar Molde
God magefølelse
Annonseinformasjon
| FINN-kode | 429593793 |
|---|---|
| Sist endret | 27. mars 2026 19:10 |
| Referanse | NO15.25136 |
Annonsene kan være mangelfulle i forhold til lovpålagt opplysningsplikt. Før bindende avtale inngås oppfordres interessenter til å innhente komplett informasjon fra meglerforetaket, selger eller utleier.








































