Bildegalleri

Velkommen til Berglyveien 10 - en eiendom med en sjelden fin beliggenhet innerst i en rolig blindvei på idylliske Føynland. Foto: Kristian Bollæren v/Fotofinish
Føynland
En fantastisk beliggende eiendom ned til sjøen - vestvendt med kveldssol og sjøutsikt - 2 båtplasser på felles brygge
Prisantydning32 000 000 kr
Nøkkelinfo
- Boligtype
- Enebolig
- Eieform
- Eier (Selveier)
- Soverom
- 6
- Internt bruksareal
- 271 m² (BRA-i)
- Bruksareal
- 349 m²
- Eksternt bruksareal
- 42 m² (BRA-e)
- Innglasset balkong
- 36 m² (BRA-b)
- Balkong/Terrasse
- 62 m² (TBA)
- Etasje
- 2
- Byggeår
- 2021
- Energimerking
- B - Lysegrønn
- Rom
- 8
- Tomteareal
- 1 137 m² (eiet)
Fasiliteter
Balkong/Terrasse
Barnevennlig
Bredbåndstilknytning
Båtplass
Garasje/P-plass
Hage
Kjæledyr tillatt
Offentlig vann/kloakk
Parkett
Peis/Ildsted
Rolig
Utsikt
Bademulighet
Strandlinje
Balansert ventilasjon
Visning
Ta kontakt med megler for avtale om privatvisning.
Ønsker du kun å bli holdt orientert, kan du fra eiendommens hjemmeside få varsel om solgtpris, eller kontakte megler.
VisningspåmeldingOm boligen
Eiendommen har en praktfull beliggenhet til Ekenessundet på Føynland, vestvendt og solrikt med sjøutsikt over innseilingen til Tønsberg - 2 båtplasser på felles brygge .
Tomten er svært velstelt og pent opparbeidet, en kombinasjon av gressplen og hyggelig beplantning med terrasser og fine uteplasser perfekt for liten og stor.
En sjelden flott og eksklusiv enebolig, arkitekttegnet og nyoppført i 2021, med en minimalistisk og elegant utforming - høy standard og kvalitet.
I boligens 1. etasje er det åpen hall m/trapp, toalettrom, stor stue med åpent kjøkken utgang terrasse med peis, grovkj. gang/garderobe, vaskerom, hovedsoverom, walk in og bad/wc.
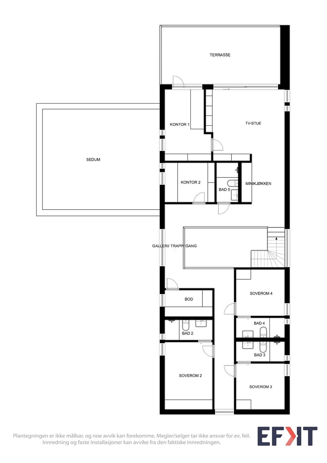
I 2. etasjen er det stue m/minikjøkken og utg. terrasse, gang, 3 soverom, 2 soverom/kontor, 4 bad, bod. Dobbelgarasje. Ingen boplikt.
Tomten er svært velstelt og pent opparbeidet, en kombinasjon av gressplen og hyggelig beplantning med terrasser og fine uteplasser perfekt for liten og stor.
En sjelden flott og eksklusiv enebolig, arkitekttegnet og nyoppført i 2021, med en minimalistisk og elegant utforming - høy standard og kvalitet.
I boligens 1. etasje er det åpen hall m/trapp, toalettrom, stor stue med åpent kjøkken utgang terrasse med peis, grovkj. gang/garderobe, vaskerom, hovedsoverom, walk in og bad/wc.
I 2. etasjen er det stue m/minikjøkken og utg. terrasse, gang, 3 soverom, 2 soverom/kontor, 4 bad, bod. Dobbelgarasje. Ingen boplikt.
NB: Knappen for å vise hele beskrivelsen har kun en visuell effekt.
NB: Knappen for å vise hele beskrivelsen har kun en visuell effekt.
Salgsoppgaven beskriver vesentlig og lovpålagt informasjon om eiendommen
Se komplett salgsoppgaveNyttige lenker
Nærområdet
Krogsveen Tønsberg
Verdien av en god megler.
Annonseinformasjon
| FINN-kode | 429060017 |
|---|---|
| Sist endret | 26. jan. 2026 12:59 |
| Referanse | KR21.25148 |
Annonsene kan være mangelfulle i forhold til lovpålagt opplysningsplikt. Før bindende avtale inngås oppfordres interessenter til å innhente komplett informasjon fra meglerforetaket, selger eller utleier.
















































































































