Bildegalleri

DNB Eiendom har gleden av å presentere Thygesons vei 18 b.
Østensjø
Stor enebolig beliggende ved vakre Nordre Skøyen hovedgård. Meget gode solforhold, nydelig utsikt, dobbelgarasje og EL.
Prisantydning12 990 000 kr
Nøkkelinfo
- Boligtype
- Enebolig
- Eieform
- Eier (Selveier)
- Soverom
- 3
- Internt bruksareal
- 200 m² (BRA-i)
- Bruksareal
- 244 m²
- Eksternt bruksareal
- 44 m² (BRA-e)
- Balkong/Terrasse
- 19 m² (TBA)
- Byggeår
- 2000
- Energimerking
- Rom
- 6
- Tomteareal
- 774 m² (eiet)
Fasiliteter
Balkong/Terrasse
Barnevennlig
Garasje/P-plass
Hage
Kjæledyr tillatt
Offentlig vann/kloakk
Parkett
Peis/Ildsted
Sentralt
Utsikt
Lademulighet
Balansert ventilasjon
Visning
Velkommen til visning! Meld deg på ved å trykke "visningspåmelding" i våre boligannonser. Ta gjerne kontakt med megler i forkant av visningen om du har spørsmål.
VisningspåmeldingOm boligen
Velkommen til Thygesons veg 18 B, frittliggende enebolig med en god planløsning fordelt over tre plan.
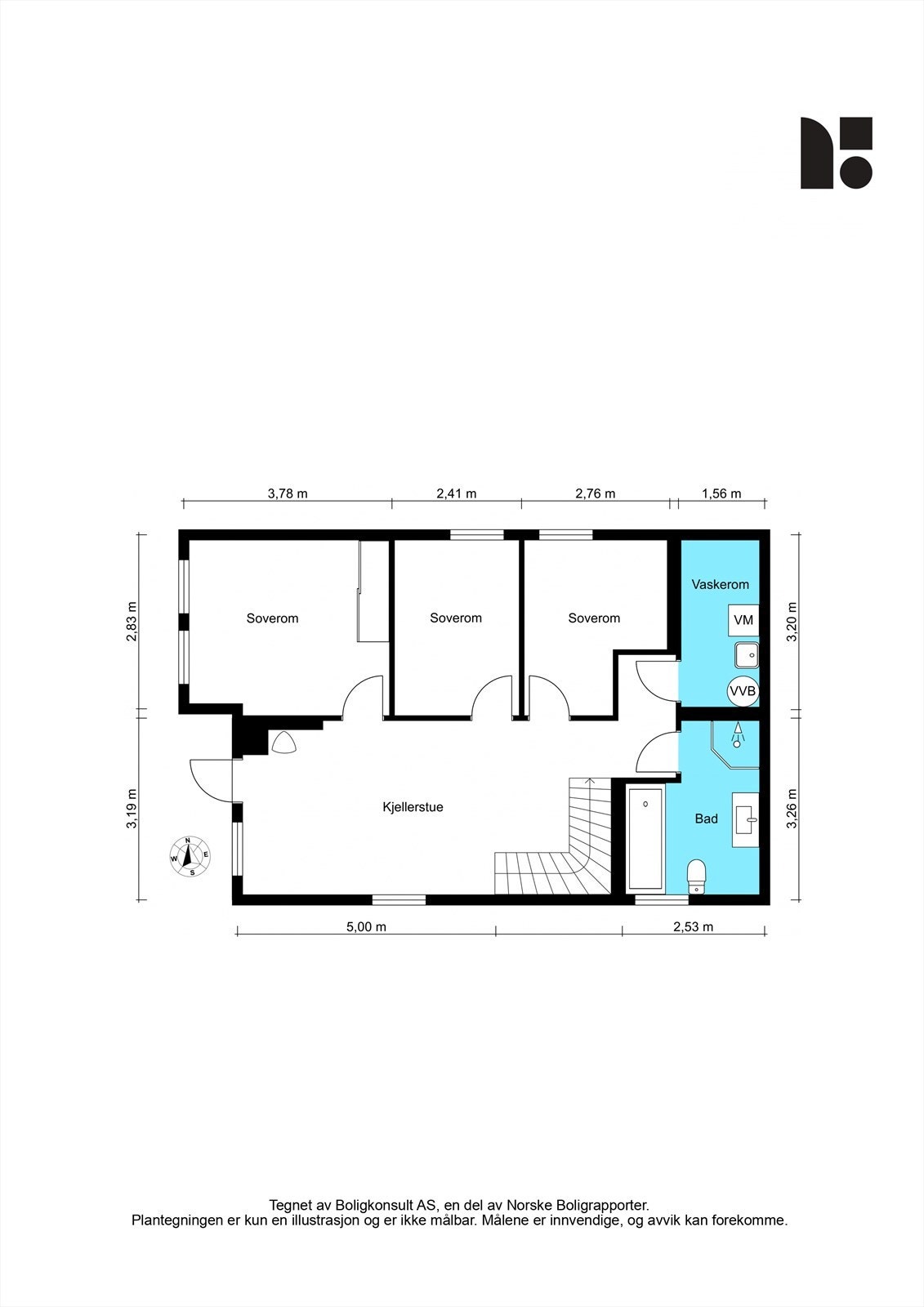
1. etasjen byr på en romslig hall med garderobeløsning og et praktisk wc-rom med gulvvarme, stort kjøkken og stue med vestvendt utsiktsterrasse, videre adkomst ned til en solrik hage. Underetasjen med egen inngang består av en kjellerstue med vedovn, tre soverom, bad og et praktisk vaskerom. Loftsetasjen er senere ominnredet med bad, praktisk bod, loftsstue og et fjerde soverom.
Det tar kun 3 min å gå bort til Høyenhall T-banestasjon via stikkvei, samt 8 min til Bryn togstasjon. Vakre Nordre Skøyen hovedgård er å regne for områdets bydelshus og samlingssted. Gården er omgitt av en vakker park, som er en perle til piknik, ballspill, turer med eller uten hund, aking og skiglede.
1. etasjen byr på en romslig hall med garderobeløsning og et praktisk wc-rom med gulvvarme, stort kjøkken og stue med vestvendt utsiktsterrasse, videre adkomst ned til en solrik hage. Underetasjen med egen inngang består av en kjellerstue med vedovn, tre soverom, bad og et praktisk vaskerom. Loftsetasjen er senere ominnredet med bad, praktisk bod, loftsstue og et fjerde soverom.
Det tar kun 3 min å gå bort til Høyenhall T-banestasjon via stikkvei, samt 8 min til Bryn togstasjon. Vakre Nordre Skøyen hovedgård er å regne for områdets bydelshus og samlingssted. Gården er omgitt av en vakker park, som er en perle til piknik, ballspill, turer med eller uten hund, aking og skiglede.
NB: Knappen for å vise hele beskrivelsen har kun en visuell effekt.
NB: Knappen for å vise hele beskrivelsen har kun en visuell effekt.
Salgsoppgaven beskriver vesentlig og lovpålagt informasjon om eiendommen
Se komplett salgsoppgaveNyttige lenker
Nærområdet
DNB Eiendom AS
Verdifulle salg
Annonseinformasjon
| FINN-kode | 428799889 |
|---|---|
| Sist endret | 22. mars 2026 16:56 |
| Referanse | 310250155 |
Annonsene kan være mangelfulle i forhold til lovpålagt opplysningsplikt. Før bindende avtale inngås oppfordres interessenter til å innhente komplett informasjon fra meglerforetaket, selger eller utleier.























































