Bildegalleri

Nå har du muligheten til å overta et større utviklingsprosjekt i det populære og nyetablerte boligområdet Ulleråsen på Nordby i Rælingen kommune. NB! Skissert omrisse av eiendommene er kun veiledende, se vedlagte eiendomskart.
Utviklingsprosjekt med 4 stk. tomannsboliger + 2 boligtomter - Kjøper overtar videre fremdrift - Unik mulighet!
Nøkkelinfo
- Boligtype
- Andre
- Eieform
- Eier (Selveier)
- Soverom
- 4
- Internt bruksareal
- 864 m² (BRA-i)
- Bruksareal
- 864 m²
- Balkong/Terrasse
- 74 m² (TBA)
- Byggeår
- 2022
- Tomteareal
- 4 018 m² (eiet)
Visning
Om boligen
Nå har du muligheten til å overta et større utviklingsprosjekt i det populære boligområdet Ulleråsen på Nordby i Rælingen.
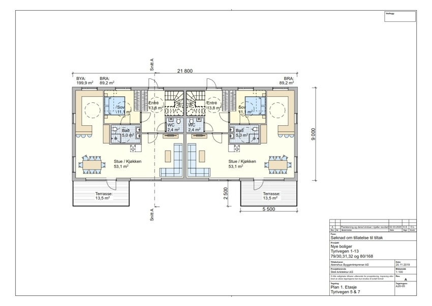
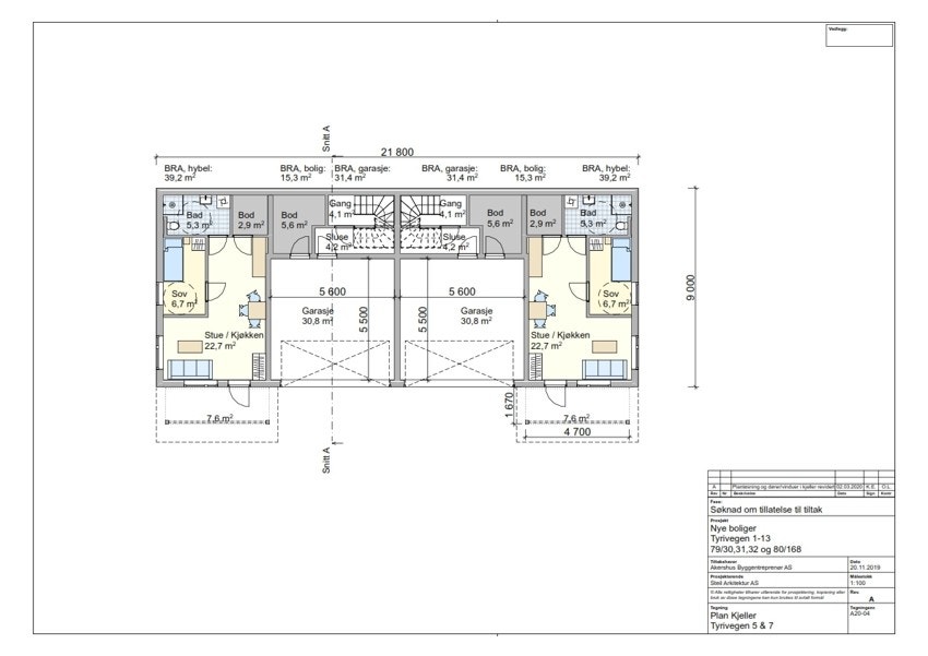
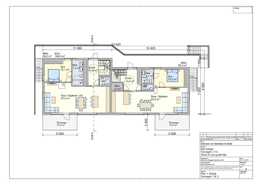
Eiendommene består av fire vertikaldelte tomannsboliger med separat utleiedel i kjeller på Tyrivegen 1, 3, 5 og 7, samt to ubebygde boligtomter på Tyrivegen 9 og 11/13.
Byggene er ikke ferdigstilt, og ferdigattest er ikke utstedt. Det foreligger igangsettingstillatelser og byggetegninger fra kommunen (vedlagt), men det er usikkerhet knyttet til gyldigheten av disse.
Eiendommene selges i den stand de er, og kjøper overtar fullt ansvar for ferdigstillelse, ferdigattester, avvik fra tegninger, nødvendige tillatelser og utvikling av tomtene.
Innredede hybler i 1. etg. avviker fra godkjente tegninger og må sannsynligvis tilbakeføres før evt. ferdigattest.
Velkommen til visning!
Salgsoppgaven beskriver vesentlig og lovpålagt informasjon om eiendommen
Se komplett salgsoppgaveNyttige lenker
Nærområdet

PrivatMegleren Brustad & Partnere
Annonseinformasjon
| FINN-kode | 428581236 |
|---|---|
| Sist endret | 28. jan. 2026 03:04 |
| Referanse | 121250082 |
Annonsene kan være mangelfulle i forhold til lovpålagt opplysningsplikt. Før bindende avtale inngås oppfordres interessenter til å innhente komplett informasjon fra meglerforetaket, selger eller utleier.























































