Bildegalleri

Emir Mekic v/Krogsveen Løren presenterer Spireaveien 6E! Foto: Marika Mørkestøl / Marikafoto
Økern / Løren
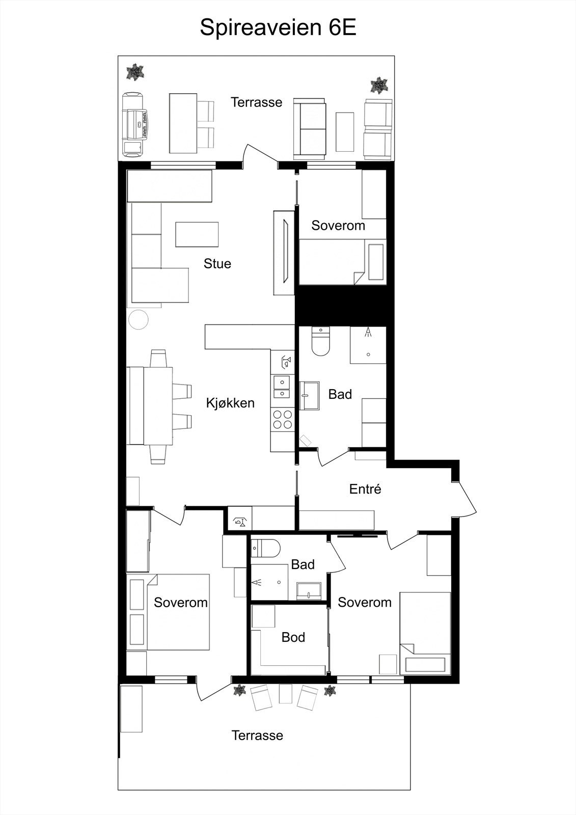
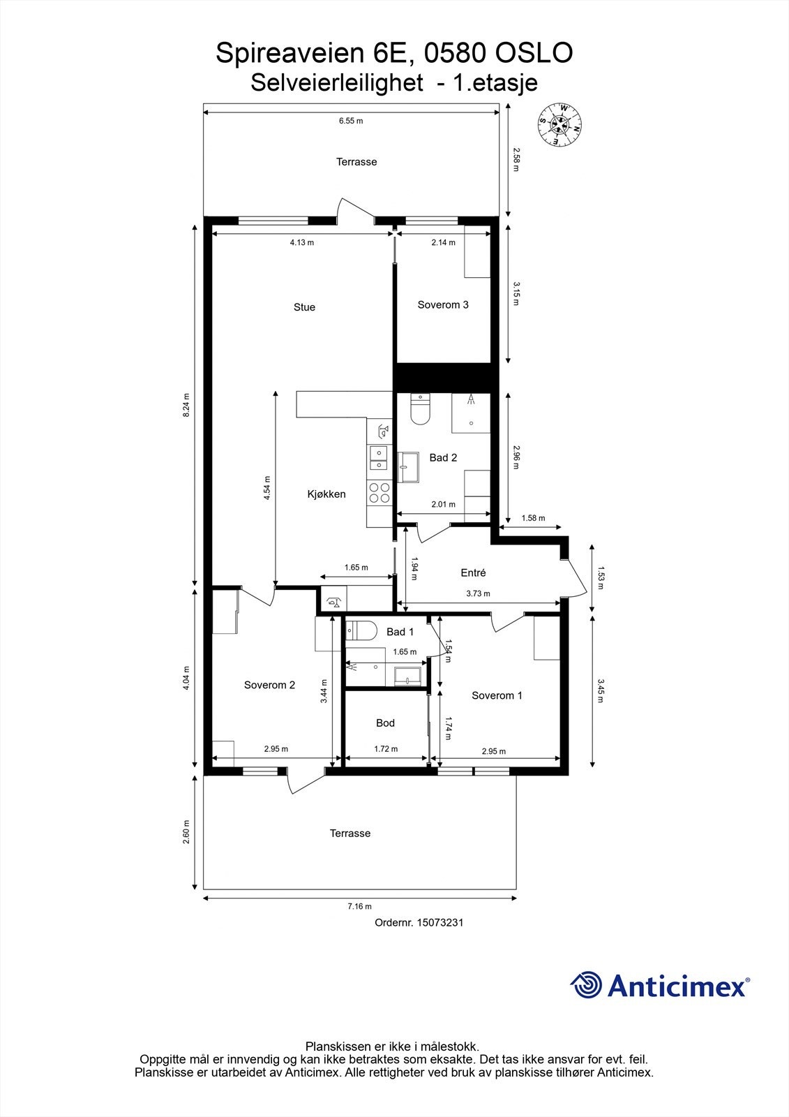
Barnevennlig og flott 4-roms med mulighet for hybeldel. 2 solrike markterrasser, 2 bad og god planløsning. Garasjeplass
Prisantydning8 600 000 kr
Nøkkelinfo
- Boligtype
- Leilighet
- Eieform
- Eier (Selveier)
- Soverom
- 3
- Internt bruksareal
- 87 m² (BRA-i)
- Bruksareal
- 92 m²
- Eksternt bruksareal
- 5 m² (BRA-e)
- Balkong/Terrasse
- 36 m² (TBA)
- Etasje
- 1
- Byggeår
- 2017
- Energimerking
- B - Mørkegrønn
- Rom
- 4
- Tomteareal
- 9 226 m² (eiet)
Fasiliteter
Balkong/Terrasse
Barnevennlig
Bredbåndstilknytning
Garasje/P-plass
Heis
Kjæledyr tillatt
Kabel-TV
Offentlig vann/kloakk
Parkett
Rolig
Sentralt
Vaktmester-/vektertjeneste
Turterreng
Balansert ventilasjon
Visning
søndag, 08. mars
14:00 – 15:00
Kontakt megler på telefon eller via linken visningspåmelding for å avtale tidspunkt. Det vil ikke bli avholdt visning uten påmelding.
Husk også å lese salgsoppgaven før visningen.
VisningspåmeldingOm boligen
Rekkehusfølelsen i Løkkehagen!
Sjelden mulighet med flott beliggenhet i et meget barnevennlig sameie med fotballbane, tuftepark og ishockeyhall som nærmeste nabo. I gangavstand fra boligen finner du barnehage- og skoletilbud samt flotte grøntområder. Meget godt service- og kollektivtilbud i umiddelbar nærhet.
Verdt å merke seg:
Sjelden mulighet med flott beliggenhet i et meget barnevennlig sameie med fotballbane, tuftepark og ishockeyhall som nærmeste nabo. I gangavstand fra boligen finner du barnehage- og skoletilbud samt flotte grøntområder. Meget godt service- og kollektivtilbud i umiddelbar nærhet.
Verdt å merke seg:
- Attraktiv 4-roms selveier fra 2017
- Alternativt 3-roms + 1-roms hybel
- 2 store og solrike uteplasser på hhv. 19 m² og 17 m²
- Balansert ventilasjon og vannbåren varme
- Innvendig bod og sportsbod i kjeller
- Fjernvarme, varmtvann, kabel-tv og fibernett inkl.
- Garasjeplass m/infrastruktur for elbil lader
- Heis i bygget
- Veldrevet sameie med egen gartner
NB: Knappen for å vise hele beskrivelsen har kun en visuell effekt.
NB: Knappen for å vise hele beskrivelsen har kun en visuell effekt.
Salgsoppgaven beskriver vesentlig og lovpålagt informasjon om eiendommen
Se komplett salgsoppgaveNyttige lenker
Nærområdet
Krogsveen Løren
Verdien av en god megler.
Annonseinformasjon
| FINN-kode | 428499011 |
|---|---|
| Sist endret | 02. mars 2026 17:04 |
| Referanse | KR54.2557 |
Annonsene kan være mangelfulle i forhold til lovpålagt opplysningsplikt. Før bindende avtale inngås oppfordres interessenter til å innhente komplett informasjon fra meglerforetaket, selger eller utleier.













































