Bildegalleri

Utgang til terrasse fra stuen.
Enebolig i naturskjønne omgivelser| Garasje| Kun 20 min fra Kongsvinger!
Prisantydning2 200 000 kr
Nøkkelinfo
- Boligtype
- Enebolig
- Eieform
- Eier (Selveier)
- Soverom
- 3
- Internt bruksareal
- 168 m² (BRA-i)
- Bruksareal
- 188 m²
- Eksternt bruksareal
- 20 m² (BRA-e)
- Balkong/Terrasse
- 44 m² (TBA)
- Etasje
- 2
- Byggeår
- 1978
- Energimerking
- Rom
- 5
- Tomteareal
- 918 m² (eiet)
Fasiliteter
Alarm
Barnevennlig
Garasje/P-plass
Hage
Kjæledyr tillatt
Ingen gjenboere
Kabel-TV
Peis/Ildsted
Rolig
Visning
For å delta på visning, ber vi om at du melder deg på. Da sikrer vi at du får nødvendig informasjon og at det er satt av tilstrekkelig med tid. Kontakt megler dersom annet tidspunkt ønskes. Husk å lese salgsoppgaven før visningen, så du stiller forberedt.
Ønsker du kun å bli holdt orientert, kan du fra eiendommens hjemmeside få varsel om solgtpris, eller kontakte megler.
VisningspåmeldingOm boligen
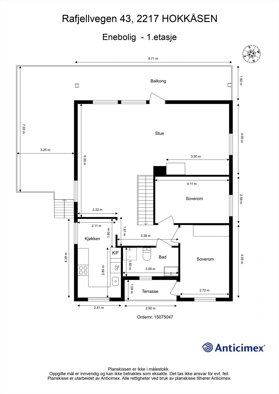
Velkommen til Rafjellvegen 43! En romslig enebolig fra 1978 med gjennomgående standard perfekt for deg som ønsker en fredelig og sjarmerende bolig med naturen som nærmeste nabo. Til tross for den rolige beliggenheten, har du kort vei til både Roverud sentrum (ca. 6,5 km) og Kongsvinger sentrum (ca. 17 km). En bolig som passer ypperlig for barnefamilier eller for deg som rett og slett ønsker god plass.
Eiendommen strekker seg over to etasjer og har integrert enkelgarasje. Her kan du nyte solrike dager på terrasser plassert på tre sider av huset med gode solforhold gjennom hele dagen. Inne finner du to romslige stuer, tre gode soverom, eget kjøkken, bad og separat wc. Boligen byr også på rikelig med oppbevaringsmuligheter.
Ute er det en romslig innkjørsel med flere parkeringsplasser.
Eiendommen strekker seg over to etasjer og har integrert enkelgarasje. Her kan du nyte solrike dager på terrasser plassert på tre sider av huset med gode solforhold gjennom hele dagen. Inne finner du to romslige stuer, tre gode soverom, eget kjøkken, bad og separat wc. Boligen byr også på rikelig med oppbevaringsmuligheter.
Ute er det en romslig innkjørsel med flere parkeringsplasser.
NB: Knappen for å vise hele beskrivelsen har kun en visuell effekt.
NB: Knappen for å vise hele beskrivelsen har kun en visuell effekt.
Salgsoppgaven beskriver vesentlig og lovpålagt informasjon om eiendommen
Se komplett salgsoppgaveNyttige lenker
Nærområdet
Krogsveen Årnes
Verdien av en god megler.
Annonseinformasjon
| FINN-kode | 428328283 |
|---|---|
| Sist endret | 19. mars 2026 10:50 |
| Referanse | KR24.25127 |
Annonsene kan være mangelfulle i forhold til lovpålagt opplysningsplikt. Før bindende avtale inngås oppfordres interessenter til å innhente komplett informasjon fra meglerforetaket, selger eller utleier.



































