Bildegalleri

Velkommen til Lunstikka 8! Enebollig med egen inngang til sokkeletasjen, samt egen hage er denne boligen fin for å leie ut som en del av egen bolig ( trapp mellom hoveddel og tilleggsdel)
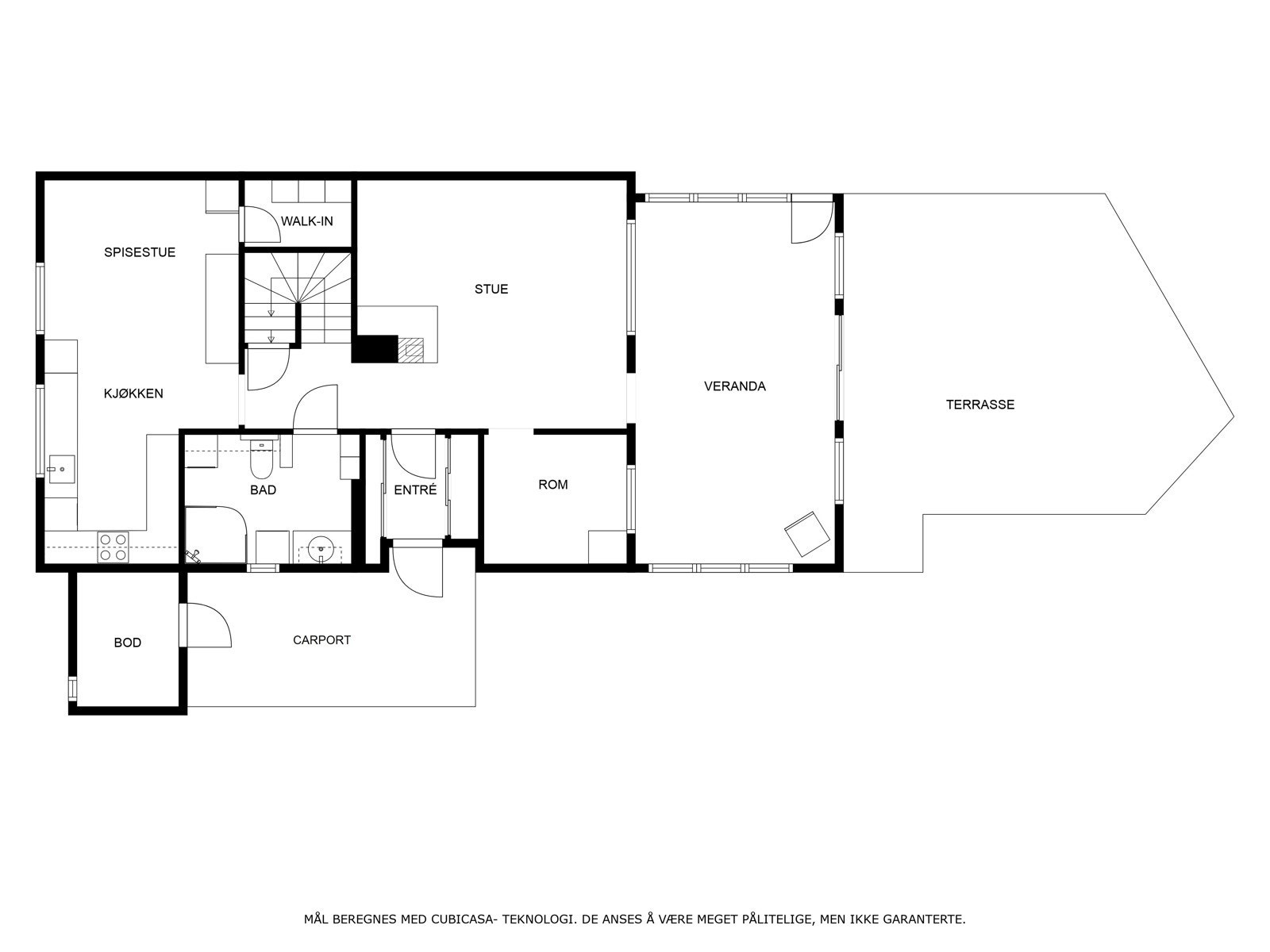
Enebolig m/sep. leilighet & egen inng | Stor terrasse | Vinterhage | 3 bad | 4 soverom i hoveddel | Egen ing. til leil.
Nøkkelinfo
- Boligtype
- Enebolig
- Eieform
- Andel
- Soverom
- 5
- Internt bruksareal
- 203 m² (BRA-i)
- Bruksareal
- 227 m²
- Eksternt bruksareal
- 4 m² (BRA-e)
- Innglasset balkong
- 20 m² (BRA-b)
- Byggeår
- 1998
- Energimerking
- D - Rød
- Tomt
- Eiet
Fasiliteter
Visning
Om boligen
Velkommen til Lunstikka 8! Her bor i et hyggelig borettslag med flott beliggenhet på Fjelldal. Barnevennlig og solrik uteplass & et stort friområde er rett på utsiden av eiendommen. Blindvei. Denne eiendommen har sokkeletasje med inngang til leilighet. Totalt er det 5 soverom i denne fine familieboligen.
&HØYDEPUNKTER
- Vinterhage m/ terraseskjermet med hekk
- Hage med inngang til leilighet i sokkeletg.
- Carport & utebod
- 3 bad ( et i hver teasje)
- Stort, nyere kjøkken kjøkken med ekstra god plass til spisebord. Bod innenfor
- Fin stue med direkte utgang til vinterhagen og terrassen
- 4 soverom i 2. etg.
- 1 soverom i u.etg.
- Beliggenhet i blindvei
- Svært nært til flotte turområder ned mot Isesjø & Bodalsstranda!
- Lave omk. ved kjøpe ( ikke dokumentavgift)
Vi sees på visning !
Salgsoppgaven beskriver vesentlig og lovpålagt informasjon om eiendommen
Se komplett salgsoppgaveNyttige lenker
Nærområdet
Holmskau & Partners
Annonseinformasjon
| FINN-kode | 427688740 |
|---|---|
| Sist endret | 20. mars 2026 03:19 |
| Referanse | 194250097 |
Annonsene kan være mangelfulle i forhold til lovpålagt opplysningsplikt. Før bindende avtale inngås oppfordres interessenter til å innhente komplett informasjon fra meglerforetaket, selger eller utleier.






















































