Bildegalleri

Eiendomsmegler Norge v/ Johan R. Elieson har gleden av å ønske velkommen til visning av Kongens gate 30!
Inaktiv
Kvadraturen
Flott, lys 3-roms eierleilighet med attraktiv beliggenhet midt i Kvadraturen! Solrik balkong mot bakgård. Heis i bygget
Prisantydning4 290 000 kr
Pris på lån: fra 17 363 kr/mnd
Eff.rente 5,00 %. 3 003 000 o/25 år. Kostnad: 2 205 900 kr. Totalt 5 208 900 kr.
LånekalkulatorNøkkelinfo
- Boligtype
- Leilighet
- Eieform
- Eier (Selveier)
- Soverom
- 2
- Internt bruksareal
- 74 m² (BRA-i)
- Bruksareal
- 76 m²
- Eksternt bruksareal
- 2 m² (BRA-e)
- Balkong/Terrasse
- 10 m² (TBA)
- Etasje
- 3
- Byggeår
- 1939
- Energimerking
- G - Mørkegrønn
- Rom
- 3
- Tomteareal
- 259 m² (eiet)
Fasiliteter
Balkong/Terrasse
Barnevennlig
Heis
Parkett
Rolig
Sentralt
Turterreng
Visning
Eiendomsmegler Norge sine visninger har påmelding. Påmelding gjøres enkelt ved å benytte knappen under. Ta kontakt med megler dersom oppsatt tidspunkt ikke passer. Det vil ikke bli avholdt visning uten påmelding, frist for påmelding er senest kl. 12.00 på visningsdagen. Husk å laste ned salgsoppgaven digitalt før visning. Velkommen til en hyggelig visning!
VisningspåmeldingOm boligen
Velkommen til visning av Kongens gate 30!
Leiligheten ligger i det flotte murbygget, tegnet av Thilo Schoder, på hjørnet av Kongensgate og Festningsgata. Fra byggets inngangsparti er det ca. 50 meter til Tresse og Festningen.
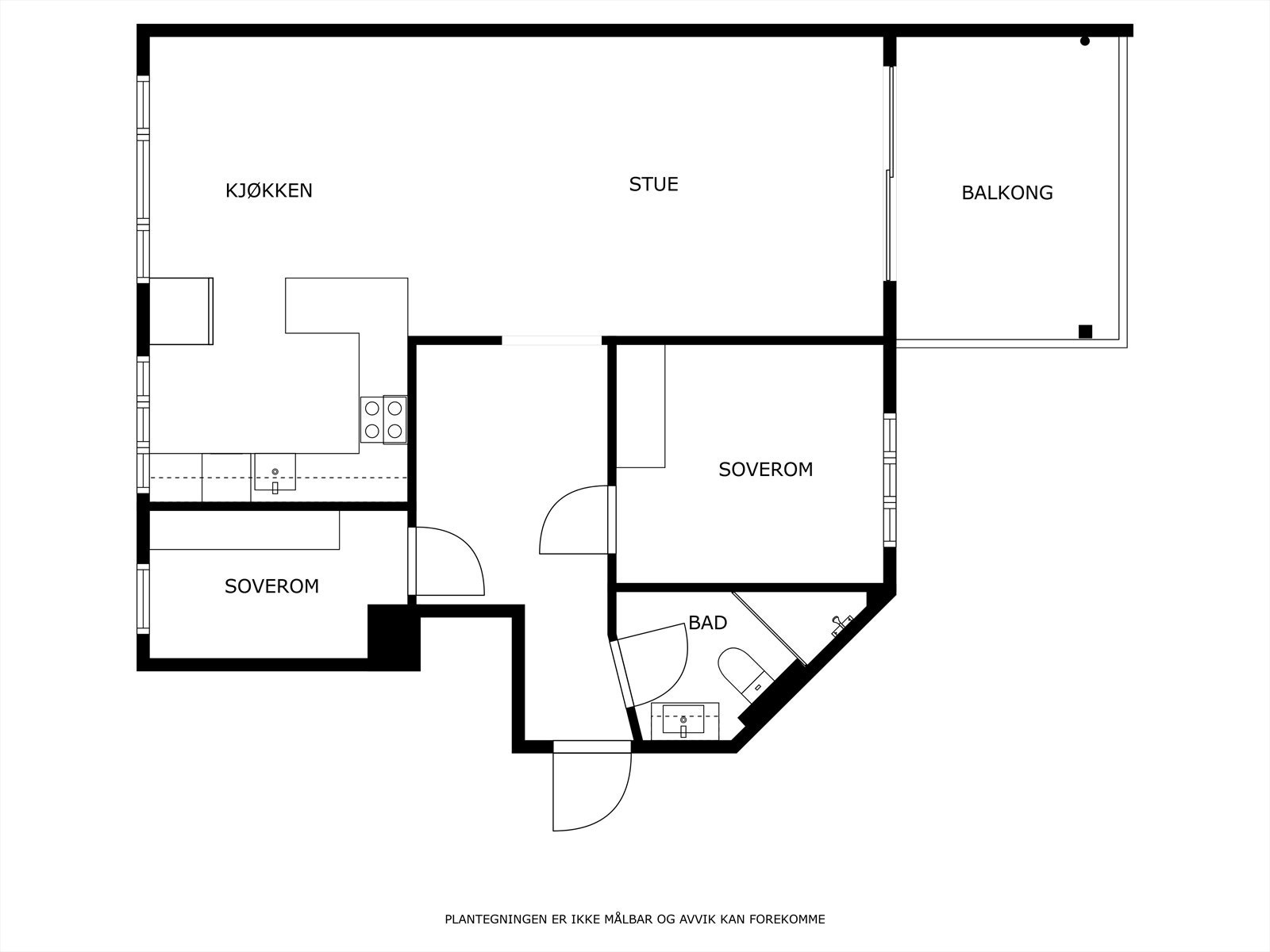
Leiligheten inneholder: Gang, stue/ kjøkken med utgang til balkong, to soverom og baderom.
Det medfølger en bod i kjeller.
Heis i bygget.
Leiligheten fremstår i god stand.
- Oppvarming via vannbåren varme i radiatorer og forbruk varmtvann er inkl. i felleskostnader.
- Oppussing av byggets murfasader inkl. terrasser. Utført av Mur i Sør i 2024.
- Vinduer mot bakgård fra 2022. Vinduer mot gate er fra 2010.
- Dører: Skyvedør fra 2010. Det antas at hoveddør er fra samme tiden.
- Renovert bad og el. anlegg i 2019.
- Kjøkken fra ca. 2015
Velkommen til visning!
Leiligheten ligger i det flotte murbygget, tegnet av Thilo Schoder, på hjørnet av Kongensgate og Festningsgata. Fra byggets inngangsparti er det ca. 50 meter til Tresse og Festningen.
Leiligheten inneholder: Gang, stue/ kjøkken med utgang til balkong, to soverom og baderom.
Det medfølger en bod i kjeller.
Heis i bygget.
Leiligheten fremstår i god stand.
- Oppvarming via vannbåren varme i radiatorer og forbruk varmtvann er inkl. i felleskostnader.
- Oppussing av byggets murfasader inkl. terrasser. Utført av Mur i Sør i 2024.
- Vinduer mot bakgård fra 2022. Vinduer mot gate er fra 2010.
- Dører: Skyvedør fra 2010. Det antas at hoveddør er fra samme tiden.
- Renovert bad og el. anlegg i 2019.
- Kjøkken fra ca. 2015
Velkommen til visning!
NB: Knappen for å vise hele beskrivelsen har kun en visuell effekt.
NB: Knappen for å vise hele beskrivelsen har kun en visuell effekt.
Salgsoppgaven beskriver vesentlig og lovpålagt informasjon om eiendommen
Se komplett salgsoppgaveNyttige lenker
Nærområdet
Eiendomsmegler Norge Kristiansand
Det viktigste stedet i Norge er der du bor
Annonseinformasjon
| FINN-kode | 427512211 |
|---|---|
| Sist endret | 27. nov. 2025 09:16 |
| Referanse | 50250087 |
Annonsene kan være mangelfulle i forhold til lovpålagt opplysningsplikt. Før bindende avtale inngås oppfordres interessenter til å innhente komplett informasjon fra meglerforetaket, selger eller utleier.




























