Bildegalleri

Velkommen til Noreveien 180!
Sjarmerende enebolig med moderniserte løsninger, stor tomt, solrike uteplasser og naturskjønne omgivelser på Austre Åmøy
Nøkkelinfo
- Boligtype
- Enebolig
- Eieform
- Eier (Selveier)
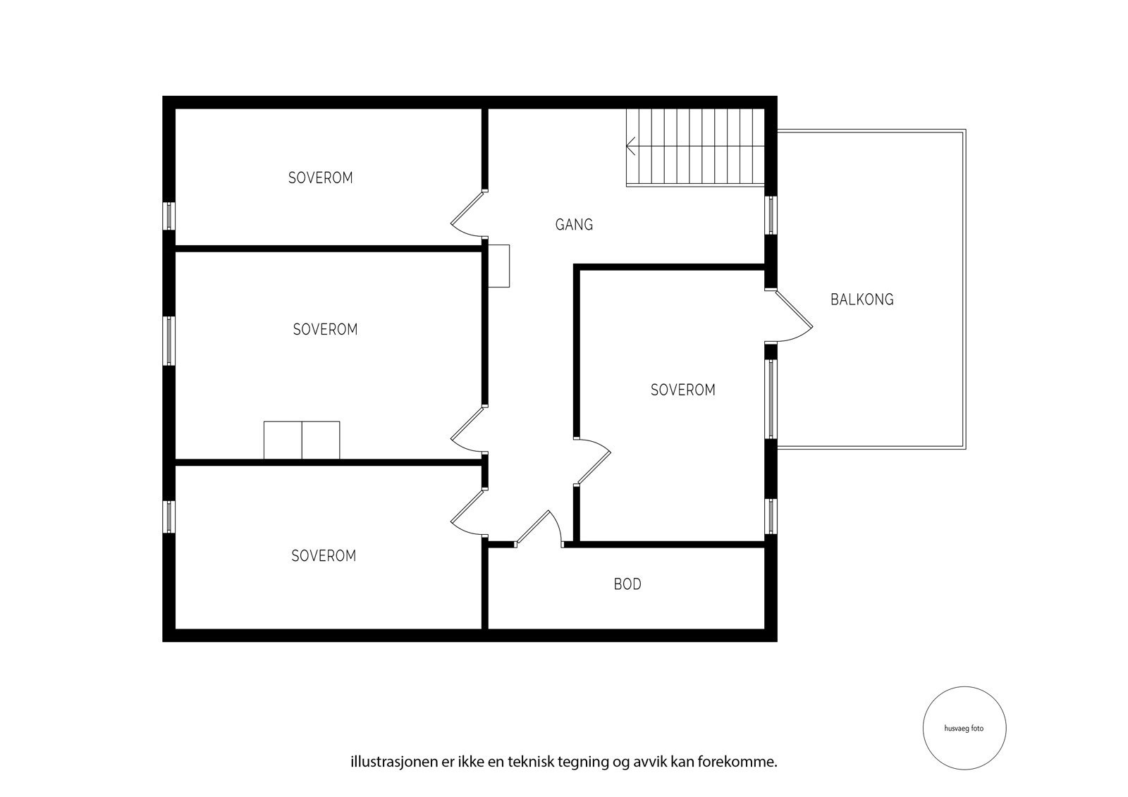
- Soverom
- 4
- Internt bruksareal
- 119 m² (BRA-i)
- Bruksareal
- 170 m²
- Eksternt bruksareal
- 51 m² (BRA-e)
- Balkong/Terrasse
- 15 m² (TBA)
- Byggeår
- 1936
- Energimerking
- G - Oransje
- Rom
- 6
- Tomteareal
- 773 m² (eiet)
- Boligselgerforsikring
- Ja
Fasiliteter
Om boligen
Velkommen til Noreveien 180 - en innbydende enebolig med sjel, oppført i 1936 og senere modernisert med blant annet nytt kjøkken (2025), to bad, ny trapp, brannmur, vedovn, samt oppgradert elektrisk anlegg og røropplegg. Boligen byr på en romslig stue med peis, fire soverom, bad, gjestetoalett, kjeller med boder og balkong på ca. 15 m². Tomten er på hele 772 m² og opparbeidet med plen, innkjørsel og gode parkeringsmuligheter. Eiendommen har svært gode solforhold året rundt og ligger fredelig til, omgitt av vakker natur. Her får du kombinasjonen av landlig ro, gode oppgraderinger og kort vei til barnehage, skole, rideklubb og flotte turmuligheter - et trygt og familievennlig sted å bo.
Salgsoppgaven beskriver vesentlig og lovpålagt informasjon om eiendommen
Se komplett salgsoppgaveNyttige lenker
Nærområdet

PrivatMegleren Haferkamp & Partnere
Prisstatistikk
Noreveien 180
på annonsen
prisantydning per kvadratmeter
Prisfordeling
Pris per m² ligger 1 790 kr under snittet for eneboliger i Byøyer.
Grafen viser antall eneboliger solgt i Byøyer siste året fordelt på pris per m² - totalt 8 eneboliger
Antall boliger
Kvadratmeterpris tilsvarer prisantydning pluss fellesgjeld per kvadratmeter (p-rom eller BRA-i). Prisene i grafen er avrundet til nærmeste 1000 kr.
Lignende boliger til salgs


Flott og oppusset enebolig uten boplikt | Totalt BRA på 303kvm | Stor tomt og tilhørende oppusset uthus og garasje




Sentral, innholdsrik og stilren 3-roms selveierleilighet, med balkong


Annonseinformasjon
| FINN-kode | 427341303 |
|---|---|
| Sist endret | 27. sep. 2025 10:34 |
| Referanse | 301250146 |
Annonsene kan være mangelfulle i forhold til lovpålagt opplysningsplikt. Før bindende avtale inngås oppfordres interessenter til å innhente komplett informasjon fra meglerforetaket, selger eller utleier.

































