Bildegalleri

Terrasseveien 21 F - Presentert av Nikola Gresko i Nordvik Frogner.
SKØYENÅSEN v/ØSTENSJØ SKOLE
Flott enebolig i blindgate, betydelig oppusset 2019-2023. Solrik hage, utsikt, garasje, peis og mulighet for 4 soverom.
Prisantydning15 490 000 kr
Nøkkelinfo
- Boligtype
- Enebolig
- Eieform
- Eier (Selveier)
- Soverom
- 3
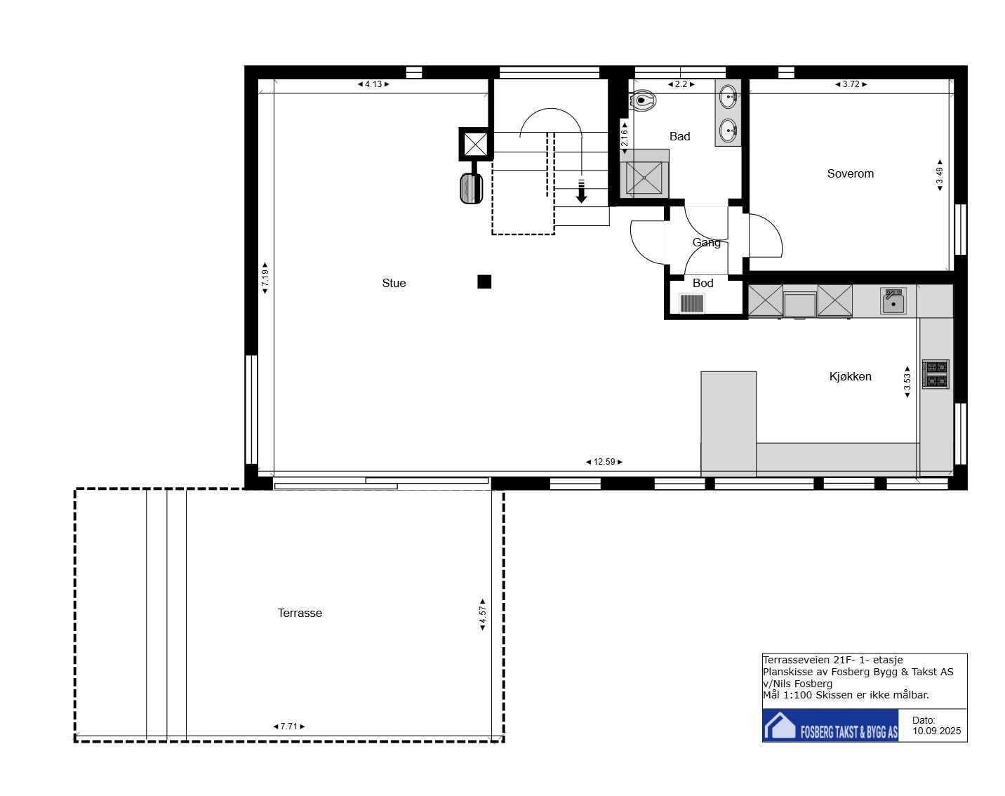
- Internt bruksareal
- 196 m² (BRA-i)
- Bruksareal
- 196 m²
- Balkong/Terrasse
- 35 m² (TBA)
- Etasje
- 2
- Byggeår
- 2000
- Energimerking
- D - Oransje
- Rom
- 4
- Tomteareal
- 483 m² (eiet)
Fasiliteter
Balkong/Terrasse
Barnevennlig
Bredbåndstilknytning
Garasje/P-plass
Hage
Kjæledyr tillatt
Ingen gjenboere
Kabel-TV
Offentlig vann/kloakk
Parkett
Peis/Ildsted
Rolig
Sentralt
Utsikt
Turterreng
Lademulighet
Balansert ventilasjon
Om boligen
En sjelden mulighet til å sikre seg en attraktiv og innholdsrik enebolig, i et rolig og veletablert nabolag på Østensjø. Fra boligen er det nærhet til skoler, barnehager, servicetilbud og offentlig kommunikasjon. Her har du muligheten til å bo i rolige og naturskjønne omgivelser, med lite trafikk i et trygt og hyggelig nærmiljø. Det er også kort vei til Bryn senter og hovedfartsårer. Boligen har flotte uteplasser som ligger skjermet til med gode solforhold.
- Rolig blindvei
- Moderne vedovn
- Balansert ventilasjon
- 3 soverom, mulighet for 4
- Svært praktisk planløsning
- Rålekkert kjøkken fra 2019
- Solrik hage med terrasse og plen
- 2 bad renovert i 2021 + vaskerom
- Attraktivt og familievennlig boligområde
- Garasje med el-lader og adkomst fra 1.etg
NB: Knappen for å vise hele beskrivelsen har kun en visuell effekt.
NB: Knappen for å vise hele beskrivelsen har kun en visuell effekt.
Salgsoppgaven beskriver vesentlig og lovpålagt informasjon om eiendommen
Se komplett salgsoppgaveNyttige lenker
Nærområdet
Nordvik Frogner
Annonseinformasjon
| FINN-kode | 427232736 |
|---|---|
| Sist endret | 15. nov. 2025 19:56 |
| Referanse | 14-0552/25 |
Annonsene kan være mangelfulle i forhold til lovpålagt opplysningsplikt. Før bindende avtale inngås oppfordres interessenter til å innhente komplett informasjon fra meglerforetaket, selger eller utleier.



















































