Bildegalleri

Velkommen til en pen og innholdsrik halvpart av en vertikaldelt tomannsbolig fra 2019.
Bjørkelangen
Lys og pen halvpart av nyere tomannsbolig. Flott uteområde med stor terrasse. 2 bad og 4 soverom. Sentral beliggenhet.
Prisantydning4 890 000 kr
Nøkkelinfo
- Boligtype
- Tomannsbolig
- Eieform
- Eier (Selveier)
- Soverom
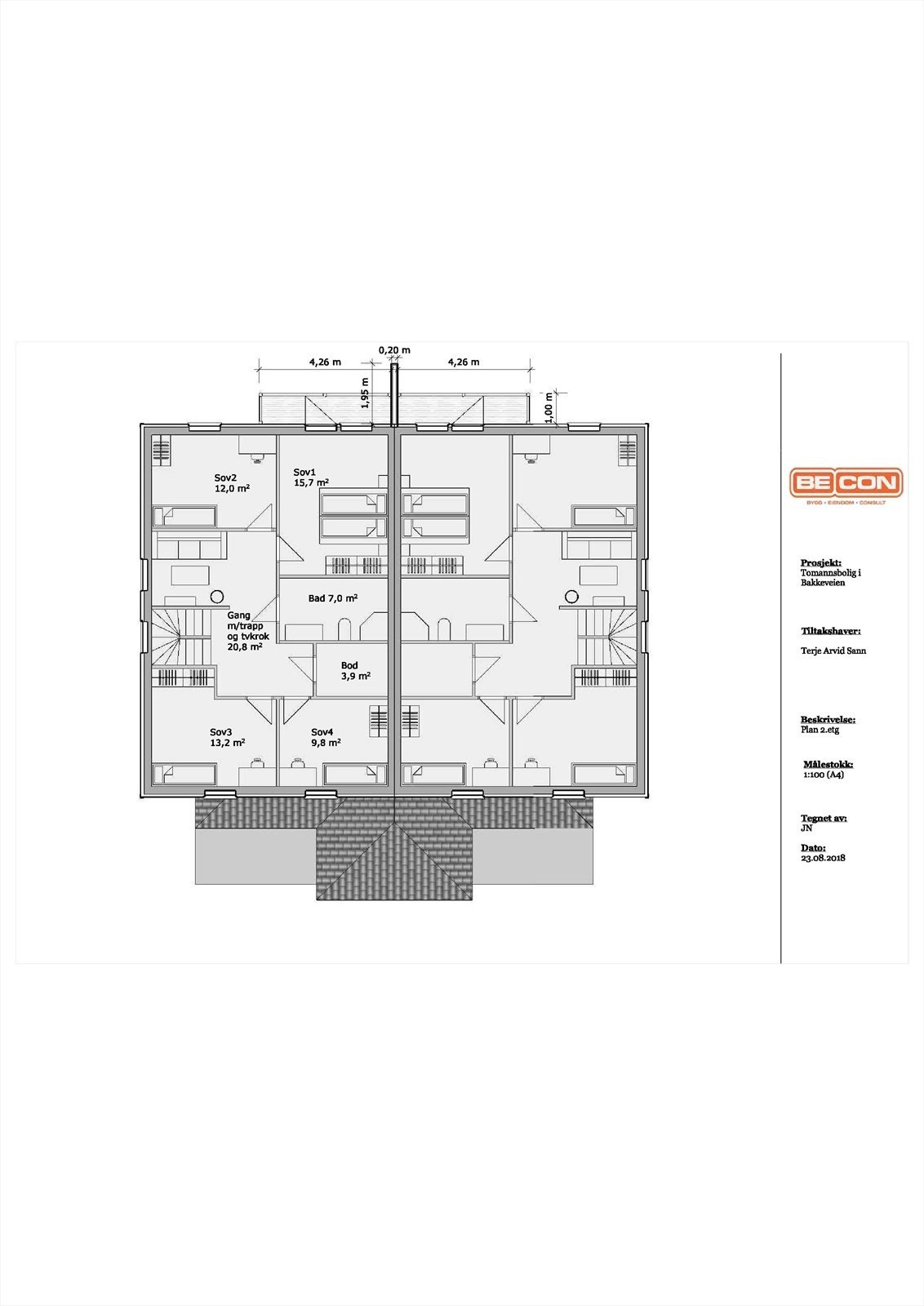
- 4
- Internt bruksareal
- 172 m² (BRA-i)
- Bruksareal
- 177 m²
- Eksternt bruksareal
- 5 m² (BRA-e)
- Balkong/Terrasse
- 66 m² (TBA)
- Etasje
- 2
- Byggeår
- 2019
- Energimerking
- C - Oransje
- Rom
- 5
- Tomteareal
- 800 m² (eiet)
Om boligen
Velkommen til Bakkesvingen 6, en lys, pent holdt og svært funksjonell halvpart av en vertikaldelt tomannsbolig over to plan. Oppført i 2019 holder boligen en moderne standard. Beliggenheten er sentral, men likevel tilbaketrukket, med nærhet til skoler, butikker, idrettsanlegg og helårs turområder. Boligen har et gjennomført uteareal, med fin adkomstterrasse, inngjerdet hage og stor markterrasse i forlengelse av stuen.
Stuen er åpen og luftig med peisovn og store vinduer, der et velutstyrt kjøkken har flott barløsning, mye oppbevaring og alle hvitevarer integrert. Det er to flislagte bad i hver sin etasje, utstyrt med gulvvarme og regnfallsdusj. Nede har boligen gjestetoalett, og med fire soverom samlet i 2. etasje er det god plass til familier med flere barn. Bilen parkeres ved inngange
Stuen er åpen og luftig med peisovn og store vinduer, der et velutstyrt kjøkken har flott barløsning, mye oppbevaring og alle hvitevarer integrert. Det er to flislagte bad i hver sin etasje, utstyrt med gulvvarme og regnfallsdusj. Nede har boligen gjestetoalett, og med fire soverom samlet i 2. etasje er det god plass til familier med flere barn. Bilen parkeres ved inngange
NB: Knappen for å vise hele beskrivelsen har kun en visuell effekt.
NB: Knappen for å vise hele beskrivelsen har kun en visuell effekt.
Salgsoppgaven beskriver vesentlig og lovpålagt informasjon om eiendommen
Se komplett salgsoppgaveNærområdet
Aktiv Aurskog
Annonseinformasjon
| FINN-kode | 427231736 |
|---|---|
| Sist endret | 24. nov. 2025 14:01 |
| Referanse | 1105250087 |
Annonsene kan være mangelfulle i forhold til lovpålagt opplysningsplikt. Før bindende avtale inngås oppfordres interessenter til å innhente komplett informasjon fra meglerforetaket, selger eller utleier.





























































