Bildegalleri

Velkommen til Gamle Hellvikvei 55 - Presentert av Thor Vegard Bjørnerud v/ Privatmegleren Park.
Solåsen/ Hellvik
Pen 1/2-part tomannsbolig | fjordutsikt | solrik hage & terrasser | barnevennlig | garasje | lader
Prisantydning7 290 000 kr
Nøkkelinfo
- Boligtype
- Tomannsbolig
- Eieform
- Eier (Selveier)
- Soverom
- 3
- Internt bruksareal
- 105 m² (BRA-i)
- Bruksareal
- 123 m²
- Eksternt bruksareal
- 18 m² (BRA-e)
- Balkong/Terrasse
- 57 m² (TBA)
- Byggeår
- 2001
- Energimerking
- D - Oransje
- Rom
- 4
- Tomteareal
- 5 736 m² (eiet)
- Boligselgerforsikring
- Ja
Fasiliteter
Balkong/Terrasse
Peis/Ildsted
Ingen gjenboere
Barnevennlig
Rolig
Sentralt
Garasje/P-plass
Bademulighet
Turterreng
Offentlig vann/kloakk
Utsikt
Visning
Alle våre visninger har påmelding. På denne måten sikrer vi at megler har god oversikt og tid til å imøtekomme alle interessenter på beste måte. Dette er veldig verdifullt for boligkjøpere og for oss. Det er enkelt å melde seg på, og du kan like enkelt melde deg av.
Kontakt også gjerne megler i forkant av visning dersom du har spørsmål.
VisningspåmeldingOm boligen
Privatmegleren Park v/Thor Vegard Bjørnerud har gleden av å presentere Gamle Hellvikvei 55!
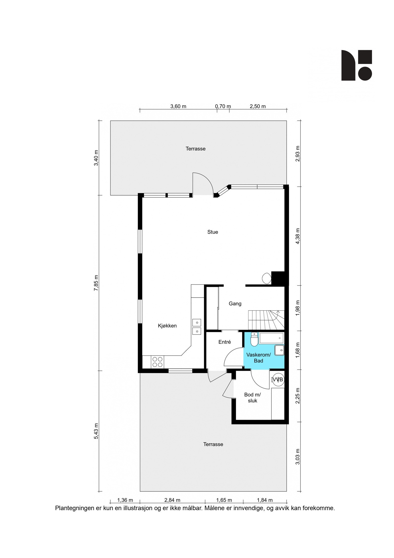
Lys og velholdt halvpart av tomannsbolig med utsikt mot Oslo og fjorden. Planløsningen er gjennomtenkt over to plan med gode lysforhold og direkte utgang til terrasse og hage. Rolig og barnevennlig beliggenhet på Hellvik med kort vei til skole, barnehage, buss, marka og badestrender.
- Fjordutsikt og gode solforhold
- Åpen stue/kjøkken med moderne innredning
- 3 soverom, 2 bad og separat vaskerom m/egen inngang
- Solrike uteplasser på begge sider og hage
- Garasje m/lader
- Gangavstand til buss, skole og barnehage
NB: Knappen for å vise hele beskrivelsen har kun en visuell effekt.
NB: Knappen for å vise hele beskrivelsen har kun en visuell effekt.
Salgsoppgaven beskriver vesentlig og lovpålagt informasjon om eiendommen
Se komplett salgsoppgaveNyttige lenker
Nærområdet

PrivatMegleren Park
Kun det beste på dine vegne
Annonsene kan være mangelfulle i forhold til lovpålagt opplysningsplikt. Før bindende avtale inngås oppfordres interessenter til å innhente komplett informasjon fra meglerforetaket, selger eller utleier.
















































