Bildegalleri

Velkommen til Iver Holters vei 13
Enebolig med attraktiv beliggenhet på Ingieråsen - 4 soverom og 2 stuer - Stor tomt (2149 kvm) - Garasje
Nøkkelinfo
- Boligtype
- Enebolig
- Eieform
- Eier (Selveier)
- Soverom
- 4
- Internt bruksareal
- 242 m² (BRA-i)
- Bruksareal
- 278 m²
- Eksternt bruksareal
- 36 m² (BRA-e)
- Balkong/Terrasse
- 21 m² (TBA)
- Byggeår
- 1975
- Energimerking
- F - Gul
- Tomteareal
- 2 149 m² (eiet)
Fasiliteter
Om boligen
Velkommen til Iver Holters vei 13 - Sentrumsnær og flott beliggende enebolig i et populært boligområde på Ingieråsen. Det er trygg gangvei til både skoler og barnehager.
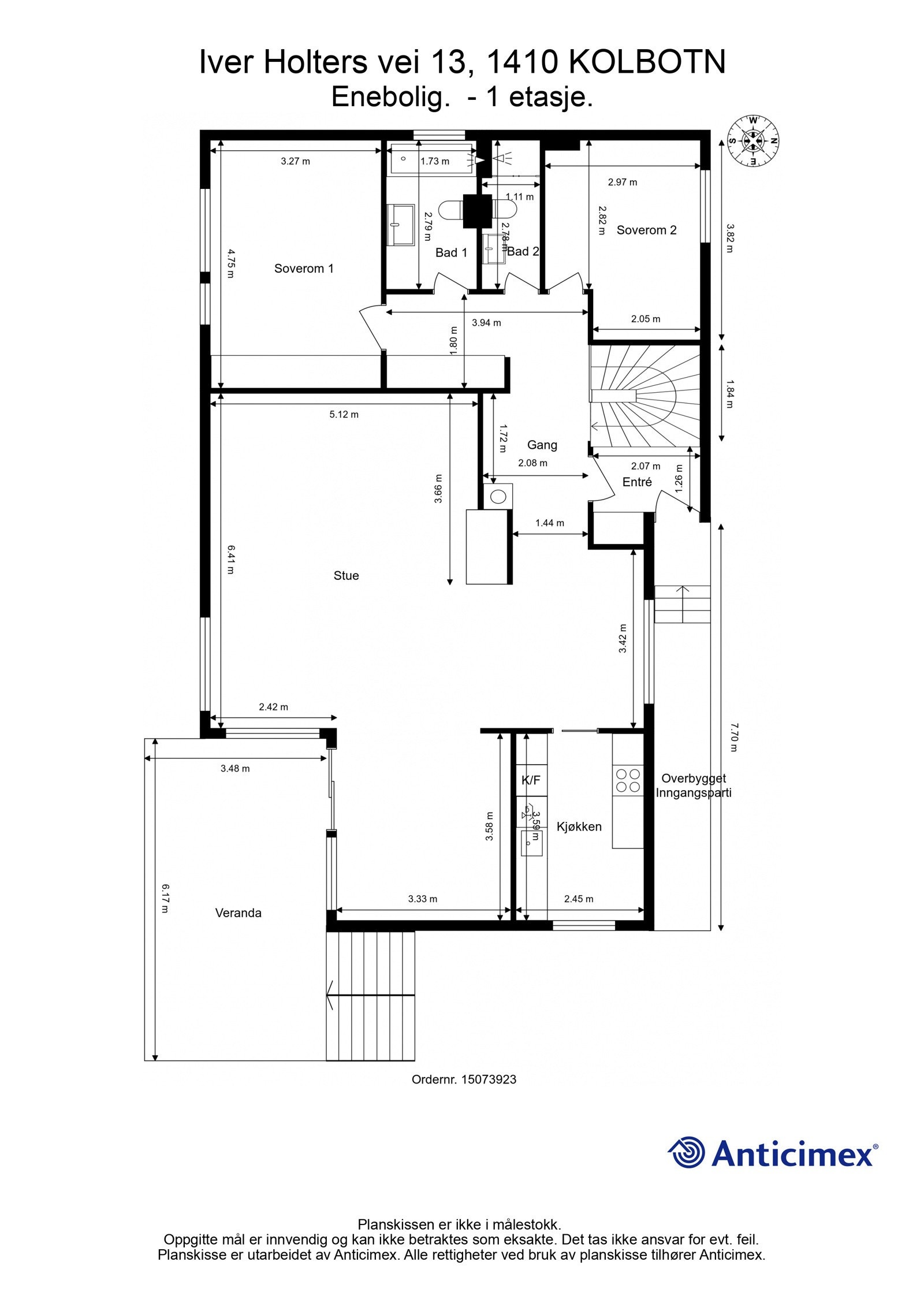
Innholdsrik enebolig over 2 plan. Inneholder bl.a. stor stue, romslig kjellerstue, 4 soverom, 3 bad, mye bodplass, egen inngang til kjeller, m.m. Velholdt bolig som har behov for oppussing/modernisering. Meget barnevennlig, kort gangavstand til Vassbonn barneskole og Ingieråsen ungdomsskole. Det er flere barnehager i nærområdet. Gangavstand til Kolbotn sentrum - her ligger Kolbotn togstasjon med hyppige avganger mot bl.a. Oslo. Toget bruker ca. 19 min til Oslo S. Kort vei til Bunnefjorden med bl.a. badeplasser (Ingierstrand, Hvervenbukta, m.m.) og båthavn. Rett ved Gjersjøen, nær marka, m.m.
Salgsoppgaven beskriver vesentlig og lovpålagt informasjon om eiendommen
Se komplett salgsoppgaveNyttige lenker
Nærområdet
Nord Eiendomsmegling AS
Prisstatistikk
Iver Holters vei 13
på annonsen
prisantydning per kvadratmeter
Prisfordeling
Pris per m² ligger 13 943 kr under snittet for eneboliger i Oppegård.
Grafen viser antall eneboliger solgt i Oppegård siste året fordelt på pris per m² - totalt 148 eneboliger
Antall boliger
Kvadratmeterpris tilsvarer prisantydning pluss fellesgjeld per kvadratmeter (p-rom eller BRA-i). Prisene i grafen er avrundet til nærmeste 1000 kr.
Annonsene kan være mangelfulle i forhold til lovpålagt opplysningsplikt. Før bindende avtale inngås oppfordres interessenter til å innhente komplett informasjon fra meglerforetaket, selger eller utleier.













































