Bildegalleri

Velkommen til Ridderkleiva 86A, presentert av Mari Skaret Christoffersen i Krogsveen. Foto: Trond Reder
Nedre Bleiker
Eierleilighet i 4-mannsbolig, kort vei til Asker sentrum. Stor, solrik uteplass med terrasse og grøntareal. Stort bad.
Prisantydning4 250 000 kr
Nøkkelinfo
- Boligtype
- Leilighet
- Eieform
- Eier (Selveier)
- Soverom
- 2
- Internt bruksareal
- 78 m² (BRA-i)
- Bruksareal
- 90 m²
- Eksternt bruksareal
- 12 m² (BRA-e)
- Balkong/Terrasse
- 45 m² (TBA)
- Etasje
- 1
- Byggeår
- 1969
- Energimerking
- E - Gul
- Rom
- 3
- Tomteareal
- 755 m² (festet)
- Festeavgift
- 6 583 kr
Fasiliteter
Balkong/Terrasse
Barnevennlig
Bredbåndstilknytning
Hage
Kjæledyr tillatt
Ingen gjenboere
Offentlig vann/kloakk
Parkett
Peis/Ildsted
Rolig
Sentralt
Turterreng
Om boligen
Velkommen til Ridderkleiva 86A, presentert av Mari Skaret Christoffersen i Krogsveen.
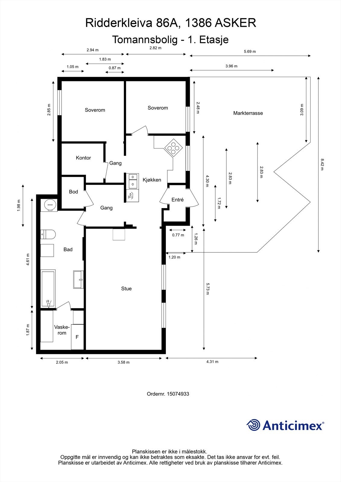
Her får du en koselig 3-roms leilighet, med solrik uteplass. Boligen inneholder entre, Stue, kjøkken, 2 soverom, bad, vaskerom og 2 boder. Rolig område, med kort vei til Asker sentrum med togstasjon og bussholdeplass. Gangavstand til barnehage og skole, samt til et bredt aktivitetstilbud på Risenga med svømmehall og arenaer for ishockey, tennis, turn, basket m.m.
Kort fortalt:
Her får du en koselig 3-roms leilighet, med solrik uteplass. Boligen inneholder entre, Stue, kjøkken, 2 soverom, bad, vaskerom og 2 boder. Rolig område, med kort vei til Asker sentrum med togstasjon og bussholdeplass. Gangavstand til barnehage og skole, samt til et bredt aktivitetstilbud på Risenga med svømmehall og arenaer for ishockey, tennis, turn, basket m.m.
Kort fortalt:
- Lys og hyggelig stue
- Sol fra morgen til kveld
- Peisovn og varmepumpe
- Romslig stue m/spisestue
- Nær Asker sentrum, tog og marka
- Sørvendt markterrasse på 45 kvm
- Solcellepanel
- Godt med lagringsplass
- Beliggende i rolig område
- Moderniseringsbehov
Velkommen til visning
NB: Knappen for å vise hele beskrivelsen har kun en visuell effekt.
NB: Knappen for å vise hele beskrivelsen har kun en visuell effekt.
Salgsoppgaven beskriver vesentlig og lovpålagt informasjon om eiendommen
Se komplett salgsoppgaveNyttige lenker
Nærområdet
Krogsveen Asker
Verdien av en god megler.
Annonseinformasjon
| FINN-kode | 426661364 |
|---|---|
| Sist endret | 16. mars 2026 09:16 |
| Referanse | KR15.2570 |
Annonsene kan være mangelfulle i forhold til lovpålagt opplysningsplikt. Før bindende avtale inngås oppfordres interessenter til å innhente komplett informasjon fra meglerforetaket, selger eller utleier.





























