Bildegalleri

Enebolig med romslig uthus/garasje. Godt ivaretatt og oppgradert over tid. Pent opparbeidet uteareal. Foto v/ Haukdal, Interiørfoto
Meldal: Stor og innholdsrik enebolig. Oppgradert over tid. Stort uthus/garasjebygg. Vannbåren varme. Gode solforhold.
Prisantydning2 900 000 kr
Nøkkelinfo
- Boligtype
- Enebolig
- Eieform
- Eier (Selveier)
- Soverom
- 5
- Internt bruksareal
- 326 m² (BRA-i)
- Bruksareal
- 326 m²
- Balkong/Terrasse
- 30 m² (TBA)
- Etasje
- 3
- Byggeår
- 1936
- Energimerking
- F - Oransje
- Tomteareal
- 1 023 m² (eiet)
Visning
Ved annonsert visning er det viktig at du melder deg på visningen ved å bruke visningspåmeldingsknappen eller kontakter megler. Annonserte visninger hvor det ikke er noen påmeldte innen kl. 16.00 dagen før visningsdagen vil ikke bli avholdt.
For visninger utover dette, ta direkte kontakt med megler.
VisningspåmeldingOm boligen
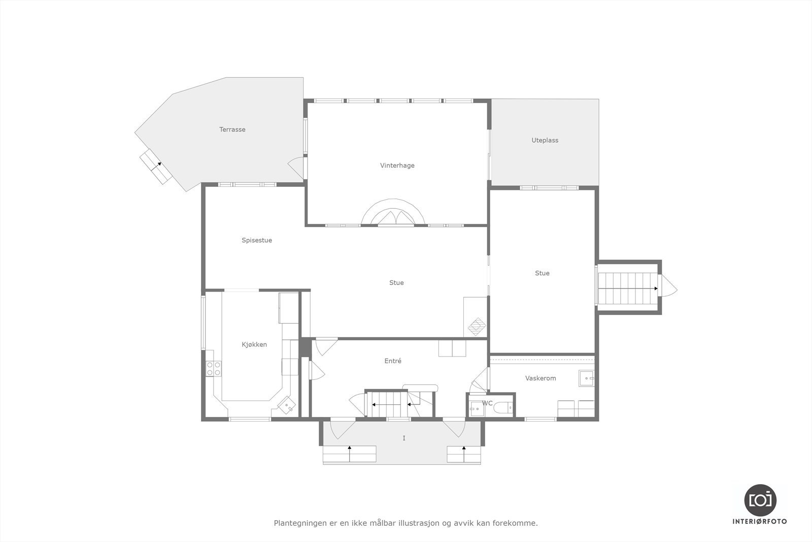
Romslig familiebolig som er godt ivaretatt og oppgradert i årenes løp. Eier opplyser at wc og vaskerom ble oppgradert i ca. 2020, malt boligen i 2022, nye gulv på stue i ca. 2020, påbygd stuedel (vinterhage) i ca. 2014/15, oppgradert bad og kjøkken i ca. 2008 og 2004. Gang i 1. og 2. etg. pusset opp i 2025 samt ett soverom i 2. etg og lagt nytt gulv i trapp i 2025.
Inneholder:
1. etg: Gang, bod, wc, vaskerom, stue, vinterhage, TV-stue, spisestue og kjøkken.
2. etg: Gang, bad og 5 soverom.
Loft: God lagerplass.
Kjeller: Uinnredet areal og teknisk rom.
Uthus/garasje: 1. etg: Boder/lager/hobbyrom. Underetasje: Dobbelgarasje. Totalt 139 kvm.
I Meldal har man barnehage, nyere skole, butikker, bank/forsikring, bussforbindelser m.m. Fra eiendommen er det kort gange til fiskeelva Orkla.
Inneholder:
1. etg: Gang, bod, wc, vaskerom, stue, vinterhage, TV-stue, spisestue og kjøkken.
2. etg: Gang, bad og 5 soverom.
Loft: God lagerplass.
Kjeller: Uinnredet areal og teknisk rom.
Uthus/garasje: 1. etg: Boder/lager/hobbyrom. Underetasje: Dobbelgarasje. Totalt 139 kvm.
I Meldal har man barnehage, nyere skole, butikker, bank/forsikring, bussforbindelser m.m. Fra eiendommen er det kort gange til fiskeelva Orkla.
NB: Knappen for å vise hele beskrivelsen har kun en visuell effekt.
NB: Knappen for å vise hele beskrivelsen har kun en visuell effekt.
Salgsoppgaven beskriver vesentlig og lovpålagt informasjon om eiendommen
Se komplett salgsoppgaveNærområdet
Aktiv Orkla
Annonseinformasjon
| FINN-kode | 426355590 |
|---|---|
| Sist endret | 11. nov. 2025 09:02 |
| Referanse | 1702250191 |
Annonsene kan være mangelfulle i forhold til lovpålagt opplysningsplikt. Før bindende avtale inngås oppfordres interessenter til å innhente komplett informasjon fra meglerforetaket, selger eller utleier.










































