Bildegalleri

Velkommen til Tjuvholmen og Lille Stranden 7, ved Karoline Dovland i EIE Foto: Paul Dragoman
Tjuvholmen
Toppleilighet Tjuvholmen | 15kvm Balkong | Nymalt 2025 | Fiskebensparkett | Selvaag Pluss konsept
Prisantydning8 490 000 kr
Nøkkelinfo
- Boligtype
- Leilighet
- Eieform
- Eier (Selveier)
- Soverom
- 1
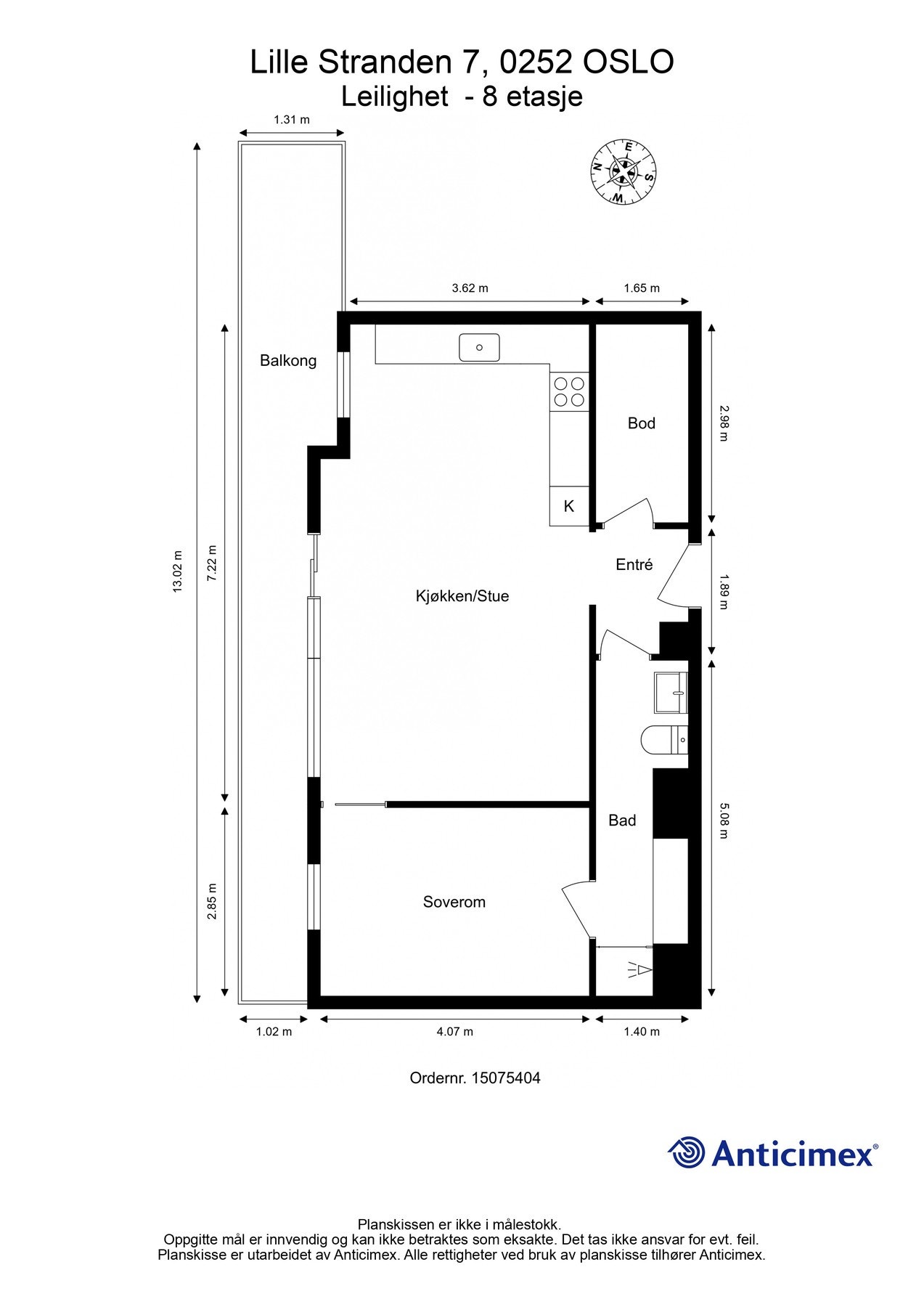
- Internt bruksareal
- 58 m² (BRA-i)
- Bruksareal
- 63 m²
- Eksternt bruksareal
- 5 m² (BRA-e)
- Balkong/Terrasse
- 15 m² (TBA)
- Etasje
- 8
- Byggeår
- 2008
- Energimerking
- C - Mørkegrønn
- Rom
- 2
- Tomteareal
- 3 265 m² (eiet)
Fasiliteter
Balkong/Terrasse
Garasje/P-plass
Kabel-TV
Fiskemulighet
Alarm
Heis
Offentlig vann/kloakk
Ingen gjenboere
Parkett
Utsikt
Vaktmester-/vektertjeneste
Sentralt
Bredbåndstilknytning
Moderne
Rolig
Bademulighet
Balansert ventilasjon
Om boligen
Lys og moderne toppleilighet beliggende på attraktive Tjuvholmen, med umiddelbar nærhet til populære serveringssteder, kulturopplevelser og gode kollektivforbindelser.
Leiligheten er en del av et unikt Pluss-konsept som gjør hverdagen enklere og mer behagelig. Her får du tilgang til bemannet serviceavdeling, lobby, treningsrom, møterom, selskapslokale og felleskjøkken. Her kan du nyte dagens avis med morgenkaffen. Det tilbys også ulike servicetjenester som rengjøring av boligen, ferietilsyn, bilpleie og mer. Videre er det felles hage og takterrasse.
Høydepunkter
- Toppleilighet med nydelig fjordutsikt
- Stor balkong på hele 15 kvm med gode solforhold
- Stort walk- in closet
- God planløsning
- Fiskebensparkett
- Nymalt i 2025
- Varmtvann, fyring og bredbånd/TV inkl
- Selvaag Pluss konsept
- Felles treningsrom, kjøkken, spisesal, kontor, hage, og takterrasse
- Mulighet for leie av garasjeplass i fellesanlegg*
Leiligheten er en del av et unikt Pluss-konsept som gjør hverdagen enklere og mer behagelig. Her får du tilgang til bemannet serviceavdeling, lobby, treningsrom, møterom, selskapslokale og felleskjøkken. Her kan du nyte dagens avis med morgenkaffen. Det tilbys også ulike servicetjenester som rengjøring av boligen, ferietilsyn, bilpleie og mer. Videre er det felles hage og takterrasse.
Høydepunkter
- Toppleilighet med nydelig fjordutsikt
- Stor balkong på hele 15 kvm med gode solforhold
- Stort walk- in closet
- God planløsning
- Fiskebensparkett
- Nymalt i 2025
- Varmtvann, fyring og bredbånd/TV inkl
- Selvaag Pluss konsept
- Felles treningsrom, kjøkken, spisesal, kontor, hage, og takterrasse
- Mulighet for leie av garasjeplass i fellesanlegg*
NB: Knappen for å vise hele beskrivelsen har kun en visuell effekt.
NB: Knappen for å vise hele beskrivelsen har kun en visuell effekt.
Salgsoppgaven beskriver vesentlig og lovpålagt informasjon om eiendommen
Se komplett salgsoppgaveNyttige lenker
Nærområdet
EIE eiendomsmegling Majorstuen & St. Hanshaugen
Annonseinformasjon
| FINN-kode | 426274451 |
|---|---|
| Sist endret | 30. nov. 2025 10:33 |
| Referanse | 25251364 |
Annonsene kan være mangelfulle i forhold til lovpålagt opplysningsplikt. Før bindende avtale inngås oppfordres interessenter til å innhente komplett informasjon fra meglerforetaket, selger eller utleier.












































