Bildegalleri

Velkommen til Gamle Kongeveg 1465 - et flott hyttetun med stor og solid bygningsmasse.
Fagerhaug - Oppdal
EKSEPSJONELT HYTTETUN | 3 hytter | 2 anneks | Stor dobbelgarasje | Tomt på 4,47 mål | Nydelig utsikt | Unik - må sees
Prisantydning9 990 000 kr
- Omkostninger
- 250 840 kr
- Totalpris
- 10 240 840 kr
- Kommunale avg.
- 8 965 kr per år
- Formuesverdi
- 711 738 kr
Pris på lån: fra 40 611 kr/mnd
Eff.rente 5,45 %. 5 994 000 o/20 år. Kostnad: 3 752 640 kr. Totalt 9 746 640 kr.
LånekalkulatorNøkkelinfo
- Beliggenhet
- På fjellet
- Boligtype
- Hytte
- Eieform
- Eier (Selveier)
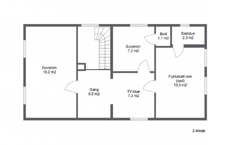
- Internt bruksareal
- 327 m² (BRA-i)
- Bruksareal
- 430 m²
- Eksternt bruksareal
- 103 m² (BRA-e)
- Balkong/Terrasse
- 186 m² (TBA)
- Tomteareal
- 4 479 m² (eiet)
- Byggeår
- 1977
- Soverom
- 6
- Energimerking
- D - Gul
- Overtakelse
- Etter avtale med selger.
Fasiliteter
Innlagt vann
Balkong/Terrasse
Barnevennlig
Bilvei frem
Garasje/P-plass
Peis/Ildsted
Rolig
Utsikt
Innlagt strøm
Turterreng
Visning
Alle våre visninger har påmelding. Meld deg opp til ønsket visningstidspunkt via linken visningspåmelding , eller kontakt megler på telefon, SMS eller mail. Vi anbefaler at salgsoppgaven lastes ned digitalt, og oppfordrer alle til å lese komplett salgsoppgave før visning. Skulle det mot formodning ikke være påmeldte til angitt visningstidspunkt vil ikke visning bli gjennomført.
Husk å lese komplett salgsoppgave før visning. Bestill komplett, utskriftsvennlig salgsoppgave.
VisningspåmeldingOm boligen
Gamle Kongeveg 1465 et flott hyttetun, der byggene er oppført i kraftig håndlaft med en gjennomgående god standard. På tunet står det 3 hytter, 2 anneks, stabbur og en stor dobbelgarasje. Her er det ikke spart på noe, og eiendommen bærer preg av høykvalitetsmaterialer og svært godt håndverk, inkludert skifer, kraftig tømmer, varme i de fleste gulv, varmepumper, sentralstøvsuger og tre klebersteinovner i hovedhytta. En unik eiendom som må sees!
Verdt å merke seg:
- Tomt nær 4,5 mål
- Asfaltert parkering
- Slående utsikt
- Store terrasseflater
- Grillhus m/peis og pizzaovn
- Gulvvarme med app-styring
- Vedskjul med bod
- Utstrakt bruk av spotter
- Innlagt fiber på tomten
- 3 stuer i hovedhytta
- Kjøkken med matbod
- 2 bad, vaskerom og badstu
- 3 soverom og hems
- 2 soverom i den andre
Verdt å merke seg:
- Tomt nær 4,5 mål
- Asfaltert parkering
- Slående utsikt
- Store terrasseflater
- Grillhus m/peis og pizzaovn
- Gulvvarme med app-styring
- Vedskjul med bod
- Utstrakt bruk av spotter
- Innlagt fiber på tomten
- 3 stuer i hovedhytta
- Kjøkken med matbod
- 2 bad, vaskerom og badstu
- 3 soverom og hems
- 2 soverom i den andre
NB: Knappen for å vise hele beskrivelsen har kun en visuell effekt.
NB: Knappen for å vise hele beskrivelsen har kun en visuell effekt.
Salgsoppgaven beskriver vesentlig og lovpålagt informasjon om eiendommen
Se komplett salgsoppgaveNyttige lenker
Nærområdet
Heimdal Eiendomsmegling avd. Melhus
Annonseinformasjon
| FINN-kode | 426116809 |
|---|---|
| Sist endret | 17. okt. 2025 15:12 |
| Referanse | 3-25-0205 |
Annonsene kan være mangelfulle i forhold til lovpålagt opplysningsplikt. Før bindende avtale inngås oppfordres interessenter til å innhente komplett informasjon fra meglerforetaket, selger eller utleier.





































































