Bildegalleri

Velkommen til en svært pen 3-roms leilighet beliggende i et meget attraktivt område.
Grilstad
Svært pen 3-roms fra 2024 på attraktive Grilstad | P-plass | 2 terrasser | Vannbåren gulvvarme | Tilvalg på kjøkken
Prisantydning5 590 000 kr
Nøkkelinfo
- Boligtype
- Leilighet
- Eieform
- Eier (Selveier)
- Soverom
- 2
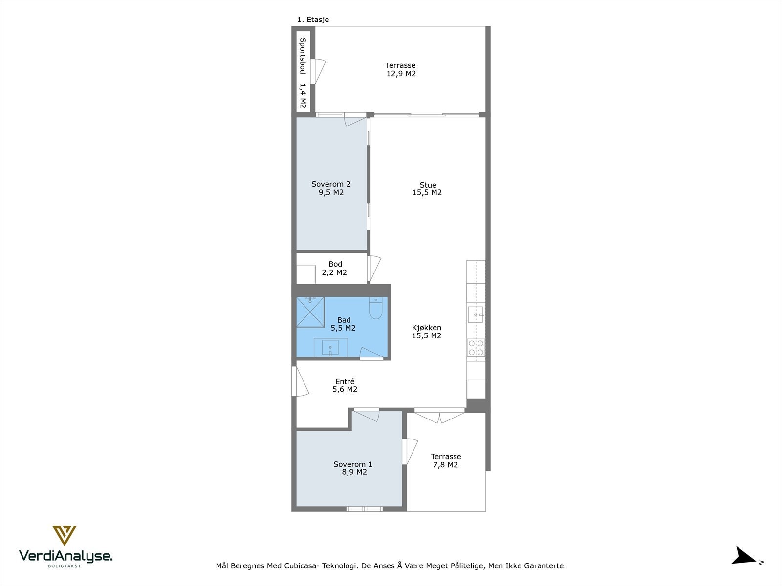
- Internt bruksareal
- 66 m² (BRA-i)
- Bruksareal
- 73 m²
- Eksternt bruksareal
- 7 m² (BRA-e)
- Balkong/Terrasse
- 21 m² (TBA)
- Etasje
- 1
- Byggeår
- 2024
- Energimerking
- B - Mørkegrønn
- Rom
- 3
- Tomteareal
- 3 298 m² (eiet)
Fasiliteter
Balkong/Terrasse
Barnevennlig
Bredbåndstilknytning
Garasje/P-plass
Heis
Kjæledyr tillatt
Kabel-TV
Offentlig vann/kloakk
Parkett
Rolig
Sentralt
Vaktmester-/vektertjeneste
Bademulighet
Strandlinje
Turterreng
Lademulighet
Balansert ventilasjon
Visning
tirsdag, 13. januar
17:30 – 18:15
Velkommen til visning! Meld deg på ved å trykke "visningspåmelding" i våre boligannonser. Ta gjerne kontakt med megler i forkant av visningen om du har spørsmål.
VisningspåmeldingOm boligen
Velkommen til en svært pen 3-roms leilighet beliggende i et meget attraktivt område. Fra leiligheten er det gangavstand til populære utfarts- og oppholdssteder, som f.eks. Grilstadfjæra, Ranheimsfjæra og Ladestien. Du finner også Flipper Kafe like i nærheten, samt Grilstadporten med dagligvarebutikk, Posten og treningssenter.
Kvaliteter ved leiligheten jeg ønsker å trekke frem:
- Leiligheten ble ferdigstilt i 2024 og holder en gjennomgående god standard.
- Ekstra tilvalg på kjøkken som f.eks. vinskap og dampovn.
- 2 terrasser på hver side av leiligheten.
- Flott enstavs parkett.
- Egen p-plass i felles oppvarmet kjeller. Lagt klart til elbil-lader.
- Lave felleskostnader.
Velkommen til en hyggelig visning!
Kvaliteter ved leiligheten jeg ønsker å trekke frem:
- Leiligheten ble ferdigstilt i 2024 og holder en gjennomgående god standard.
- Ekstra tilvalg på kjøkken som f.eks. vinskap og dampovn.
- 2 terrasser på hver side av leiligheten.
- Flott enstavs parkett.
- Egen p-plass i felles oppvarmet kjeller. Lagt klart til elbil-lader.
- Lave felleskostnader.
Velkommen til en hyggelig visning!
NB: Knappen for å vise hele beskrivelsen har kun en visuell effekt.
NB: Knappen for å vise hele beskrivelsen har kun en visuell effekt.
Salgsoppgaven beskriver vesentlig og lovpålagt informasjon om eiendommen
Se komplett salgsoppgaveNyttige lenker
Nærområdet
DNB Eiendom AS
Fra hjem til hjem
Annonseinformasjon
| FINN-kode | 425615308 |
|---|---|
| Sist endret | 02. jan. 2026 13:30 |
| Referanse | 823250226 |
Annonsene kan være mangelfulle i forhold til lovpålagt opplysningsplikt. Før bindende avtale inngås oppfordres interessenter til å innhente komplett informasjon fra meglerforetaket, selger eller utleier.

































