Bildegalleri

Velkommen til denne innholdsrike eneboligen i Brækkahaugen 14!

Mørkved

Innholdsrik enebolig over 2 plan i familievennlig område! - Garasje og romslig tomt - Korte vei til butikk, skoler & bhg

Prisantydning5 850 000 kr
Totalpris
5 997 340 kr
Omkostninger
147 340 kr
Kommunale avg.
22 227 kr per år
Formuesverdi
1 409 444 kr

Nøkkelinfo

Boligtype
Enebolig
Eieform
Eier (Selveier)
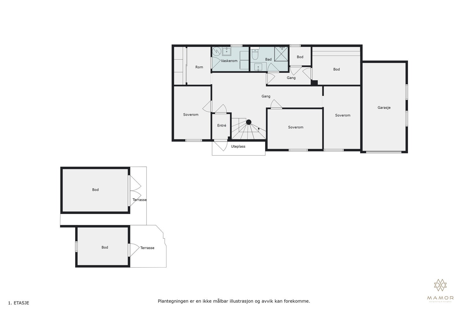
Soverom
4
Internt bruksareal
158 m² (BRA-i)
Bruksareal
188 m²
Eksternt bruksareal
30 m² (BRA-e)
Balkong/Terrasse
30 m² (TBA)
Byggeår
1963
Energimerking
G - Oransje
Rom
5
Tomteareal
1 129 m² (eiet)

Les mer om bruksareal her

Fasiliteter

Barnevennlig
Balkong/Terrasse
Garasje/P-plass
Offentlig vann/kloakk
Peis/Ildsted
Turterreng
Utsikt
Sentralt
Rolig

Visning

mandag, 23. mars
17:00 – 17:45
Meld deg på visning eller kontakt eiendomsmegler for privatvisning. Visning blir ikke gjennomført uten påmeldte.
Visningspåmelding

Om boligen

Velkommen til denne innholdsrike eneboligen i familievennlige Brækkahaugen! Her kan du nyte korte avstander til det du trenger i hverdagen, mens du samtidig har god boltreplass på egen eiendom!

Beliggenheten legger til rette kort avstand til dagligvarehandel, Hunstadsenteret, skole, barnehage, videregående skole, Nord universitet og Politihøgskolen! I tillegg til at du har rolige omgivelser hvor du får slappet av.

Eneboligen fordeler seg over 2 plan byr på gode løsninger og godt med lagringsplass. Tomten er godt utnyttet med stor og praktisk innkjørsel, stor hage, integrert garasje og uteboder!

Velkommen til hyggelig visning!

Salgsoppgaven beskriver vesentlig og lovpålagt informasjon om eiendommen

Se komplett salgsoppgave

Nærområdet

Annonseinformasjon

FINN-kode425566137
Sist endret15. mars 2026 21:43
Referanse85250130

Rapporter annonse

Annonsene kan være mangelfulle i forhold til lovpålagt opplysningsplikt. Før bindende avtale inngås oppfordres interessenter til å innhente komplett informasjon fra meglerforetaket, selger eller utleier.