Bildegalleri

Velkommen til Ankerveien 4 - Innholdsrik og tiltalende 4 roms toppleilighet på enden av bygget. Her kan du nyte fantastiske sol- og utsiktsforhold ut mot Børvasstindene og Saltenfjorden fra balkong og fra stuevinduet.
Bodøsjøen
Innholdsrik og tiltalende 4-roms toppleilighet på enden av bygget - To balkonger - Fantastiske utsikts- og solforhold
Prisantydning3 050 000 kr
Nøkkelinfo
- Boligtype
- Leilighet
- Eieform
- Andel
- Soverom
- 3
- Internt bruksareal
- 109 m² (BRA-i)
- Bruksareal
- 111 m²
- Balkong/Terrasse
- 12 m² (TBA)
- Etasje
- 3
- Byggeår
- 1975
- Energimerking
- G - Rød
- Rom
- 4
- Tomteareal
- 46 757 m² (eiet)
Fasiliteter
Barnevennlig
Balkong/Terrasse
Garasje/P-plass
Kabel-TV
Offentlig vann/kloakk
Turterreng
Utsikt
Bredbåndstilknytning
Rolig
Om boligen
Vi har gleden av å presentere Ankerveien 4- en toppleilighet på hjørne med gjennomtenkte løsninger og utsikt mot Saltenfjorden og Børvasstindene.
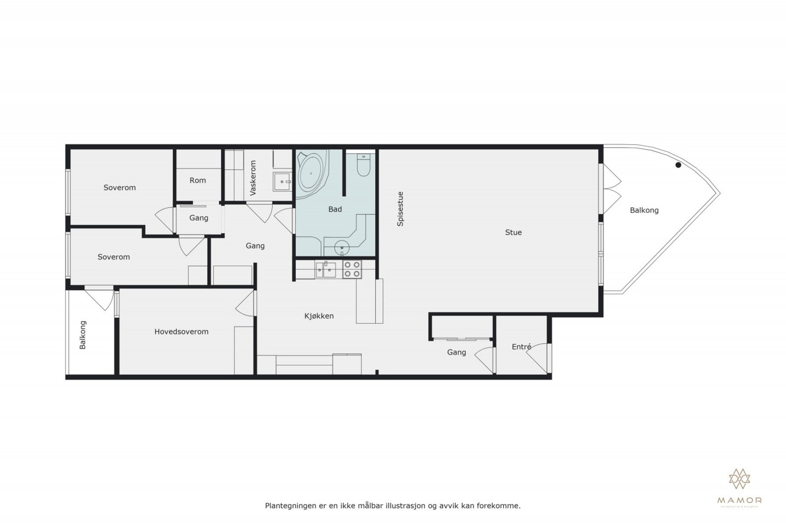
Planløsningen oppleves som svært god med en innbydende entré, gang, bad, bod omgjort til praktisk vaskerom (ikke byggemeldt), tre gode soverom, kjøkken fra 2023 med god benke- og skapplass, stor stue med gode møbleringsmuligheter. I tillegg har leiligheten to balkonger med utgang fra stue og soverom. Av oppbevaring har leiligheten en innvendig og en utvendig bod.
Fellesparkering med muligheter for lading av elbil.
Dette er et attraktivt boligområde på nedsiden av Bodøsjøveien. Leiligheten ligger i umiddelbar nærhet til store uteområder med plener, lekeplasser, grillplass og fotballbane. I tillegg er det gangavstand til både butikker og skoler.
Velkommen på visning!
Planløsningen oppleves som svært god med en innbydende entré, gang, bad, bod omgjort til praktisk vaskerom (ikke byggemeldt), tre gode soverom, kjøkken fra 2023 med god benke- og skapplass, stor stue med gode møbleringsmuligheter. I tillegg har leiligheten to balkonger med utgang fra stue og soverom. Av oppbevaring har leiligheten en innvendig og en utvendig bod.
Fellesparkering med muligheter for lading av elbil.
Dette er et attraktivt boligområde på nedsiden av Bodøsjøveien. Leiligheten ligger i umiddelbar nærhet til store uteområder med plener, lekeplasser, grillplass og fotballbane. I tillegg er det gangavstand til både butikker og skoler.
Velkommen på visning!
NB: Knappen for å vise hele beskrivelsen har kun en visuell effekt.
NB: Knappen for å vise hele beskrivelsen har kun en visuell effekt.
Salgsoppgaven beskriver vesentlig og lovpålagt informasjon om eiendommen
Se komplett salgsoppgaveNyttige lenker
Nærområdet
EiendomsMegler 1 Bodø - Stormen
Vi er der du er - EiendomsMegler 1
Annonseinformasjon
| FINN-kode | 425526823 |
|---|---|
| Sist endret | 09. des. 2025 13:41 |
| Referanse | 23250344 |
Annonsene kan være mangelfulle i forhold til lovpålagt opplysningsplikt. Før bindende avtale inngås oppfordres interessenter til å innhente komplett informasjon fra meglerforetaket, selger eller utleier.































