Bildegalleri

Velkommen til Skjelavikvegen 69 - En flott og meget innholdsrik enebolig med attraktiv beliggenhet, i et barnevennlig boligområde i Kvalsvik/Vestre!
Kvalsvik/Veste
Stor og flott enebolig med naturskjønn beliggenhet - Dobbelgarasje - Solrike, skjermede uteområder - Havutsikt
Prisantydning6 700 000 kr
Nøkkelinfo
- Boligtype
- Enebolig
- Eieform
- Eier (Selveier)
- Soverom
- 4
- Internt bruksareal
- 212 m² (BRA-i)
- Bruksareal
- 272 m²
- Eksternt bruksareal
- 60 m² (BRA-e)
- Byggeår
- 1995
- Rom
- 7
- Tomteareal
- 752 m² (eiet)
Fasiliteter
Balkong/Terrasse
Barnevennlig
Garasje/P-plass
Hage
Offentlig vann/kloakk
Parkett
Peis/Ildsted
Rolig
Sentralt
Utsikt
Bademulighet
Fiskemulighet
Turterreng
Visning
Trykk på "Visningspåmelding"-knappen for enkelt å melde deg på. Vi gjør oppmerksom på at visning ikke blir avholdt, dersom det ikke er påmeldte. Velkommen til visning!
VisningspåmeldingOm boligen
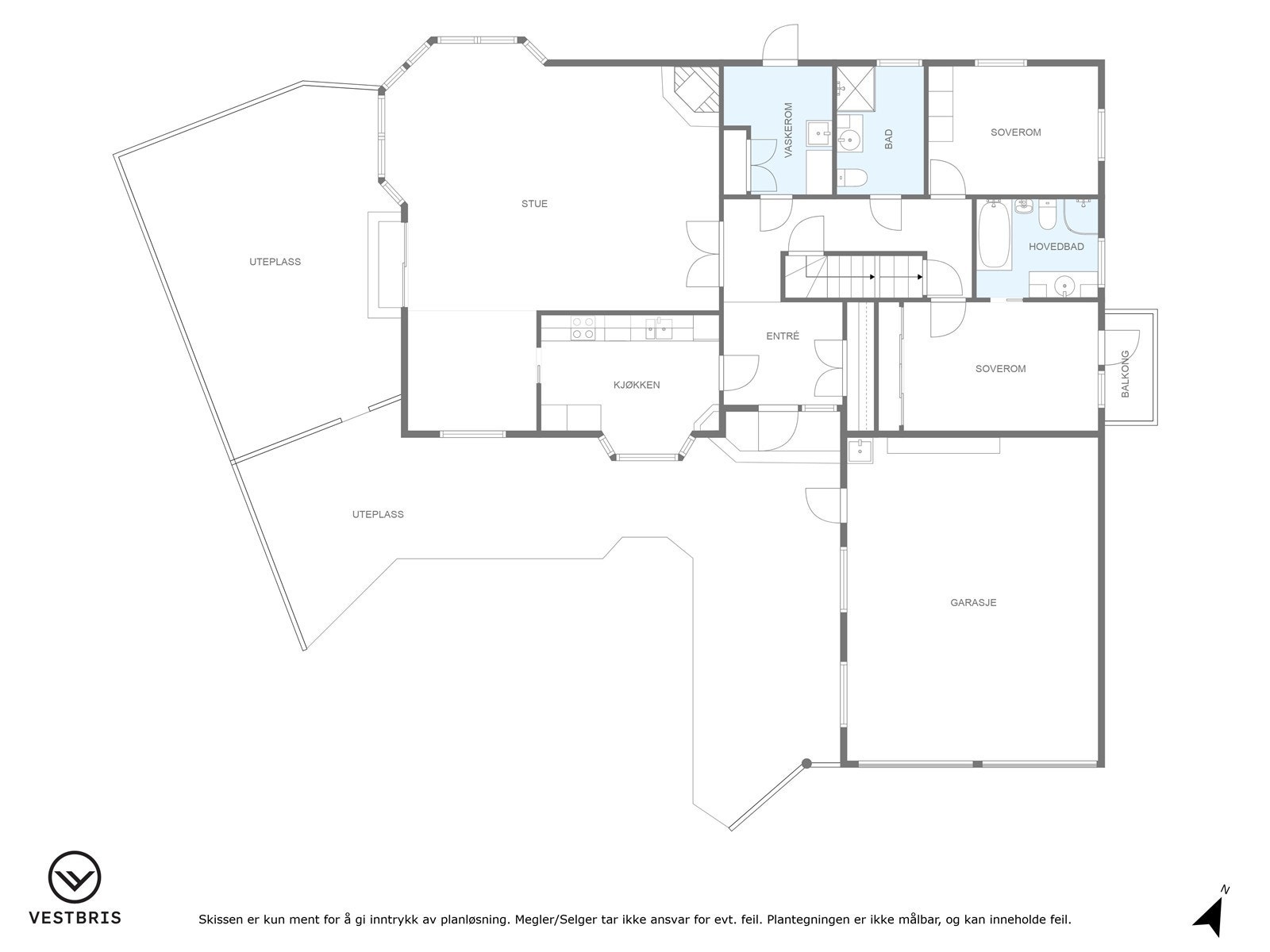
Velkommen til Skjelavikvegen 69 - En flott og meget innholdsrik enebolig med attraktiv beliggenhet, i et barnevennlig boligområde i Kvalsvik/Vestre. Her bor en tett på naturen samtidig som det er kort vei til barnehager, skole, butikker og alle fasilitetene i Haugesund sentrum. Eiendommen kan blant annet skilte med en stor, integrert dobbelgarasje hvor en kan spasere tilnærmet tørrskodd inn i boligen. Praktisk og familievennlig planløsning over tre etasjer med bl.a 4 soverom, 2 stuer, kjøkken, 3 bad, 2 vaskerom. Solrik hage og skjermet uteplass med nydelig utsikt mot havet og heiene. Velkommen på visning!
NB: Knappen for å vise hele beskrivelsen har kun en visuell effekt.
NB: Knappen for å vise hele beskrivelsen har kun en visuell effekt.
Salgsoppgaven beskriver vesentlig og lovpålagt informasjon om eiendommen
Se komplett salgsoppgaveNærområdet
Meglerhuset Rele Haugesund AS
Det komplette meglerhuset
Annonseinformasjon
| FINN-kode | 425458240 |
|---|---|
| Sist endret | 28. nov. 2025 11:36 |
| Referanse | 1-0375/25 |
Annonsene kan være mangelfulle i forhold til lovpålagt opplysningsplikt. Før bindende avtale inngås oppfordres interessenter til å innhente komplett informasjon fra meglerforetaket, selger eller utleier.























































