Bildegalleri

PrivatMegleren Tønsberg v/ Christoffer Fischer har gleden av å presentere Stalsbergveien 43.
Rambergåsen / Nøtterøy
Romslig familiebolig med garasje, fin utsikt og stor, solrik terrasse. 2 stuer og 4 soverom. Idyllisk, nær sjø og skog.
Prisantydning5 750 000 kr
Nøkkelinfo
- Boligtype
- Enebolig
- Eieform
- Eier (Selveier)
- Soverom
- 4
- Internt bruksareal
- 205 m² (BRA-i)
- Bruksareal
- 228 m²
- Eksternt bruksareal
- 23 m² (BRA-e)
- Balkong/Terrasse
- 116 m² (TBA)
- Byggeår
- 1971
- Energimerking
- F - Gul
- Tomteareal
- 817 m² (eiet)
Fasiliteter
Barnevennlig
Balkong/Terrasse
Garasje/P-plass
Offentlig vann/kloakk
Parkett
Peis/Ildsted
Turterreng
Aircondition
Sentralt
Bredbåndstilknytning
Rolig
Lademulighet
Om boligen
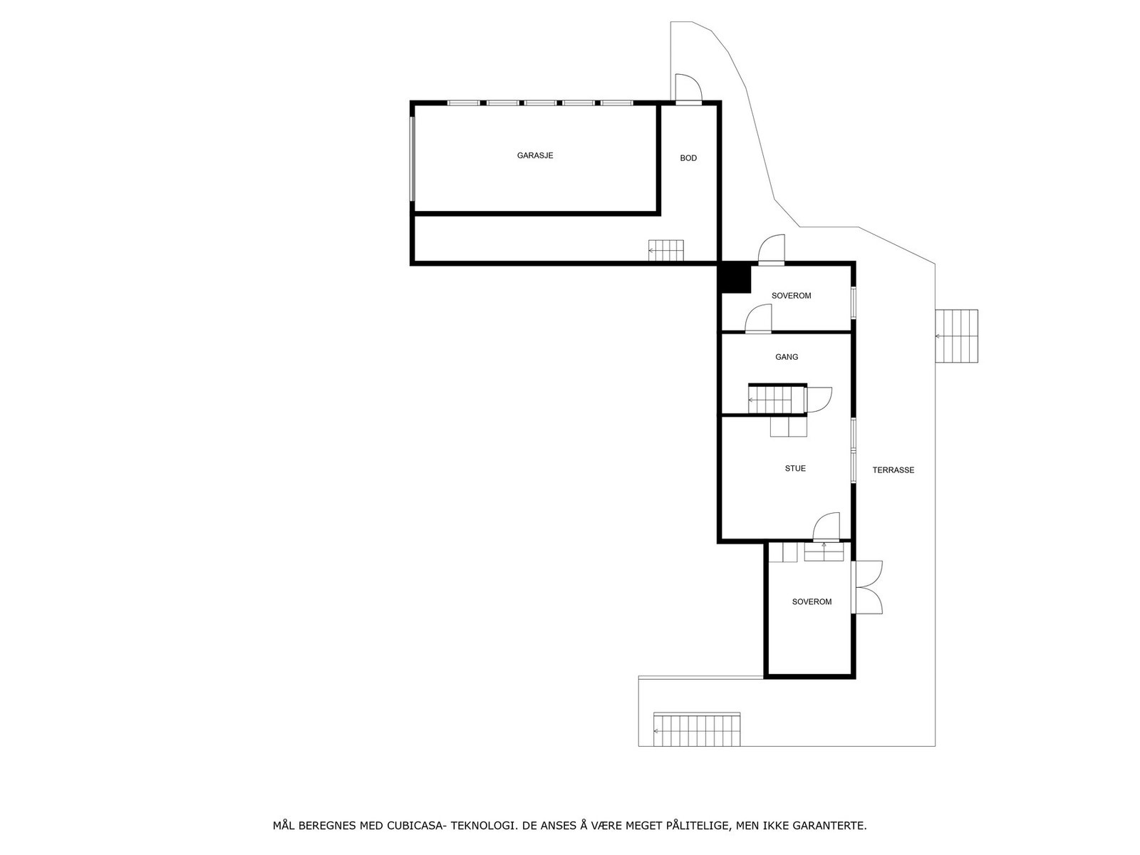
Stalsbergveien 43 er en pen, romslig og velholdt enebolig over to plan; et innbydende familiehjem med to stuer og fire soverom. Boligen har en idyllisk beliggenhet i blindvei, nær sjøen, badeplasser og turveier i skogen. Samtidig som området er stille og rolig, er det kort vei til alle fasiliteter. Nabolaget er meget hyggelig, og boligen har god utsikt mot Slottsfjell. Varme dager nytes på en stor og solfylt terrasse - tilknyttet en overbygd balkong.
Familien samles i en stor, lys og åpen stue med både peis og varmepumpe. Kjøkkenet er romslig, med komfyr, oppvaskmaskin og mye oppbevaring. På et stort bad er det fliser, badekar og dobbelt dusjhjørne. Videre har boligen vaskerom, gjestetoalett og rikelig med lagringsplass.
Parkeringen er god, på en gårdsplass og i en innebygd garasje.
Familien samles i en stor, lys og åpen stue med både peis og varmepumpe. Kjøkkenet er romslig, med komfyr, oppvaskmaskin og mye oppbevaring. På et stort bad er det fliser, badekar og dobbelt dusjhjørne. Videre har boligen vaskerom, gjestetoalett og rikelig med lagringsplass.
Parkeringen er god, på en gårdsplass og i en innebygd garasje.
NB: Knappen for å vise hele beskrivelsen har kun en visuell effekt.
NB: Knappen for å vise hele beskrivelsen har kun en visuell effekt.
Salgsoppgaven beskriver vesentlig og lovpålagt informasjon om eiendommen
Se komplett salgsoppgaveNyttige lenker
Nærområdet

PrivatMegleren Tønsberg
Kun det beste på dine vegne
Annonseinformasjon
| FINN-kode | 425441293 |
|---|---|
| Sist endret | 12. jan. 2026 05:03 |
| Referanse | 13250153 |
Annonsene kan være mangelfulle i forhold til lovpålagt opplysningsplikt. Før bindende avtale inngås oppfordres interessenter til å innhente komplett informasjon fra meglerforetaket, selger eller utleier.



















































