Bildegalleri

EiendomsMegler 1 v/ Morten Høvik har gleden av å presentere Fridtjof Nansens gate 1! Foto: EFKT, Vilde Dahl
Flermannsbolig med 3 boenheter midt i sentrum! 2 x 3-roms leiligheter og nyoppusset hybel i kjeller!
Prisantydning4 750 000 kr
Nøkkelinfo
- Boligtype
- Tomannsbolig
- Eieform
- Eier (Selveier)
- Soverom
- 4
- Internt bruksareal
- 261 m² (BRA-i)
- Bruksareal
- 261 m²
- Byggeår
- 1958
- Energimerking
- E - Oransje
- Rom
- 7
- Tomteareal
- 176 m² (eiet)
Fasiliteter
Balkong/Terrasse
Garasje/P-plass
Offentlig vann/kloakk
Peis/Ildsted
Turterreng
Sentralt
Bredbåndstilknytning
Moderne
Om boligen
EiendomsMegler 1 v/ Morten Høvik har gleden av å presentere Fridtjof Nansens gate 1.
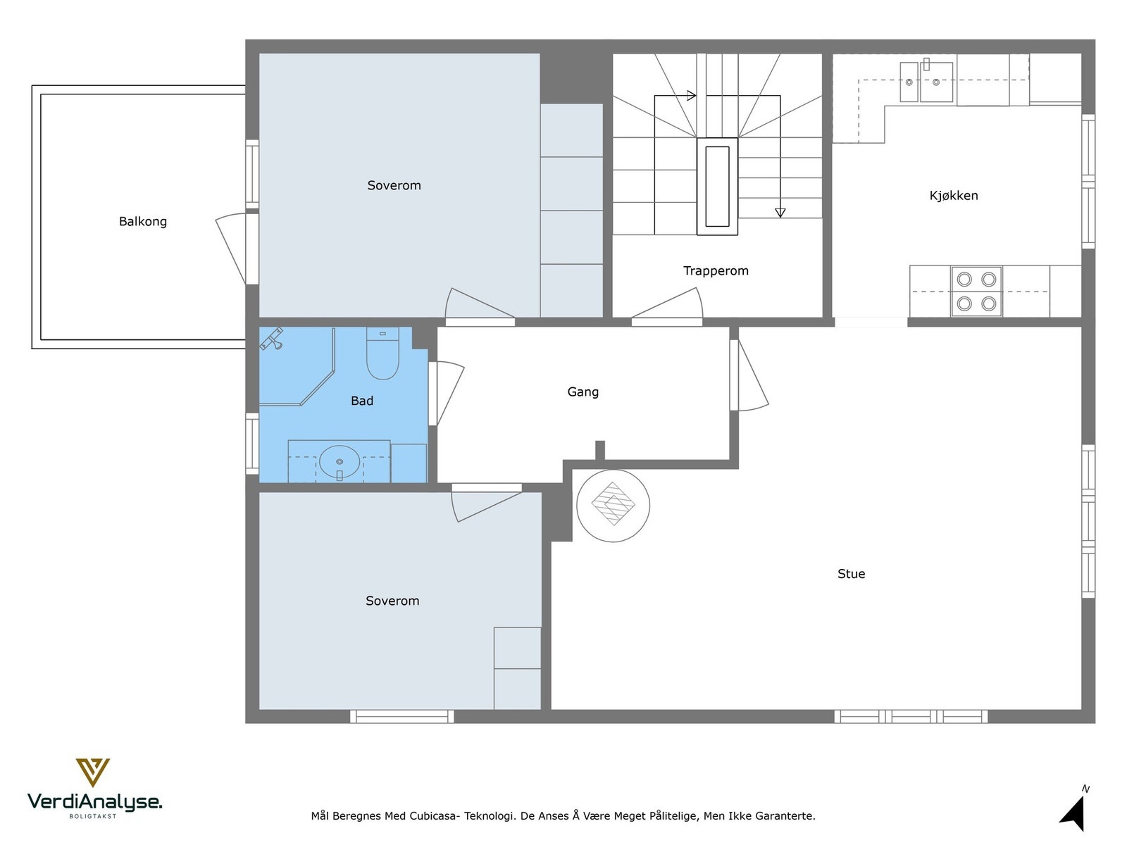
Flermannsbolig med 3 boenheter og uinnredet loftsetasje. I 1. og 2. etasje er det 3-roms leiligheter med hver sin vestvendte balkong. I underetasje er det godkjent og nyoppusset hybelleilighet (2024/25), boder og fellesareal. Loftsetasje er uinnredet. Her bor man midt i sentrum med alle fasiliteter i umiddelbar nærhet. Parkering på egen tomt. Utgang til bakgård fra gang i underetasje.
Velkommen til visning!
Flermannsbolig med 3 boenheter og uinnredet loftsetasje. I 1. og 2. etasje er det 3-roms leiligheter med hver sin vestvendte balkong. I underetasje er det godkjent og nyoppusset hybelleilighet (2024/25), boder og fellesareal. Loftsetasje er uinnredet. Her bor man midt i sentrum med alle fasiliteter i umiddelbar nærhet. Parkering på egen tomt. Utgang til bakgård fra gang i underetasje.
Velkommen til visning!
NB: Knappen for å vise hele beskrivelsen har kun en visuell effekt.
NB: Knappen for å vise hele beskrivelsen har kun en visuell effekt.
Salgsoppgaven beskriver vesentlig og lovpålagt informasjon om eiendommen
Se komplett salgsoppgaveNyttige lenker
Nærområdet
EiendomsMegler 1 Kristiansund
Vi loser deg trygt gjennom hele boligsalget
Annonseinformasjon
| FINN-kode | 425426459 |
|---|---|
| Sist endret | 21. jan. 2026 05:00 |
| Referanse | 17250358 |
Annonsene kan være mangelfulle i forhold til lovpålagt opplysningsplikt. Før bindende avtale inngås oppfordres interessenter til å innhente komplett informasjon fra meglerforetaket, selger eller utleier.

































