Bildegalleri

EiendomsMegler 1 v/ Morten Høvik har gleden av presentere Skytterveien 27 D! Foto: EFKT, Vilde Dahl
Meget romslig enderekkehus på hele 249 BRA i attraktive og barnevennlige Myra! - Garasje
Prisantydning3 190 000 kr
Nøkkelinfo
- Boligtype
- Rekkehus
- Eieform
- Eier (Selveier)
- Soverom
- 4
- Internt bruksareal
- 230 m² (BRA-i)
- Bruksareal
- 249 m²
- Eksternt bruksareal
- 19 m² (BRA-e)
- Byggeår
- 1975
- Energimerking
- F - Oransje
- Rom
- 5
- Tomteareal
- 530 m² (eiet)
Fasiliteter
Barnevennlig
Balkong/Terrasse
Garasje/P-plass
Fiskemulighet
Offentlig vann/kloakk
Peis/Ildsted
Turterreng
Utsikt
Aircondition
Sentralt
Bredbåndstilknytning
Rolig
Visning
tirsdag, 20. januar
17:30 – 18:30
Våre visninger har påmelding. Dette gjør vi for å kunne yte bedre service for våre kunder. Verdifullt for boligkjøper og for oss. Vi anbefaler at salgsoppgaven lastes ned digitalt før visning, og ring oss gjerne på forhånd for spørsmål om boligen. Passer ikke angitt tidspunkt, ta kontakt så finner vi en løsning. Skulle det mot formodning ikke være påmeldte til angitt visningstidspunkt vil ikke visning bli gjennomført.
Om boligen
EiendomsMegler 1 v/ Morten Høvik har gleden av presentere Skytterveien 27 D!
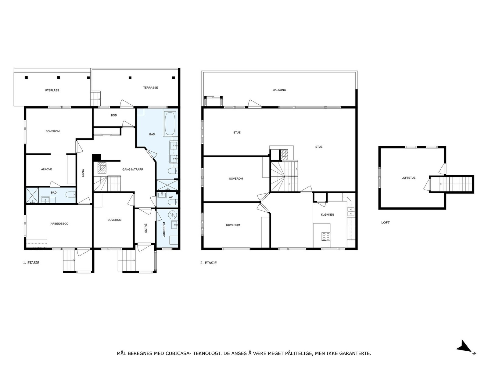
Romslig og godt vedlikeholdt enderekkehus m/garasje i attraktive og barnevennlige Myra! Boligen ble oppført i 1975 og tilbygget i 2002. Boligen er jevnlig og godt vedlikeholdt hvor det kan nevnes at tak og vinduer ble skiftet i 2002, nytt sikringsskap i 2018 og vedovn reinstallert i 2020. Garasjetak ble skiftet i 2023. Boligen går over 3 plan og byr på bl.a stor stue, stort kjøkken med spiseplass, 4 soverom og en sovealkove, 2 bad, vaskerom, boder og gangareal. Via bod i 1. etasje er det utgang til sydvestvendt terrasse og videre tilgang til plen og hage. Fra stue i 2. etasje er det utgang til sydvestvendt veranda.
Velkommen til visning!
Romslig og godt vedlikeholdt enderekkehus m/garasje i attraktive og barnevennlige Myra! Boligen ble oppført i 1975 og tilbygget i 2002. Boligen er jevnlig og godt vedlikeholdt hvor det kan nevnes at tak og vinduer ble skiftet i 2002, nytt sikringsskap i 2018 og vedovn reinstallert i 2020. Garasjetak ble skiftet i 2023. Boligen går over 3 plan og byr på bl.a stor stue, stort kjøkken med spiseplass, 4 soverom og en sovealkove, 2 bad, vaskerom, boder og gangareal. Via bod i 1. etasje er det utgang til sydvestvendt terrasse og videre tilgang til plen og hage. Fra stue i 2. etasje er det utgang til sydvestvendt veranda.
Velkommen til visning!
NB: Knappen for å vise hele beskrivelsen har kun en visuell effekt.
NB: Knappen for å vise hele beskrivelsen har kun en visuell effekt.
Salgsoppgaven beskriver vesentlig og lovpålagt informasjon om eiendommen
Se komplett salgsoppgaveNyttige lenker
Nærområdet
EiendomsMegler 1 Kristiansund
Vi loser deg trygt gjennom hele boligsalget
Annonseinformasjon
| FINN-kode | 425418734 |
|---|---|
| Sist endret | 09. jan. 2026 17:58 |
| Referanse | 17240175 |
Annonsene kan være mangelfulle i forhold til lovpålagt opplysningsplikt. Før bindende avtale inngås oppfordres interessenter til å innhente komplett informasjon fra meglerforetaket, selger eller utleier.





























