Bildegalleri

Stor, solrik terrasse med en imponerende utsikt over innseilingen i Oslofjorden. Foto: Per O. Skjellnan v/Eftk
Bjørnemyr
Fantastisk utsikt over Oslofjorden! Stor vestvendt og solrik terrasseleilighet med alt på en flate. Garasje.
Prisantydning7 490 000 kr
Nøkkelinfo
- Boligtype
- Leilighet
- Eieform
- Eier (Selveier)
- Soverom
- 3
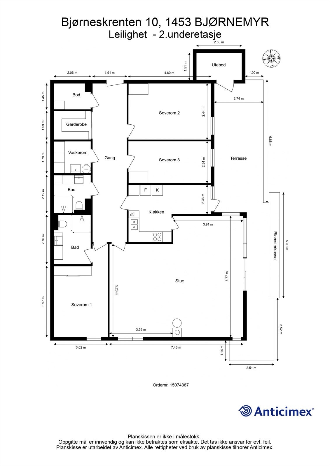
- Internt bruksareal
- 139 m² (BRA-i)
- Bruksareal
- 150 m²
- Eksternt bruksareal
- 11 m² (BRA-e)
- Balkong/Terrasse
- 33 m² (TBA)
- Etasje
- -2
- Byggeår
- 1986
- Energimerking
- F - Rød
- Rom
- 4
- Tomteareal
- 12 880 m² (eiet)
Fasiliteter
Balkong/Terrasse
Barnevennlig
Garasje/P-plass
Kjæledyr tillatt
Offentlig vann/kloakk
Parkett
Peis/Ildsted
Rolig
Sentralt
Utsikt
Bademulighet
Turterreng
Visning
søndag, 08. februar
13:00 – 14:30
Ta kontakt med megler for avtale om privatvisning.
Ønsker du kun å bli holdt orientert, kan du fra eiendommens hjemmeside få varsel om solgtpris, eller kontakte megler.
VisningspåmeldingOm boligen
Panoramautsikt over hele indre Oslofjord, fra Bygdøy til Slemmestad.
Leiligheten er hyggelig og praktisk med alt på en flate, 2 bad hvorav 1 med tilknytning til hovedsoverommet, adskilt kjøkken, og eget vaskerom. Stor terrasse med gode solforhold. Her er det mulighet for flere sittegrupper og rikelig med beplantning i plassbygde plantekasser. Medfølgende biloppstillingsplass i felles garasjeanlegg. Leiligheten ligger i en stille og rolig blindvei med gangavstand til bl.a. sjøen, bussholdeplass, butikker, skoler, barnehager og marka. Lekeplass i nærområdet.
Leiligheten er hyggelig og praktisk med alt på en flate, 2 bad hvorav 1 med tilknytning til hovedsoverommet, adskilt kjøkken, og eget vaskerom. Stor terrasse med gode solforhold. Her er det mulighet for flere sittegrupper og rikelig med beplantning i plassbygde plantekasser. Medfølgende biloppstillingsplass i felles garasjeanlegg. Leiligheten ligger i en stille og rolig blindvei med gangavstand til bl.a. sjøen, bussholdeplass, butikker, skoler, barnehager og marka. Lekeplass i nærområdet.
NB: Knappen for å vise hele beskrivelsen har kun en visuell effekt.
NB: Knappen for å vise hele beskrivelsen har kun en visuell effekt.
Salgsoppgaven beskriver vesentlig og lovpålagt informasjon om eiendommen
Se komplett salgsoppgaveNyttige lenker
Nærområdet
Krogsveen Nesodden
Verdien av en god megler.
Annonseinformasjon
| FINN-kode | 425277950 |
|---|---|
| Sist endret | 05. feb. 2026 09:12 |
| Referanse | KR51.2540 |
Annonsene kan være mangelfulle i forhold til lovpålagt opplysningsplikt. Før bindende avtale inngås oppfordres interessenter til å innhente komplett informasjon fra meglerforetaket, selger eller utleier.




































