Bildegalleri

Velkommen til Brendsrudtoppen 162 - En flott arkitekttegnet enebolig med særpreg!
Brendsrudtoppen - Flott mulighet!
Arkitekttegnet enebolig med særpreg. Flott, solrik tomt. Stor dobbelgarasje. Hybelmulighet. Kino. Barnevennlig blindvei
Prisantydning11 990 000 kr
Nøkkelinfo
- Boligtype
- Enebolig
- Eieform
- Eier (Selveier)
- Soverom
- 6
- Internt bruksareal
- 267 m² (BRA-i)
- Bruksareal
- 317 m²
- Eksternt bruksareal
- 50 m² (BRA-e)
- Balkong/Terrasse
- 60 m² (TBA)
- Etasje
- 3
- Byggeår
- 1983
- Energimerking
- Tomteareal
- 710 m² (eiet)
Fasiliteter
Balkong/Terrasse
Barnevennlig
Bredbåndstilknytning
Garasje/P-plass
Hage
Kabel-TV
Offentlig vann/kloakk
Peis/Ildsted
Rolig
Sentralt
Turterreng
Lademulighet
Om boligen
Velkommen til ditt nye hjem i Brendsrudtoppen 162 - En meget innholdsrik og flott enebolig med særpreg! Svært barnevennlig beliggende, i en rolig og skjermet blindvei. Boligen er stor og familievennlig, med god planløsning og mange bruksmuligheter. Flotte uteområder, med gressplen og terrasse. Mulighet for hybeldel. Svært gode lys- og solforhold på eiendommen.
Fremstående kvaliteter:
- Spennende og unik enebolig!
- Gjennomgående god standard
- Familievennlig planløsning
- Meget gode solforhold
- Idyllisk hage m/terrasser, pergola, gressplen
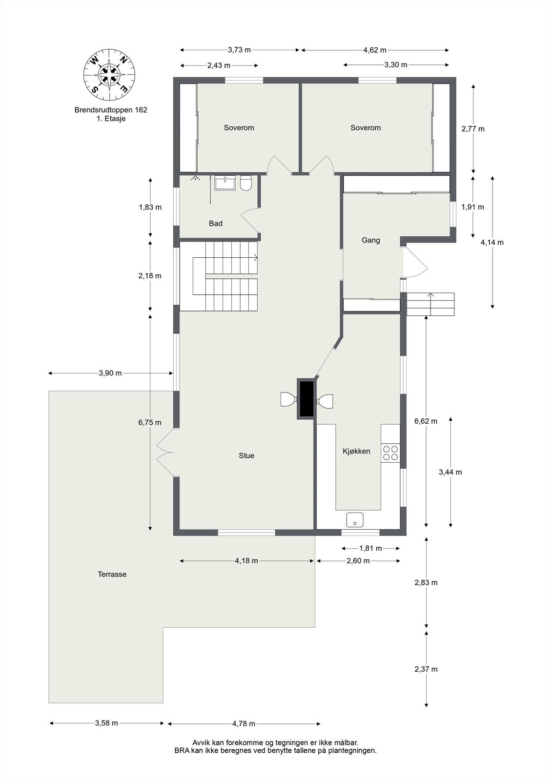
- 4/6 soverom
- 2 bad
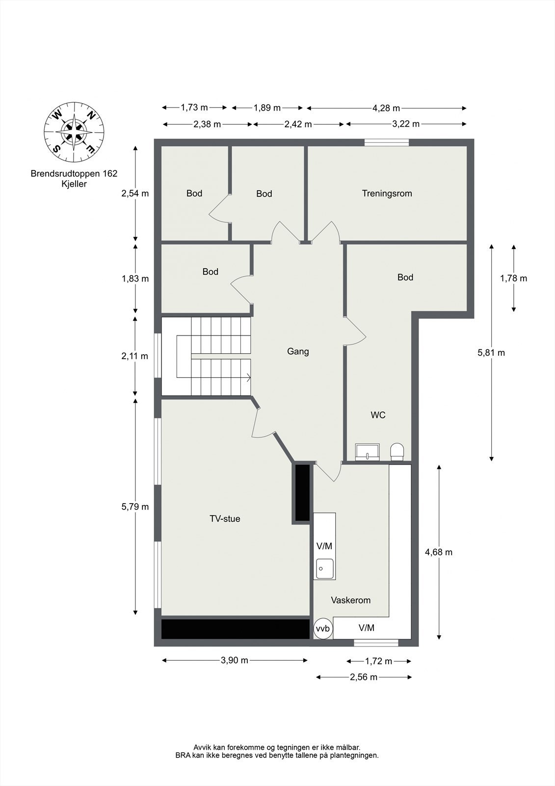
- Vaskerom
- Kinorom
- Treningsrom
- Mulighet for hybeldel
- Stor dobbelgarasje
- Svært god lagringsplass
- Rolig og attraktivt nabolag
- Stille og trygg blindvei
- Kort vei til buss, tog, barnehage, skoler
Fremstående kvaliteter:
- Spennende og unik enebolig!
- Gjennomgående god standard
- Familievennlig planløsning
- Meget gode solforhold
- Idyllisk hage m/terrasser, pergola, gressplen
- 4/6 soverom
- 2 bad
- Vaskerom
- Kinorom
- Treningsrom
- Mulighet for hybeldel
- Stor dobbelgarasje
- Svært god lagringsplass
- Rolig og attraktivt nabolag
- Stille og trygg blindvei
- Kort vei til buss, tog, barnehage, skoler
NB: Knappen for å vise hele beskrivelsen har kun en visuell effekt.
NB: Knappen for å vise hele beskrivelsen har kun en visuell effekt.
Salgsoppgaven beskriver vesentlig og lovpålagt informasjon om eiendommen
Se komplett salgsoppgaveNyttige lenker
Nærområdet
Nordvik Bærum
Annonseinformasjon
| FINN-kode | 425102835 |
|---|---|
| Sist endret | 02. mars 2026 14:32 |
| Referanse | 56-0310/25 |
Annonsene kan være mangelfulle i forhold til lovpålagt opplysningsplikt. Før bindende avtale inngås oppfordres interessenter til å innhente komplett informasjon fra meglerforetaket, selger eller utleier.


































































































