Bildegalleri

Lekker halvpart tomannsbolig med gangavstand til bysentrum. Hyggelig hage og uteplass
Lillestrøm/Vigernes
Påkostet halvpart tomannsbolig over 2 plan | Koselig hage | El-bil lader | Gangavstand til sentrum
Prisantydning6 600 000 kr
Nøkkelinfo
- Boligtype
- Tomannsbolig
- Eieform
- Eier (Selveier)
- Soverom
- 2
- Internt bruksareal
- 158 m² (BRA-i)
- Bruksareal
- 167 m²
- Eksternt bruksareal
- 9 m² (BRA-e)
- Balkong/Terrasse
- 8 m² (TBA)
- Etasje
- 1
- Byggeår
- 1956
- Energimerking
- E - Oransje
- Rom
- 5
- Tomteareal
- 592 m² (eiet)
Fasiliteter
Balkong/Terrasse
Barnevennlig
Bredbåndstilknytning
Hage
Kjæledyr tillatt
Kabel-TV
Offentlig vann/kloakk
Peis/Ildsted
Sentralt
Lademulighet
Visning
søndag, 01. mars
14:15 – 15:15
For å delta på visning, ber vi om at du melder deg på. Da sikrer vi at du får nødvendig informasjon og at det er satt av tilstrekkelig med tid. Kontakt megler dersom annet tidspunkt ønskes. Husk å lese salgsoppgaven før visningen, så du stiller forberedt. NB. Visning utgår dersom det ikke er noen påmeldte.
Ønsker du kun å bli holdt orientert, kan du fra eiendommens hjemmeside få varsel om solgtpris, eller kontakte megler.
VisningspåmeldingOm boligen
Velkommen til trivelige Vigernes! - Innbydende tomannsbolig, beliggende i godt etablert boligområde. Boligen ligger i gangavstand fra Lillestrøm sentrum med nærhet til buss, skoler og barnehage.
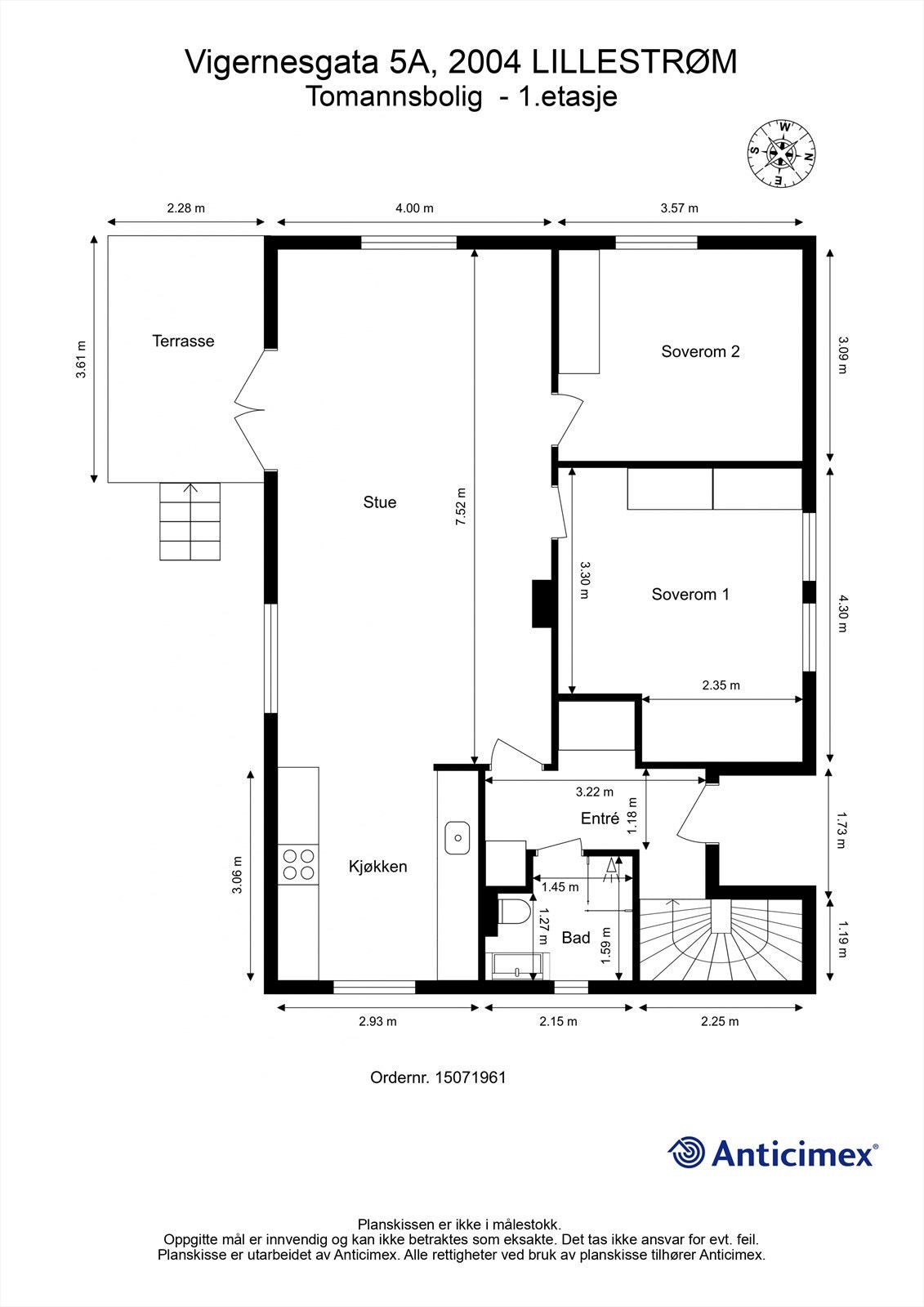
Boligen har en romslig planløsning med store soverom, og godt med plass for oppbevaring og lagring.
God og praktisk romløsning over 2 plan.
Parkeringsplass med EL-bil lader
Innredet kjeller med soverom, bad, stue, hobbyrom, vaskerom og 3 boder. Rom i kjeller er ikke godkjent til rom for varig opphold
Nye overflater og gulv 1.etg.
Varmepumpe
Overbygget terrasse og hyggelig del av hage
Barnevennlig og attraktivt boligområde
Turområder med gang- og sykkelveier rett i nærheten
Nær butikk, buss, barnehage og skoler
Velkommen til visning!
Boligen har en romslig planløsning med store soverom, og godt med plass for oppbevaring og lagring.
God og praktisk romløsning over 2 plan.
Parkeringsplass med EL-bil lader
Innredet kjeller med soverom, bad, stue, hobbyrom, vaskerom og 3 boder. Rom i kjeller er ikke godkjent til rom for varig opphold
Nye overflater og gulv 1.etg.
Varmepumpe
Overbygget terrasse og hyggelig del av hage
Barnevennlig og attraktivt boligområde
Turområder med gang- og sykkelveier rett i nærheten
Nær butikk, buss, barnehage og skoler
Velkommen til visning!
NB: Knappen for å vise hele beskrivelsen har kun en visuell effekt.
NB: Knappen for å vise hele beskrivelsen har kun en visuell effekt.
Salgsoppgaven beskriver vesentlig og lovpålagt informasjon om eiendommen
Se komplett salgsoppgaveNyttige lenker
Nærområdet
Krogsveen Lillestrøm
Verdien av en god megler.
Annonseinformasjon
| FINN-kode | 424940614 |
|---|---|
| Sist endret | 20. feb. 2026 21:04 |
| Referanse | KR60.25186 |
Annonsene kan være mangelfulle i forhold til lovpålagt opplysningsplikt. Før bindende avtale inngås oppfordres interessenter til å innhente komplett informasjon fra meglerforetaket, selger eller utleier.




















































