Bildegalleri

Tangen Allé 18 - Eiendommen har en stor og solrik veranda med rikelig plass både til loungegrupper, spisebord og blomstrende krukker
Hisøy
Stor og tiltalende enebolig med båtplass - Solrik og lettstelt tomt - Dobbel garasje - 7 soverom - Flott utsikt mot elva
Prisantydning8 990 000 kr
Nøkkelinfo
- Boligtype
- Enebolig
- Eieform
- Selveier
- Soverom
- 7
- Internt bruksareal
- 285 m² (BRA-i)
- Bruksareal
- 346 m²
- Eksternt bruksareal
- 61 m² (BRA-e)
- Balkong/Terrasse
- 108 m² (TBA)
- Byggeår
- 2017
- Energimerking
- Tomteareal
- 504 m² (eiet)
Fasiliteter
Balkong/Terrasse
Barnevennlig
Båtplass
Garasje/P-plass
Hage
Offentlig vann/kloakk
Parkett
Peis/Ildsted
Sentralt
Utsikt
Turterreng
Lademulighet
Balansert ventilasjon
Visning
mandag, 20. april
16:00 – 17:00
For å delta på visning, ber vi om at du melder deg på. Da sikrer vi at du får nødvendig informasjon og at det er satt av tilstrekkelig med tid. Kontakt megler dersom annet tidspunkt ønskes. Husk å lese salgsoppgaven før visningen, så du stiller forberedt. NB. Visning utgår dersom det ikke er noen påmeldte.
Ønsker du kun å bli holdt orientert, kan du fra eiendommens hjemmeside få varsel om solgtpris, eller kontakte megler.
VisningspåmeldingOm boligen
En svært innholdsrik og lekker enebolig med attraktiv beliggenhet, omgitt av solrike omgivelser og vakker utsikt mot elva. Her bor du sentralt og barnevennlig, med kort vei til skole, barnehage, butikker og buss, samtidig som du har kort avstand til badestrender og egen båtplass i elva.
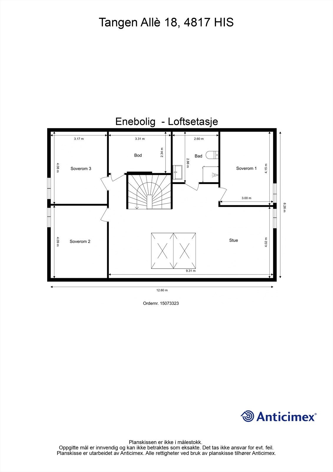
Boligen har høy standard med gjennomtenkte løsninger og rommer blant annet 7 soverom, 3 stuer, 3 bad (4 toalett), eget vaskerom og dobbel garasje - alt innredet med moderne og smakfulle detaljer.
Fra hovedplan er det utgang til stor veranda som har gode solforhold, flott utsikt og rikelig med plass for sosiale sammenkomster. Energieffektiv oppvarming med vannbåren gulvvarme i flere av rommene.
Her får man Nidelva med fine badeplasser rett utenfor, båtplass et steinkast unna og en bolig av høy standard.
Boligen har høy standard med gjennomtenkte løsninger og rommer blant annet 7 soverom, 3 stuer, 3 bad (4 toalett), eget vaskerom og dobbel garasje - alt innredet med moderne og smakfulle detaljer.
Fra hovedplan er det utgang til stor veranda som har gode solforhold, flott utsikt og rikelig med plass for sosiale sammenkomster. Energieffektiv oppvarming med vannbåren gulvvarme i flere av rommene.
Her får man Nidelva med fine badeplasser rett utenfor, båtplass et steinkast unna og en bolig av høy standard.
NB: Knappen for å vise hele beskrivelsen har kun en visuell effekt.
NB: Knappen for å vise hele beskrivelsen har kun en visuell effekt.
Salgsoppgaven beskriver vesentlig og lovpålagt informasjon om eiendommen
Se komplett salgsoppgaveNyttige lenker
Nærområdet
Krogsveen Arendal
Verdien av en god megler.
Annonseinformasjon
| FINN-kode | 424596096 |
|---|---|
| Sist endret | 02. apr. 2026 07:34 |
| Referanse | KR47.2521 |
Annonsene kan være mangelfulle i forhold til lovpålagt opplysningsplikt. Før bindende avtale inngås oppfordres interessenter til å innhente komplett informasjon fra meglerforetaket, selger eller utleier.





























































