Bildegalleri

Velkommen til Maisen Pedersens vei 30 - Boligen er svært innholdsrik med 4 soverom, 3 stuer, 3 bad i tillegg til vaskerom - det er til og med mulighet for ny eier å etablere hybel og leie ut deler av underetasjen Fotofirma: Zovenfra
HØVIK
Solrik familiebolig i blindvei med garasje |Terrasse og flat hage |3 sov & 2 bad på samme plan | Utleiemulighet i u.etg
Prisantydning11 950 000 kr
Nøkkelinfo
- Boligtype
- Tomannsbolig
- Eieform
- Selveier
- Soverom
- 4
- Internt bruksareal
- 190 m² (BRA-i)
- Bruksareal
- 213 m²
- Eksternt bruksareal
- 23 m² (BRA-e)
- Balkong/Terrasse
- 87 m² (TBA)
- Etasje
- 3
- Byggeår
- 2002
- Energimerking
- Rom
- 7
- Tomteareal
- 450 m² (eiet)
Fasiliteter
Balkong/Terrasse
Barnevennlig
Bredbåndstilknytning
Garasje/P-plass
Hage
Kjæledyr tillatt
Kabel-TV
Offentlig vann/kloakk
Parkett
Peis/Ildsted
Utsikt
Turterreng
Visning
Ta kontakt med megler eller via "visningspåmelding i annonsen" for avtale om visning - Megler Fredrik Nordstrøm, mob: 99521413
VisningspåmeldingOm boligen
Innbydende og flott halvpart av tomannsbolig i et ettertraktet og barnevennlig område med nærhet til skole, barnehage, buss og tog.
Boligen ligger trygt til i blindvei, og på feltet finnes felles lekeplass for de minste.
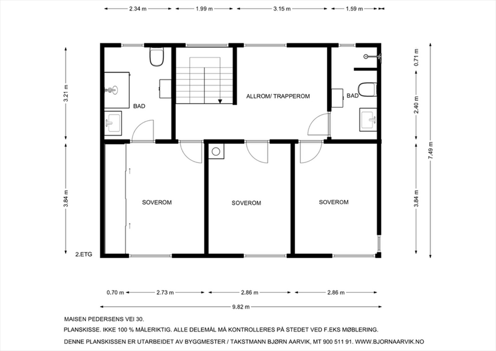
Huset går over tre etasjer og byr på en gjennomtenkt planløsning med 4 soverom, 3 stuer, 3 bad og eget vaskerom, ideelt for en aktiv familie.
Store vindusflater gir rikelig med lys, og fra stue og kjøkken er det utgang til solrike uteplasser som stor, usjenert terrasse og balkong. I tillegg har huset en flat hage på forsiden.
Underetasjen gir fleksibilitet med mulighet for å etablere hybel/utleie
Med garasje, parkering på gårdsplass og gode lagringsløsninger i boder og på loft får dere en komplett bolig som kombinerer komfort, funksjonalitet og trygg beliggenhet.
Boligen ligger trygt til i blindvei, og på feltet finnes felles lekeplass for de minste.
Huset går over tre etasjer og byr på en gjennomtenkt planløsning med 4 soverom, 3 stuer, 3 bad og eget vaskerom, ideelt for en aktiv familie.
Store vindusflater gir rikelig med lys, og fra stue og kjøkken er det utgang til solrike uteplasser som stor, usjenert terrasse og balkong. I tillegg har huset en flat hage på forsiden.
Underetasjen gir fleksibilitet med mulighet for å etablere hybel/utleie
Med garasje, parkering på gårdsplass og gode lagringsløsninger i boder og på loft får dere en komplett bolig som kombinerer komfort, funksjonalitet og trygg beliggenhet.
NB: Knappen for å vise hele beskrivelsen har kun en visuell effekt.
NB: Knappen for å vise hele beskrivelsen har kun en visuell effekt.
Salgsoppgaven beskriver vesentlig og lovpålagt informasjon om eiendommen
Se komplett salgsoppgaveNyttige lenker
Nærområdet
Krogsveen Bærum
Verdien av en god megler.
Annonseinformasjon
| FINN-kode | 424219933 |
|---|---|
| Sist endret | 02. apr. 2026 11:10 |
| Referanse | KR10.25186 |
Annonsene kan være mangelfulle i forhold til lovpålagt opplysningsplikt. Før bindende avtale inngås oppfordres interessenter til å innhente komplett informasjon fra meglerforetaket, selger eller utleier.




































