Bildegalleri

EiendomsMegler1 v/Magnus Sollid har gleden av å presentere Haugamyrvegen 23A!
Klæbu
Velholdt familiebolig med utleiemulighet | Flott opparbeidet terrasse med flotte utsikts- og solforhold | Utestue
Prisantydning4 850 000 kr
Nøkkelinfo
- Boligtype
- Tomannsbolig
- Eieform
- Eier (Selveier)
- Soverom
- 3
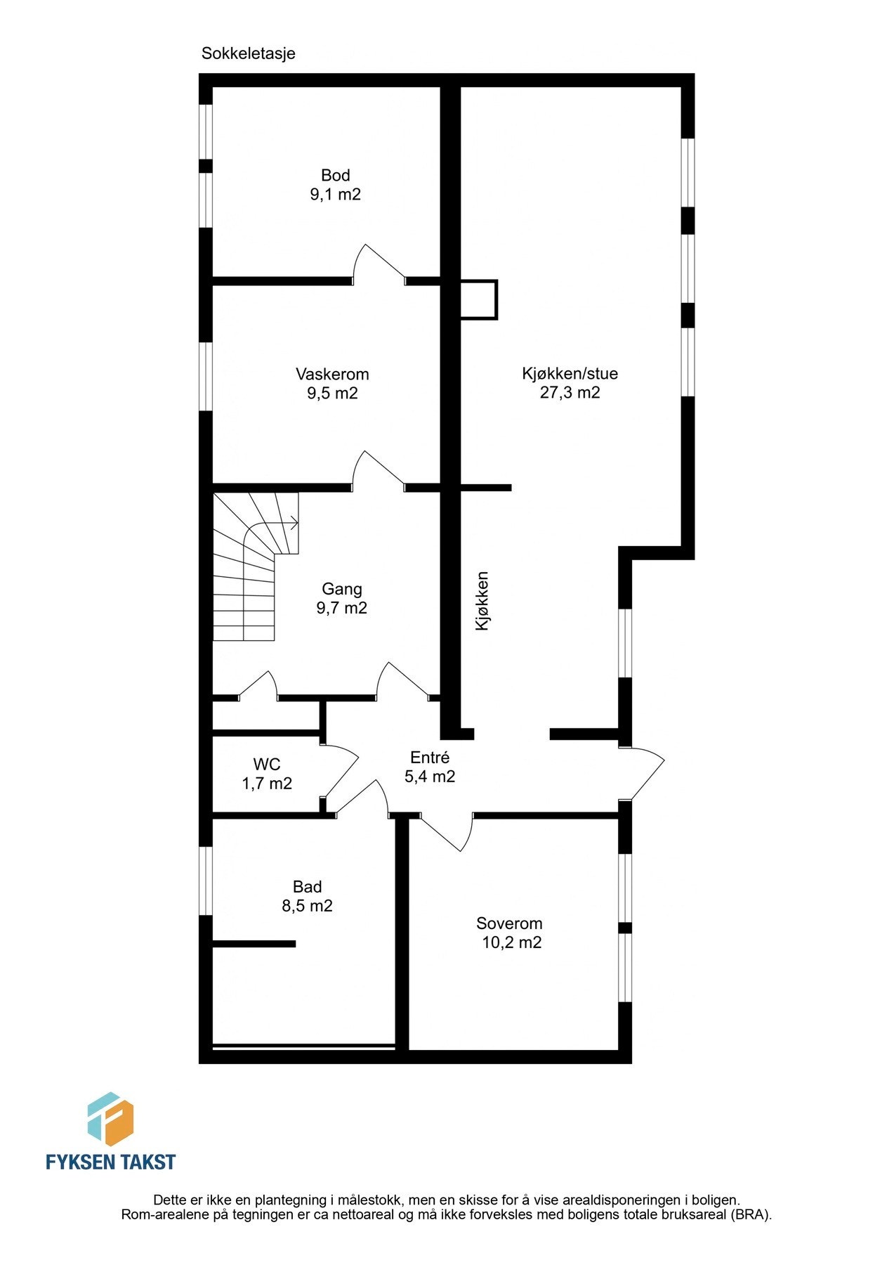
- Internt bruksareal
- 183 m² (BRA-i)
- Bruksareal
- 222 m²
- Eksternt bruksareal
- 39 m² (BRA-e)
- Balkong/Terrasse
- 52 m² (TBA)
- Byggeår
- 1973
- Energimerking
- F - Gul
- Rom
- 5
- Tomteareal
- 819 m² (eiet)
Fasiliteter
Barnevennlig
Balkong/Terrasse
Garasje/P-plass
Offentlig vann/kloakk
Peis/Ildsted
Turterreng
Utsikt
Sentralt
Visning
søndag, 08. februar
14:00 – 15:00
Våre visninger har påmelding. Dette gjør vi for å kunne yte bedre service for våre kunder. Verdifullt for boligkjøper og for oss. Vi anbefaler at salgsoppgaven lastes ned digitalt før visning, og ring oss gjerne på forhånd for spørsmål om boligen. Passer ikke angitt tidspunkt, ta kontakt så finner vi en løsning. Skulle det mot formodning ikke være påmeldte til angitt visningstidspunkt vil ikke visning bli gjennomført.
Om boligen
Velkommen til Haugamyrvegen 23A presentert av Magnus Sollid
Flott familiebolig med utleiemulighet med kort gange til marka, skole, barnehage og idrettsanlegg. Gode solforhold fra boligens romslige terrasse.
Kvaliteter verdt å nevne:
- Flott utsikt utover Klæbu
- Brukervennlig bolig med det meste man trenger på 1 plan
- Romslig gårdsplass etablert ved plen.
- Flott opparbeidet hage med utebod
- Mulighet for å leie ut sokkel og få gode leieinntekter
- Mulighet for ekstra soverom i 1.etasje. (Var opprinnelig ett soverom i stue)
- Stor åpen stue-/kjøkkendel med god plass til større selskap
Velkommen til visning, husk visningspåmelding!
Flott familiebolig med utleiemulighet med kort gange til marka, skole, barnehage og idrettsanlegg. Gode solforhold fra boligens romslige terrasse.
Kvaliteter verdt å nevne:
- Flott utsikt utover Klæbu
- Brukervennlig bolig med det meste man trenger på 1 plan
- Romslig gårdsplass etablert ved plen.
- Flott opparbeidet hage med utebod
- Mulighet for å leie ut sokkel og få gode leieinntekter
- Mulighet for ekstra soverom i 1.etasje. (Var opprinnelig ett soverom i stue)
- Stor åpen stue-/kjøkkendel med god plass til større selskap
Velkommen til visning, husk visningspåmelding!
NB: Knappen for å vise hele beskrivelsen har kun en visuell effekt.
NB: Knappen for å vise hele beskrivelsen har kun en visuell effekt.
Salgsoppgaven beskriver vesentlig og lovpålagt informasjon om eiendommen
Se komplett salgsoppgaveNærområdet
EiendomsMegler 1 Heimdal
Vi loser deg trygt gjennom hele boligsalget
Annonseinformasjon
| FINN-kode | 423216678 |
|---|---|
| Sist endret | 28. jan. 2026 09:00 |
| Referanse | 31250624 |
Annonsene kan være mangelfulle i forhold til lovpålagt opplysningsplikt. Før bindende avtale inngås oppfordres interessenter til å innhente komplett informasjon fra meglerforetaket, selger eller utleier.




































