Bildegalleri

Eiendomsmegler Norge ved Henrik Lossius ønsker deg velkommen til Tangen 25!
Tangen Torv
Lekker og innflytningsklar selveierleilighet beliggende i byggets 6. etasje. Balkong. Garasjeplass. Lave omkostninger.
Prisantydning7 750 000 kr
Pris på lån: fra 31 367 kr/mnd
Eff.rente 5,00 %. 5 425 000 o/25 år. Kostnad: 3 985 100 kr. Totalt 9 410 100 kr.
LånekalkulatorNøkkelinfo
- Boligtype
- Leilighet
- Eieform
- Eier (Selveier)
- Soverom
- 1
- Internt bruksareal
- 83 m² (BRA-i)
- Bruksareal
- 83 m²
- Balkong/Terrasse
- 17 m² (TBA)
- Etasje
- 6
- Byggeår
- 2025
- Energimerking
- C - Mørkegrønn
- Rom
- 2
- Tomteareal
- 7 583 m² (eiet)
Fasiliteter
Balkong/Terrasse
Garasje/P-plass
Heis
Parkett
Rolig
Sentralt
Utsikt
Om boligen
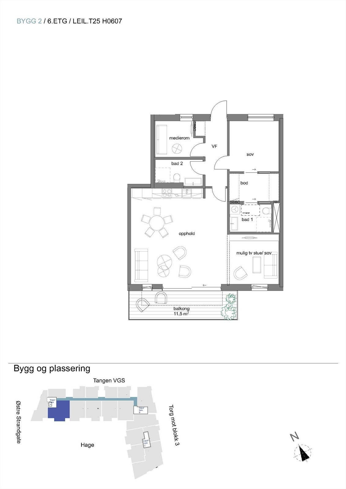
Dette er en meget delikat, ny og innflytningsklar selveierleilighet beliggende i byggets 6. etasje. Du kommer opp til etasje via heis. Inn til en gang/entré(dør-calling). Lekker stue med god plass til sofagruppe og spisebord. Deler av stue kan med enkle grep gjøres om til et ekstra soverom om ønskelig. Praktisk åpen stue/kjøkkenløsning. Kjøkken fra Strai med integrerte hvitevarer. Utgang til solrik balkong fra stue med deilig og unik sjøutsikt. I leiligheten er det et soverom med plass til dobbeltseng og skap. Walk-in closet på soverom, samt direkte inngang til bad. 2 innbydende flislagt bad med varmekabler i gulv. Inneholder vegghengt wc, servant, dusjhjørne. Inngang til vaskerom via det ene badet. Det er også et medierom.
Tilhørende stor garasjeplass kjeller.
Meget lave omkost.
Tilhørende stor garasjeplass kjeller.
Meget lave omkost.
NB: Knappen for å vise hele beskrivelsen har kun en visuell effekt.
NB: Knappen for å vise hele beskrivelsen har kun en visuell effekt.
Salgsoppgaven beskriver vesentlig og lovpålagt informasjon om eiendommen
Se komplett salgsoppgaveNyttige lenker
Nærområdet
Eiendomsmegler Norge Kristiansand
Det viktigste stedet i Norge er der du bor
Annonseinformasjon
| FINN-kode | 422898751 |
|---|---|
| Sist endret | 07. nov. 2025 13:46 |
| Referanse | 50250199 |
Annonsene kan være mangelfulle i forhold til lovpålagt opplysningsplikt. Før bindende avtale inngås oppfordres interessenter til å innhente komplett informasjon fra meglerforetaket, selger eller utleier.




































