Bildegalleri

Sommeren kan bli bra i Stemmelia
Solgt
ØVSTTUN
Stor og romslig enebolig med stor tomt, usjenert veranda, garasje og fantastisk utsikt med svært gode solforhold
Prisantydning9 500 000 kr
Nøkkelinfo
- Boligtype
- Enebolig
- Eieform
- Eier (Selveier)
- Soverom
- 4
- Internt bruksareal
- 229 m² (BRA-i)
- Bruksareal
- 269 m²
- Eksternt bruksareal
- 40 m² (BRA-e)
- Balkong/Terrasse
- 63 m² (TBA)
- Etasje
- 2
- Byggeår
- 1968
- Energimerking
- F - Oransje
- Rom
- 5
- Tomteareal
- 899 m² (eiet)
Fasiliteter
Balkong/Terrasse
Barnevennlig
Garasje/P-plass
Hage
Kjæledyr tillatt
Offentlig vann/kloakk
Parkett
Peis/Ildsted
Rolig
Sentralt
Utsikt
Turterreng
Lademulighet
Om boligen
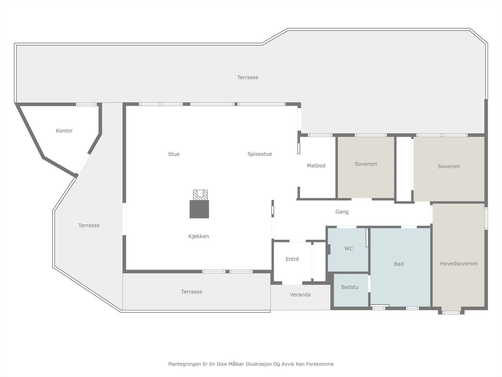
Velkommen til en romslig enebolig i et meget barne- og familievennlig nabolag med flott utsikt og gangavstand til barnehager, barneskole og bussholdeplass. Også kort avstand til Nesttun senter og Lagunen. Området har fine turområder og flere dagligvarebutikker. Boligen ligger fint til i terrenget og har godt med biloppstillingsplass i tillegg til garasje. Inngang til underetasje i front og til hoveddel fra bakside via gangvei rundt bolig. Hovedplan inneholder entrè, gang, 3 stk. soverom, bad med badstue, wc/vaskerom og stue med åpen kjøkkenløsning. Utgang til stor terrasse. Underetasje er innredet med 2 boenheter, men dette er ikke byggemeldt og omsøkt areal. Opprinnelig trapp mellom etg. er fjernet.
- Praktfull utsikt
- Solrikt
- Barnevennlig
- Nærhet til skoler
- EL-bil lader
- Praktfull utsikt
- Solrikt
- Barnevennlig
- Nærhet til skoler
- EL-bil lader
NB: Knappen for å vise hele beskrivelsen har kun en visuell effekt.
NB: Knappen for å vise hele beskrivelsen har kun en visuell effekt.
Salgsoppgaven beskriver vesentlig og lovpålagt informasjon om eiendommen
Se komplett salgsoppgaveNyttige lenker
Nærområdet
Krogsveen Bergen Sentrum
Verdien av en god megler.
Annonseinformasjon
| FINN-kode | 422700824 |
|---|---|
| Sist endret | 01. feb. 2026 10:39 |
| Referanse | KR79.258 |
Annonsene kan være mangelfulle i forhold til lovpålagt opplysningsplikt. Før bindende avtale inngås oppfordres interessenter til å innhente komplett informasjon fra meglerforetaket, selger eller utleier.

























































