Bildegalleri

Tomten er godt utnyttet med både hage, grusplass og tun.
Tangenheia
Flott enebolig med "alt" -Stor takterrasse, smarte løsninger, nydelig utsikt, plen, tun, garasje og sentral beliggenhet!
Prisantydning6 800 000 kr
Nøkkelinfo
- Boligtype
- Enebolig
- Eieform
- Selveier
- Soverom
- 4
- Internt bruksareal
- 156 m² (BRA-i)
- Bruksareal
- 193 m²
- Eksternt bruksareal
- 37 m² (BRA-e)
- Balkong/Terrasse
- 155 m² (TBA)
- Etasje
- 2
- Byggeår
- 2019
- Energimerking
- Rom
- 7
- Tomteareal
- 599 m² (eiet)
Fasiliteter
Takterrasse
Balkong/Terrasse
Barnevennlig
Bredbåndstilknytning
Garasje/P-plass
Golfbane
Hage
Kjæledyr tillatt
Offentlig vann/kloakk
Peis/Ildsted
Rolig
Sentralt
Utsikt
Bademulighet
Turterreng
Lademulighet
Balansert ventilasjon
Visning
For å delta på visning, ber vi om at du melder deg på. Da sikrer vi at du får nødvendig informasjon og at det er satt av tilstrekkelig med tid. Kontakt megler dersom annet tidspunkt ønskes. Husk å lese salgsoppgaven før visningen, så du stiller forberedt. NB. Visning utgår dersom det ikke er noen påmeldte.
Ønsker du kun å bli holdt orientert, kan du fra eiendommens hjemmeside få varsel om solgtpris, eller kontakte megler.
VisningspåmeldingOm boligen
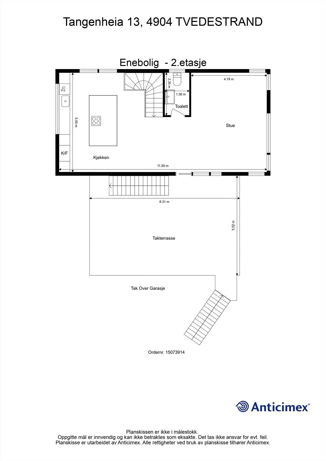
Eneboligen ble ferdigstilt i 2019 og har en smakfull utforming med opparbeidede utearealer. Utvendig er det flotte murer, inngjerdet plen, asfaltert tun med plass til mange gjester og ikke minst - To takterrasser med helt rå utsikt. På den øverste takterrassen er det glassrekkverk og utekjøkken med vann-og strømtilknytning. På eiendommen skinner sola fra tidlig morgen til sent på kveld, ca. kl. 22:30 midtsommers. Det er også en god del vintersol på Tangenheia. I 2. etasje er det ca. 270 cm fra gulv til tak, det er gasspeis, flott kjøkken fra Epoq med hvitevarer fra Bosch, balansert ventilasjon og montert plissé gardiner/solskjerming i flere rom.
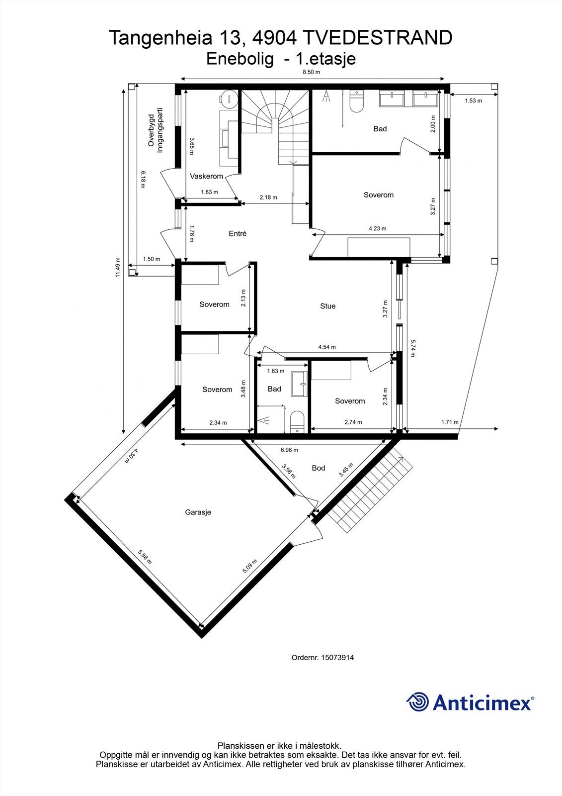
1. etasje: Entré, vaskerom, to bad, stue og fire soverom.
2. etasje: Kjøkken, stue og toalettrom.
1. etasje: Entré, vaskerom, to bad, stue og fire soverom.
2. etasje: Kjøkken, stue og toalettrom.
NB: Knappen for å vise hele beskrivelsen har kun en visuell effekt.
NB: Knappen for å vise hele beskrivelsen har kun en visuell effekt.
Salgsoppgaven beskriver vesentlig og lovpålagt informasjon om eiendommen
Se komplett salgsoppgaveNyttige lenker
Nærområdet
Krogsveen Arendal
Verdien av en god megler.
Annonseinformasjon
| FINN-kode | 422168459 |
|---|---|
| Sist endret | 26. mars 2026 07:18 |
| Referanse | KR47.25116 |
Annonsene kan være mangelfulle i forhold til lovpålagt opplysningsplikt. Før bindende avtale inngås oppfordres interessenter til å innhente komplett informasjon fra meglerforetaket, selger eller utleier.














































