Bildegalleri

Velkommen til Kurlandsveien 43B!
Kurland
Oppgradert 3-roms i første etasje - Solrike uteplasser og sentral beliggenhet
Prisantydning2 100 000 kr
Nøkkelinfo
- Boligtype
- Leilighet
- Eieform
- Andel
- Soverom
- 2
- Internt bruksareal
- 50 m² (BRA-i)
- Bruksareal
- 61 m²
- Eksternt bruksareal
- 11 m² (BRA-e)
- Balkong/Terrasse
- 16 m² (TBA)
- Etasje
- 1
- Byggeår
- 1959
- Energimerking
- G - Oransje
- Rom
- 3
- Tomteareal
- 14 266 m² (eiet)
Visning
tirsdag, 13. januar
17:00 – 18:00
Velkommen til visning!
Alle våre visninger har påmelding. På denne måten sikrer vi at megler har god oversikt og tid til å imøtekomme alle interessenter på beste måte. Dette er veldig verdifullt for boligkjøpere og for oss. Det er enkelt å melde seg på, og du kan like enkelt melde deg av. Kontakt også gjerne megler i forkant av visning dersom du har spørsmål.
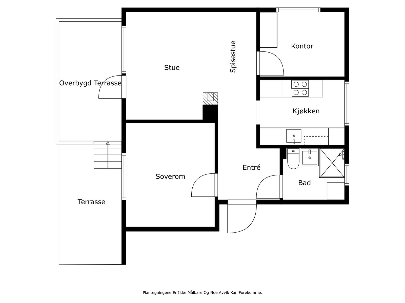
Om boligen
Lys og oppgradert 3-roms leilighet i første etasje med solrik og skjermet beliggenhet på attraktive Kurland. Boligen fikk alle innvendige overflater fornyet i 2022 (unntatt bad), og fremstår som moderne og innflyttingsklar. Den gjennomtenkte planløsningen gir en romslig stue med store vindusflater og god plass til både sofakrok og spiseplass, et lyst og trivelig kjøkken med plass til spisebord, to soverom av god størrelse og et funksjonelt bad. Fra inngangspartiet møtes du av en lys og luftig atmosfære som gjør at leiligheten føles ekstra romslig. Her bor du rolig, men med kort vei til barnehager, skole, butikk, sentrum, E6 og flotte turområder som Sarpsborgmarka og Tunevannet. Et perfekt hjem for deg som vil flytte rett inn og bo både sentralt og nær naturen.
NB: Knappen for å vise hele beskrivelsen har kun en visuell effekt.
NB: Knappen for å vise hele beskrivelsen har kun en visuell effekt.
Salgsoppgaven beskriver vesentlig og lovpålagt informasjon om eiendommen
Se komplett salgsoppgaveNyttige lenker
Nærområdet

PrivatMegleren Sarpsborg
Kun det beste på dine vegne
Annonseinformasjon
| FINN-kode | 422148389 |
|---|---|
| Sist endret | 05. jan. 2026 11:16 |
| Referanse | 193250140 |
Annonsene kan være mangelfulle i forhold til lovpålagt opplysningsplikt. Før bindende avtale inngås oppfordres interessenter til å innhente komplett informasjon fra meglerforetaket, selger eller utleier.























