Bildegalleri

Her får du det beste fra to verdener - en komfortabel og velutstyrt fjellhytte kombinert med spektakulære skiopplevelser rett utenfor døren
Romslig velutstyrt fjellhytte med ski-inn/ski-ut | 4* innredede soverom | badstue | jacuzzi | midt i skibakken i Uvdal
- Omkostninger
- 113 590 kr
- Totalpris
- 4 603 590 kr
- Kommunale avg.
- 15 310 kr per år
Pris på lån: fra 18 850 kr/mnd
Eff.rente 5,86 %. 2 694 000 o/20 år. Kostnad: 1 830 000 kr. Totalt 4 524 000 kr.
LånekalkulatorNøkkelinfo
- Beliggenhet
- På fjellet
- Boligtype
- Hytte
- Eieform
- Eier (Selveier)
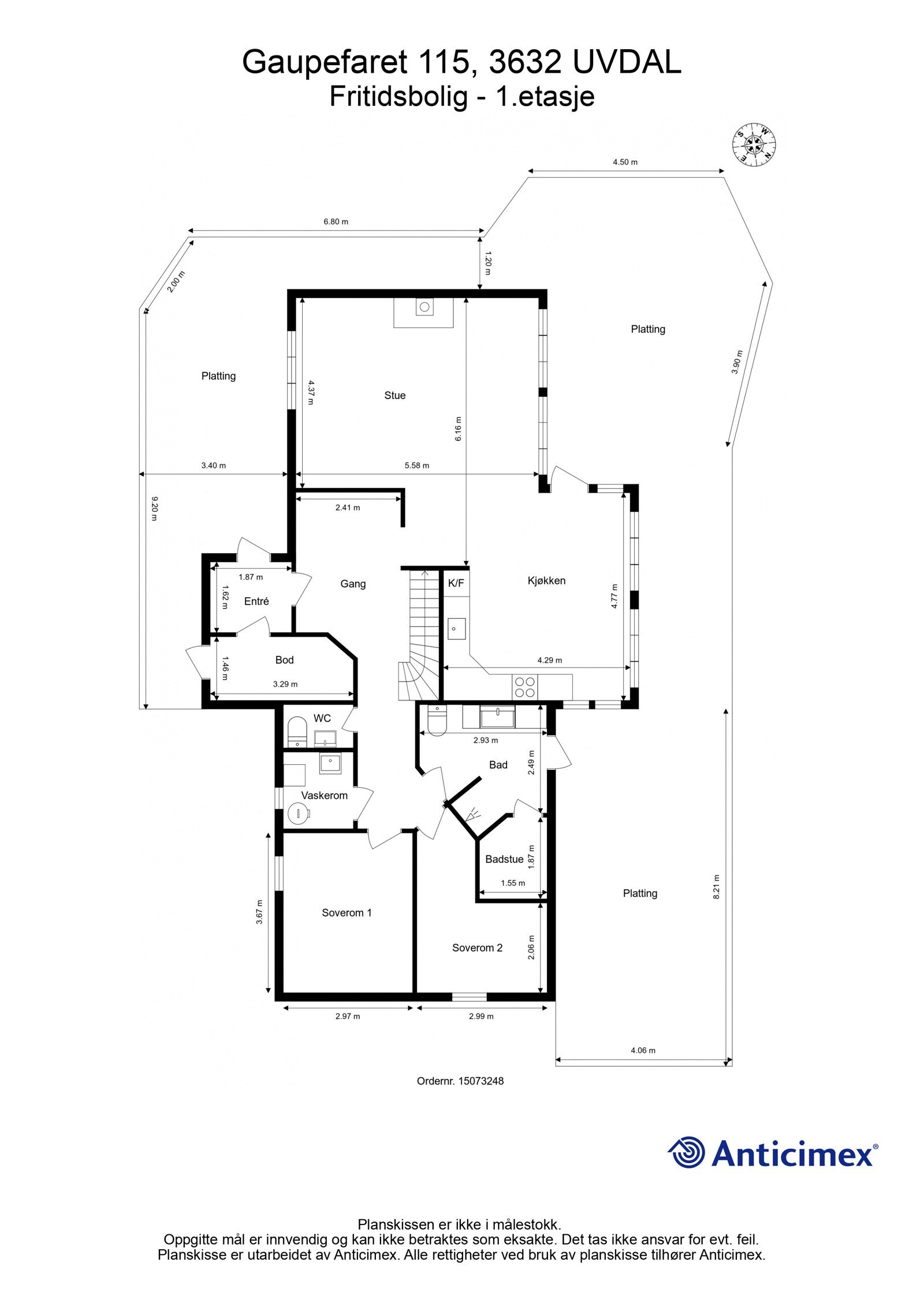
- Internt bruksareal
- 108 m² (BRA-i)
- Bruksareal
- 108 m²
- Balkong/Terrasse
- 129 m² (TBA)
- Tomt
- Festet
- Festeår
- 2071
- Festeavgift
- 3 004 kr
- Byggeår
- 2007
- Soverom
- 2
- Rom
- 4
- Energimerking
- D - Oransje
Fasiliteter
Visning
Husk å lese komplett salgsoppgave før visning. Bestill komplett, utskriftsvennlig salgsoppgave.
VisningspåmeldingOm boligen
Romslig, moderne fjellhytte med alt du trenger for komfortable og aktive dager på fjellet. Hytta har 4 sov*, 1 bad/wc med dusj og badstue samt et separat wc. Boblebad på terrassen med utsikt mot skibakken. Planløsningen fungerer utmerket for en aktiv familie. Fra hytta har du utsyn både mot bakken og mot fjellandskapet
Etter en dag i bakken kan du varme deg i badstuen eller nyte en stille stund i boblebadet under stjernehimmelen. Praktiske løsninger for oppvarming
Du er nærmeste nabo med Uvdal Skisenter, som byr på varierte bakker for både alpint, telemark og snowboard. Anlegget har 5 heiser, 25 nedfarter og et eget jibbeområde. Fjellheisen tar deg opp til ca. 1000 moh, der puddersnøen ofte ligger urørt og offpiste-mulighetene er mange.
* To av sov på hems er ikke godkjent for varig opphold.
Salgsoppgaven beskriver vesentlig og lovpålagt informasjon om eiendommen
Se komplett salgsoppgaveNyttige lenker
Nærområdet
Dialog Eiendomsmegling AS avd Drammen
Annonsene kan være mangelfulle i forhold til lovpålagt opplysningsplikt. Før bindende avtale inngås oppfordres interessenter til å innhente komplett informasjon fra meglerforetaket, selger eller utleier.






























































