Bildegalleri

Eiendomsmegler Norge presenterer Markensgate 1!
Solgt
Kvadraturen
Lys gjennomgående selveierleilighet med bl.a. spisekjøkken/allrom, stue, soverom, dusjbad/wc. Ta kontakt for visning!
Prisantydning3 600 000 kr
Nøkkelinfo
- Boligtype
- Leilighet
- Eieform
- Eier (Selveier)
- Soverom
- 1
- Internt bruksareal
- 77 m² (BRA-i)
- Bruksareal
- 81 m²
- Eksternt bruksareal
- 4 m² (BRA-e)
- Balkong/Terrasse
- 4 m² (TBA)
- Etasje
- 3
- Byggeår
- 1939
- Energimerking
- G - Mørkegrønn
- Rom
- 2
- Tomteareal
- 217 m² (eiet)
Fasiliteter
Balkong/Terrasse
Offentlig vann/kloakk
Parkett
Sentralt
Bademulighet
Fiskemulighet
Turterreng
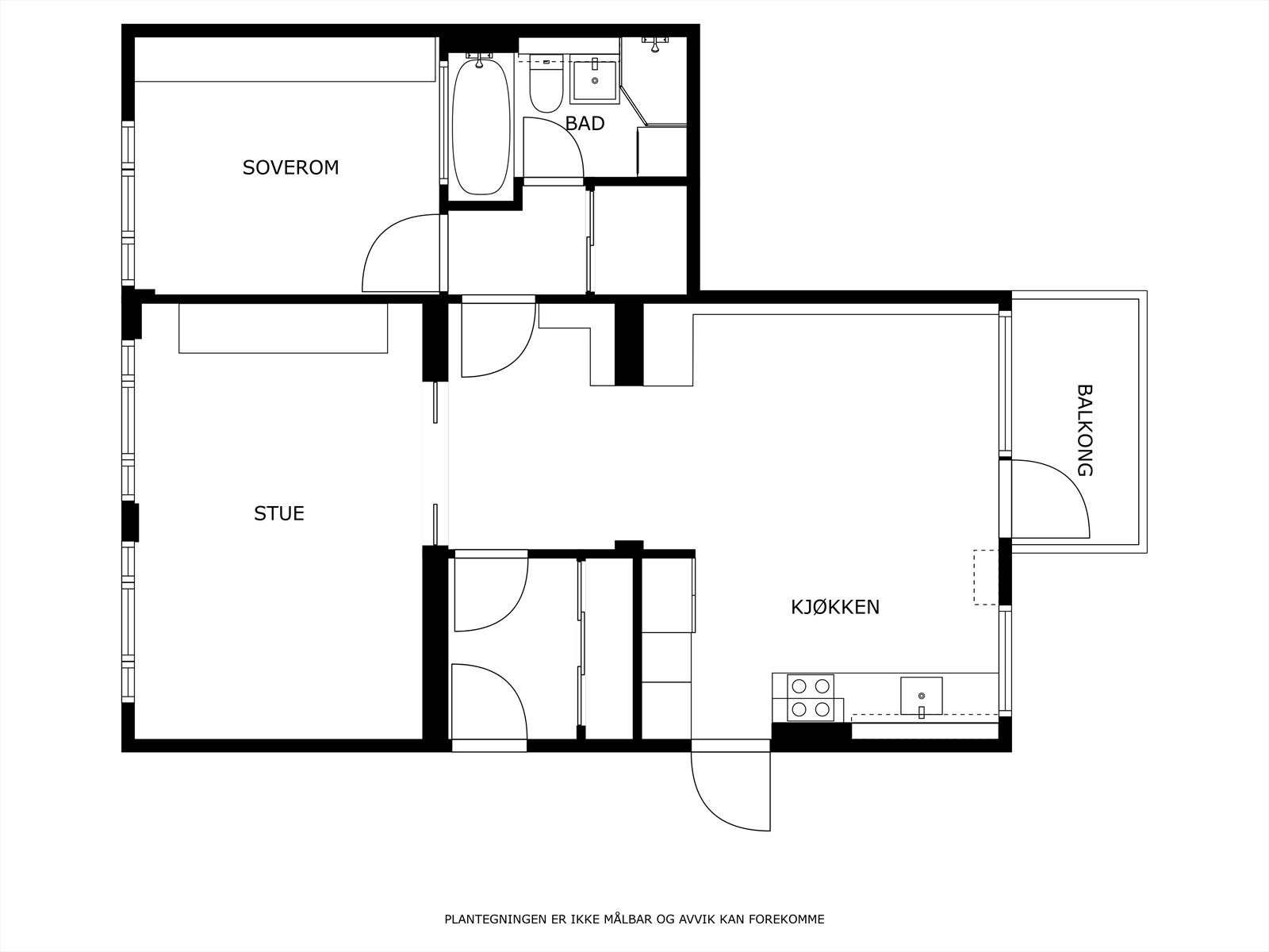
Om boligen
Eiendomsmegler Norge presenterer Markens gate 1!
Gjennomgående moderne og delikat leilighet med bl.a. vindfang, gang, trivelig stue, stort allrom/kjøkken med veranda, soverom, bad/wc.
Mulighet for å avdele stuen så man får ekstra soverom.
Skyvedør mellom gang og stue.
2 boder.
Vil du bo i hjertet av Kristiansand? Leiligheten har en særdeles god og populær beliggenhet i den attraktive nederste del av Markens gate. Herfra er det kun et par skritt til byens beste handlegate/gågate, samt bare et par kvartaler til Fiskebrygga med yrende folkeliv i sommerhalvåret. Kort avstand til Tresse, Sjøhuset og Bystranda samt til Kanalbyen, Kunstsilo og Odderøya.
Leiligheten ligger i umiddelbar nærhet til alle servicetilbud samt gangavstand til UiA.
Mulighet for rask overtagelse! Bør sees!
Gjennomgående moderne og delikat leilighet med bl.a. vindfang, gang, trivelig stue, stort allrom/kjøkken med veranda, soverom, bad/wc.
Mulighet for å avdele stuen så man får ekstra soverom.
Skyvedør mellom gang og stue.
2 boder.
Vil du bo i hjertet av Kristiansand? Leiligheten har en særdeles god og populær beliggenhet i den attraktive nederste del av Markens gate. Herfra er det kun et par skritt til byens beste handlegate/gågate, samt bare et par kvartaler til Fiskebrygga med yrende folkeliv i sommerhalvåret. Kort avstand til Tresse, Sjøhuset og Bystranda samt til Kanalbyen, Kunstsilo og Odderøya.
Leiligheten ligger i umiddelbar nærhet til alle servicetilbud samt gangavstand til UiA.
Mulighet for rask overtagelse! Bør sees!
NB: Knappen for å vise hele beskrivelsen har kun en visuell effekt.
NB: Knappen for å vise hele beskrivelsen har kun en visuell effekt.
Salgsoppgaven beskriver vesentlig og lovpålagt informasjon om eiendommen
Se komplett salgsoppgaveNyttige lenker
Nærområdet
Eiendomsmegler Norge Kristiansand
Best der du bor
Annonseinformasjon
| FINN-kode | 421671039 |
|---|---|
| Sist endret | 14. feb. 2026 10:39 |
| Referanse | 51250084 |
Annonsene kan være mangelfulle i forhold til lovpålagt opplysningsplikt. Før bindende avtale inngås oppfordres interessenter til å innhente komplett informasjon fra meglerforetaket, selger eller utleier.































