Bildegalleri

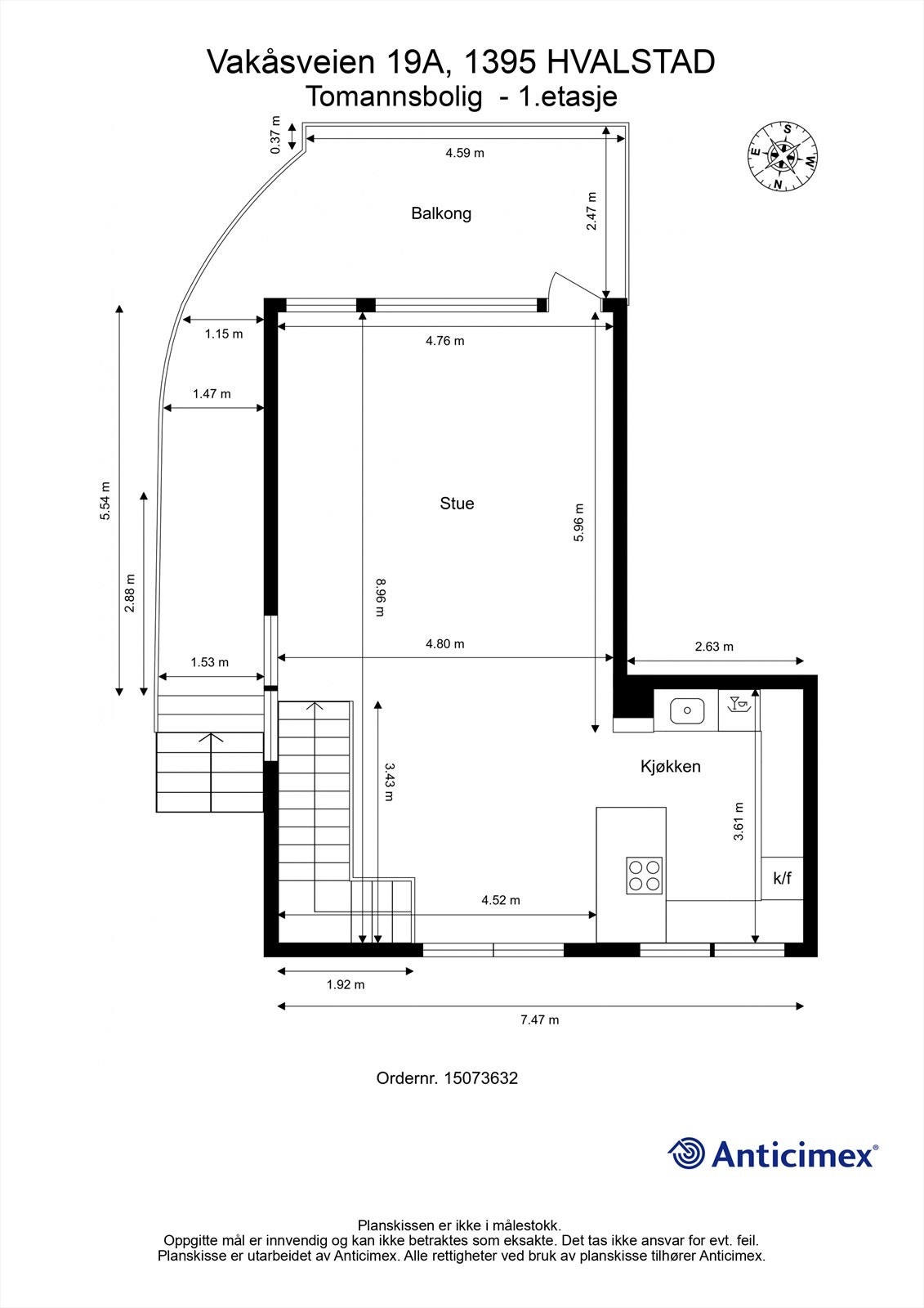
Her får du en innholdsrik halvpart vertikaldelt bolig over 2 etasjer med 3 soverom, vaskerom, stue, spisestue, entre, bad, toalettrom og kjøkken. Boligen ligger i et populært og barnevennlig område med nærhet til det aller meste.
ASKER / HVALSTAD
Innholdsrik halvpart av tomannsbolig med 3 soverom. Solrik, stor tomt. Sentralt til offentlig kommunikasjon.
Prisantydning5 100 000 kr
Nøkkelinfo
- Boligtype
- Tomannsbolig
- Eieform
- Eier (Selveier)
- Soverom
- 3
- Internt bruksareal
- 130 m² (BRA-i)
- Bruksareal
- 130 m²
- Balkong/Terrasse
- 21 m² (TBA)
- Etasje
- 2
- Byggeår
- 1974
- Energimerking
- G - Mørkegrønn
- Tomteareal
- 1 080 m² (eiet)
Fasiliteter
Balkong/Terrasse
Barnevennlig
Garasje/P-plass
Hage
Kabel-TV
Peis/Ildsted
Rolig
Sentralt
Om boligen
Velkommen til Vakåsveien 19A, presentert av Terje Tveit i Krogsveen.
Her får du en innholdsrik halvpart vertikaldelt bolig over 2 etasjer med 3 soverom, vaskerom, stue, spisestue, entre, bad, toalettrom og kjøkken. Boligen ligger i et populært og barnevennlig område. Sentralt til Holmensenteret som har mange fine butikker. Innenfor 10 minutter kjøring når man både Trekanten senter i Asker og Sandvika storsenter.
Kort fortalt:
Her får du en innholdsrik halvpart vertikaldelt bolig over 2 etasjer med 3 soverom, vaskerom, stue, spisestue, entre, bad, toalettrom og kjøkken. Boligen ligger i et populært og barnevennlig område. Sentralt til Holmensenteret som har mange fine butikker. Innenfor 10 minutter kjøring når man både Trekanten senter i Asker og Sandvika storsenter.
Kort fortalt:
- 3 soverom
- Åpen løsning mellom stue og kjøkken
- Gangavstand til tog
- Barnevennlig
- Solrik stor balkong med trapp ned til bakkenivå
- Garasjeplass
- Bad, stort vaskerom og gjestetoalett
- Gangavstand til matbutikk
- Vannbåren varme til radiatorer
Velkommen til visning!
NB: Knappen for å vise hele beskrivelsen har kun en visuell effekt.
NB: Knappen for å vise hele beskrivelsen har kun en visuell effekt.
Salgsoppgaven beskriver vesentlig og lovpålagt informasjon om eiendommen
Se komplett salgsoppgaveNyttige lenker
Nærområdet
Krogsveen Asker
Velkommen til en enklere boligreise.
Annonseinformasjon
| FINN-kode | 421629503 |
|---|---|
| Sist endret | 30. des. 2025 11:52 |
| Referanse | KR15.2539 |
Annonsene kan være mangelfulle i forhold til lovpålagt opplysningsplikt. Før bindende avtale inngås oppfordres interessenter til å innhente komplett informasjon fra meglerforetaket, selger eller utleier.















































