Bildegalleri

Velkommen til Henrik Ibsens vei 85!
Strømmen
Stilfult og naturnært rekkehus fra 2012 | 2 bad | 3 plan med idyllisk beliggenhet | 4 uteplasser | Garasjeplass m/ lader
Prisantydning6 100 000 kr
Nøkkelinfo
- Boligtype
- Leilighet
- Eieform
- Eier (Selveier)
- Soverom
- 3
- Internt bruksareal
- 117 m² (BRA-i)
- Bruksareal
- 122 m²
- Eksternt bruksareal
- 5 m² (BRA-e)
- Balkong/Terrasse
- 29 m² (TBA)
- Etasje
- 3
- Byggeår
- 2012
- Energimerking
- B - Mørkegrønn
- Rom
- 5
- Tomteareal
- 17 154 m² (eiet)
Fasiliteter
Balkong/Terrasse
Barnevennlig
Bredbåndstilknytning
Garasje/P-plass
Kjæledyr tillatt
Ingen gjenboere
Offentlig vann/kloakk
Parkett
Rolig
Turterreng
Lademulighet
Balansert ventilasjon
Visning
For å delta på visning, ber vi om at du melder deg på. Da sikrer vi at du får nødvendig informasjon og at det er satt av tilstrekkelig med tid. Kontakt megler dersom annet tidspunkt ønskes. Husk å lese salgsoppgaven før visningen, så du stiller forberedt.
Ønsker du kun å bli holdt orientert, kan du fra eiendommens hjemmeside få varsel om solgtpris, eller kontakte megler.
VisningspåmeldingOm boligen
Velkommen til Henrik Ibsens vei 85!
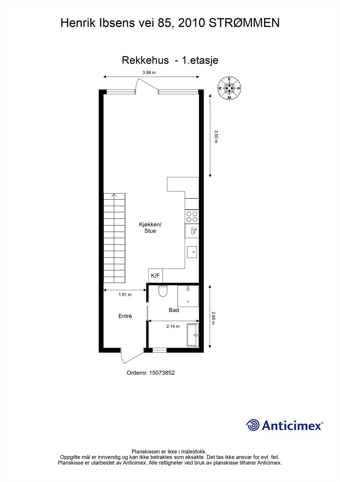
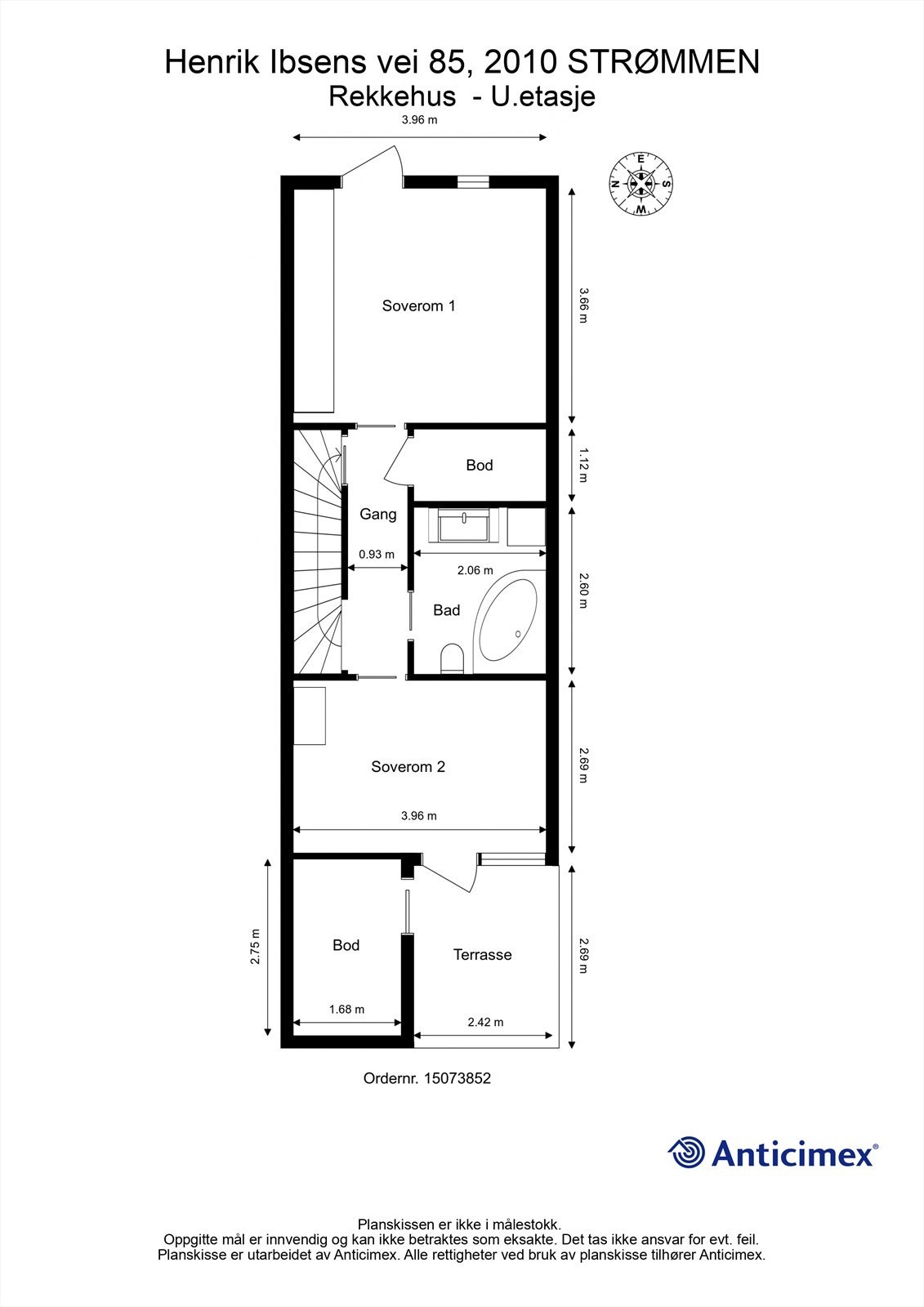
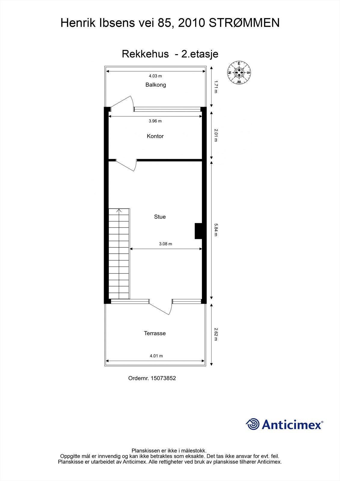
Rekkehuset går over tre plan, og ligger idyllisk plassert like ved Sagelva. Her får du naturen inn i huset, samtidig som du bor nært både Strømmen, Lillestrøm sentrum og togstasjon som på kort tid får deg inn til Oslo. Med en praktisk romfordeling, god plassutnyttelse, 2 bad, 3 soverom om flere uteplasser er de fleste behov dekket. Et flott og moderne rekkehus i et veletablert boligområde på Strømmen.
Verdt å få med seg:
- Rekkehus over 3 etasjer
- Glassvegg i 1. etasje med utsyn mot skogholt og Sagelva
- Moderne standard fra 2012
- Vannbåren gulvvarme
- 2 bad
- 2 uteplasser mot vest og 2 mot øst
- Garasjeplass med lader
- Flere boder til lagring
Rekkehuset går over tre plan, og ligger idyllisk plassert like ved Sagelva. Her får du naturen inn i huset, samtidig som du bor nært både Strømmen, Lillestrøm sentrum og togstasjon som på kort tid får deg inn til Oslo. Med en praktisk romfordeling, god plassutnyttelse, 2 bad, 3 soverom om flere uteplasser er de fleste behov dekket. Et flott og moderne rekkehus i et veletablert boligområde på Strømmen.
Verdt å få med seg:
- Rekkehus over 3 etasjer
- Glassvegg i 1. etasje med utsyn mot skogholt og Sagelva
- Moderne standard fra 2012
- Vannbåren gulvvarme
- 2 bad
- 2 uteplasser mot vest og 2 mot øst
- Garasjeplass med lader
- Flere boder til lagring
NB: Knappen for å vise hele beskrivelsen har kun en visuell effekt.
NB: Knappen for å vise hele beskrivelsen har kun en visuell effekt.
Salgsoppgaven beskriver vesentlig og lovpålagt informasjon om eiendommen
Se komplett salgsoppgaveNyttige lenker
Nærområdet
Krogsveen Oppsal
Velkommen til en enklere boligreise.
Annonseinformasjon
| FINN-kode | 420703961 |
|---|---|
| Sist endret | 28. nov. 2025 14:17 |
| Referanse | KR45.2549 |
Annonsene kan være mangelfulle i forhold til lovpålagt opplysningsplikt. Før bindende avtale inngås oppfordres interessenter til å innhente komplett informasjon fra meglerforetaket, selger eller utleier.












































