Bildegalleri

Kontoret har flere sosiale soner
Oslo sentrum / Grensen - Innflyttingsklart kontor i toppetasjen
Nøkkelinfo
- Areal
- 255 m²
- Etasje
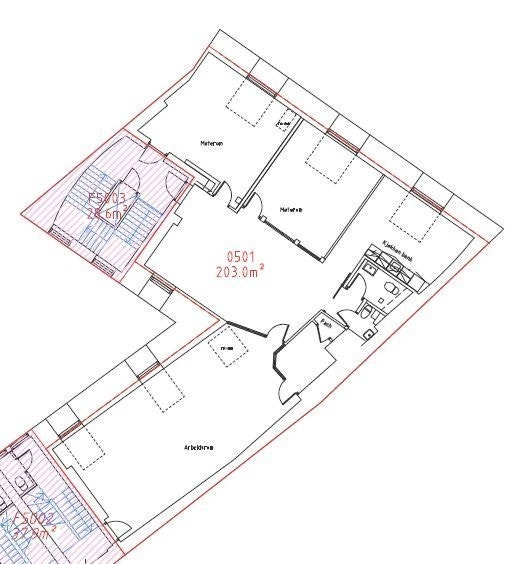
- 5.
- Overtakelse
- Etter avtale
Type lokale
Fasiliteter
Om eiendommen
Innflyttingsklart kontor midt i Oslo sentrum, kun noen få minutters gangen unna Nationaltheatret stasjon. Nåværende planløsning består av åpent kontorlandskap, møterom, kjøkken med spiseplass og sosiale soner.
Arealnr. 501 er på 203 kvm netto og 255 kvm brutto
Eiendommen har heis og ventilasjon.
Beliggenhet
Eiendommen ligger i Lille Grensen som er en kort gate mellom Karl Johans gate og Grensen. Beliggenheten gjør at det er enkelt å komme seg til eiendommen for både ansatte og besøkende, med alt av offentlig kommunikasjon i umiddelbar nærhet som t-bane, busser og trikker. Det er ca. 5 min. gange til både Nationaltheatret og Oslo Sentralstasjon med tog og flytog.
Visning
Ta kontakt for å avtale visning.
THON HOLDING AS
Stig Christiansen
Nærområdet
Annonseinformasjon
| FINN-kode | 420507297 |
|---|---|
| Sist endret | 20. okt. 2025 13:17 |
| Referanse | Eline Høyte Tofte |
Annonsene kan være mangelfulle i forhold til lovpålagt opplysningsplikt. Før bindende avtale inngås oppfordres interessenter til å innhente komplett informasjon fra meglerforetaket, selger eller utleier.










