Bildegalleri

Majorstuen - Ny 5-roms leilighet til leie
- Månedsleie
- 37 500 kr
- Depositum
- 150 000 kr
Nøkkelinfo
- Primærrom
- 138 m²
- Boligtype
- Leilighet
- Soverom
- 4
- Etasje
- 2.
- Leieperiode
- 15.08.2025 - 31.08.2028
Fasiliteter
Beskrivelse
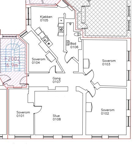
Flott og romslig nyoppusset leilighet som inneholder stue, separat kjøkken med hvitevarer, 4 soverom med garderobeskap og bad med varmekabler og opplegg til vaskemaskin.
Husleie
Kr 37800 per måned.
Leietaker tegner eget strømabonnement.
Utleiers krav til sikkerhet
Kr 150000,-. Som alternativ til depositum kan leietaker kjøpe en leieboliggaranti i stedet for å opprette ordinær depositumskonto i bank. Garantien koster kr 18000 og er et engangsbeløp. For mer informasjon se www.soderbergpartners.no eller kontakt utleier.
Husdyr ikke tillatt.
Leietid
I de første 9 måneder er det ikke adgang til å si opp leieavtalen. Etter utløpet av denne perioden kan leietaker si opp leieforholdet med 3 måneders skriftlig varsel fra månedsskiftet
Visning
Etter avtale. Interesserte bes sende mail til helene.winsnes@olavthon.no med en kort presentasjon av seg selv, alder, studier/jobb, mobil, ønsket innflyttingsdato og evt. referanser.
Aktuelle søkere vil bli kontaktet for visning.
Adkomst
Eiendommen ligger sentralt til midt på Majorstuen. Gangavstand til t-bane, trikk og buss.

Thon Eiendom
Nærområdet
Annonsene kan være mangelfulle i forhold til lovpålagt opplysningsplikt. Før bindende avtale inngås oppfordres interessenter til å innhente komplett informasjon fra meglerforetaket, selger eller utleier.















