Bildegalleri

DNB Eiendom v/ Merete Fjeldavlie har gleden av å presentere Bankgata 32C!
Lillehammer sentrum
Lys og innbydende 2-roms toppleilighet med attraktiv beliggenhet|Felles veranda|Nærhet flotte rekreasjonsområder!
Prisantydning2 850 000 kr
Nøkkelinfo
- Boligtype
- Leilighet
- Eieform
- Eier (Selveier)
- Soverom
- 1
- Internt bruksareal
- 45 m² (BRA-i)
- Bruksareal
- 49 m²
- Eksternt bruksareal
- 4 m² (BRA-e)
- Etasje
- 3
- Byggeår
- 1919
- Energimerking
- Rom
- 2
- Tomteareal
- 430 m² (eiet)
Fasiliteter
Bredbåndstilknytning
Kabel-TV
Offentlig vann/kloakk
Sentralt
Om boligen
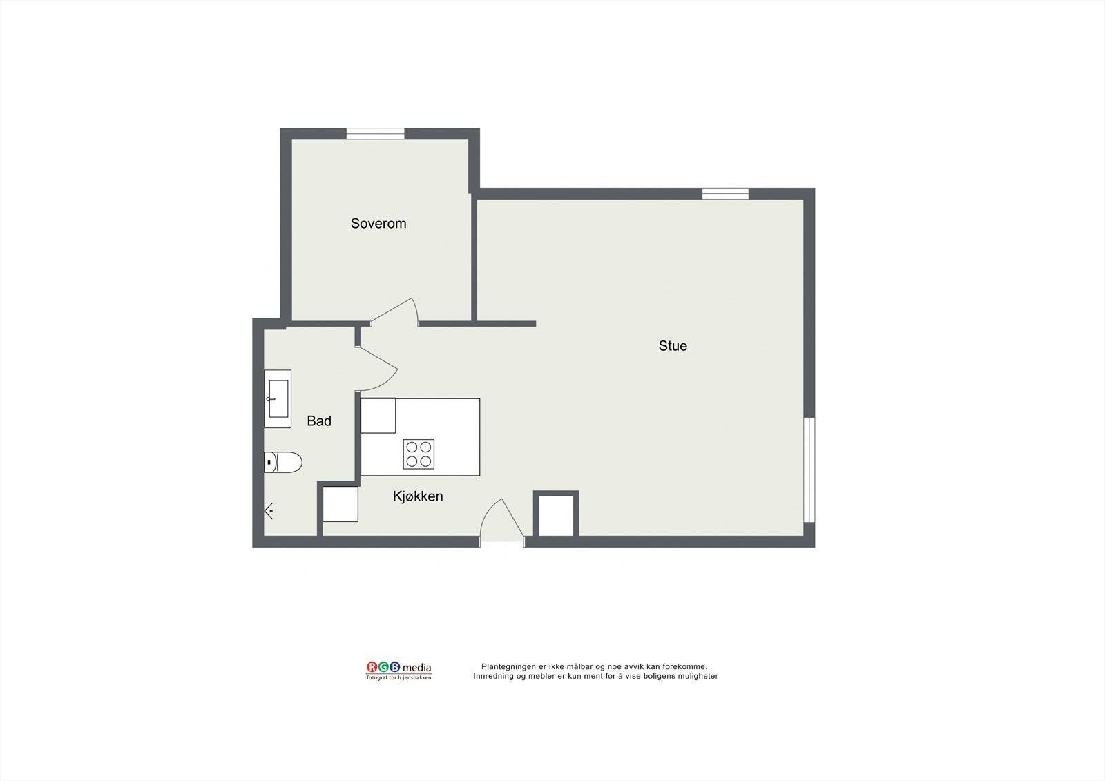
DNB Eiendom har gleden av å presentere Bankgata 32C! Dette er en lys og innbydende 2-roms leilighet med sentral og attraktiv beliggenhet like ovenfor gågata i Lillehammer sentrum. Fra leiligheten er det kort avstand til alt Lillehammer har å by på. Sykehuset og Maihaugen er like i nærheten og samtidig kan du nyte godt av gode rekreasjonsmuligheter i nærliggende områder.
Bygget er trolig fra rundt 1919 men ble omgjort til leiligheter i 2018. Leiligheten ligger i byggets toppetasje og har en arealeffektiv planløsning med mye lysinnslipp. Her finner man en innbydende stue, pent kjøkken, delikat bad med gulvvarme og et romslig soverom. Leiligheten disponerer en praktisk bod i kjeller. Det er felles veranda for beboerne.
Velkommen til visning!
Bygget er trolig fra rundt 1919 men ble omgjort til leiligheter i 2018. Leiligheten ligger i byggets toppetasje og har en arealeffektiv planløsning med mye lysinnslipp. Her finner man en innbydende stue, pent kjøkken, delikat bad med gulvvarme og et romslig soverom. Leiligheten disponerer en praktisk bod i kjeller. Det er felles veranda for beboerne.
Velkommen til visning!
NB: Knappen for å vise hele beskrivelsen har kun en visuell effekt.
NB: Knappen for å vise hele beskrivelsen har kun en visuell effekt.
Salgsoppgaven beskriver vesentlig og lovpålagt informasjon om eiendommen
Se komplett salgsoppgaveNyttige lenker
Nærområdet
DNB Eiendom AS
Verdifulle salg
Annonseinformasjon
| FINN-kode | 419335306 |
|---|---|
| Sist endret | 17. mars 2026 08:45 |
| Referanse | 503250266 |
Annonsene kan være mangelfulle i forhold til lovpålagt opplysningsplikt. Før bindende avtale inngås oppfordres interessenter til å innhente komplett informasjon fra meglerforetaket, selger eller utleier.




























