Bildegalleri

Privatmegleren ved Morten Liavaag har gleden av å presentere denne tiltalende enebolig under oppføring beliggende i et nyere og attraktivt boligfelt på nedsiden av Aurdal sentrum.
Tiltalende enebolig under oppføring - Alt på en flate - 2 soverom - 2 bad - Solrik terrasse - Mulighet for innredet 2.et
Prisantydning3 290 000 kr
Nøkkelinfo
- Boligtype
- Enebolig
- Eieform
- Eier (Selveier)
- Soverom
- 2
- Internt bruksareal
- 89 m² (BRA-i)
- Bruksareal
- 94 m²
- Eksternt bruksareal
- 5 m² (BRA-e)
- Balkong/Terrasse
- 37 m² (TBA)
- Byggeår
- 2026
- Rom
- 3
- Tomteareal
- 1 026 m² (eiet)
Fasiliteter
Barnevennlig
Balkong/Terrasse
Garasje/P-plass
Kabel-TV
Offentlig vann/kloakk
Peis/Ildsted
Turterreng
Bredbåndstilknytning
Moderne
Rolig
Om boligen
Denne flotte eneboligen er under oppføring i et nyere og attraktivt boligfelt på nedsiden av Aurdal sentrum. Beliggenheten kombinerer det beste av natur og tilgjengelighet - med gangavstand til Aurdalsfjorden med bade- og fiskemuligheter, kort vei til fotballbane og lysløype, og kun 5 minutters kjøretur til nærmeste barnehage.
Boligen har moderne arkitektur, praktisk planløsning og smakfull innredning. Den leveres med stilrent kjøkken fra Norema med integrerte hvitevarer, kvalitetslaminat, delikate fliser, samt balansert ventilasjon med varmegjenvinning. I tillegg får du en solrik terrasse, hage, og praktisk lagringsplass både innvendig og utvendig. Det er opparbeidet parkering i egen gårdsplass.
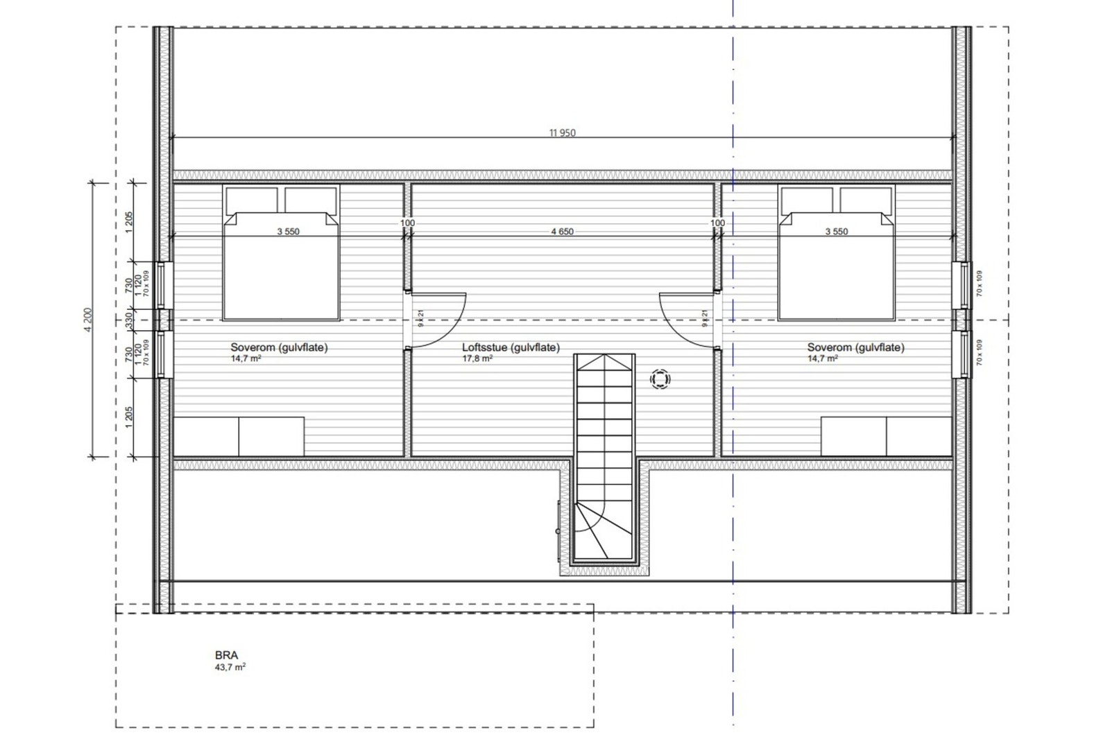
Boligen går over ett plan og inneholder entré med fliser og gulvvarme, bod, to soverom, to bad (det ene med opplegg for vaskemaskin og tørketrommel), samt et åpent og lyst oppholdsrom som kombinerer stue og kjøkken. Det er mulighet for tilvalg med innredet andre etasje.
Boligen har moderne arkitektur, praktisk planløsning og smakfull innredning. Den leveres med stilrent kjøkken fra Norema med integrerte hvitevarer, kvalitetslaminat, delikate fliser, samt balansert ventilasjon med varmegjenvinning. I tillegg får du en solrik terrasse, hage, og praktisk lagringsplass både innvendig og utvendig. Det er opparbeidet parkering i egen gårdsplass.
Boligen går over ett plan og inneholder entré med fliser og gulvvarme, bod, to soverom, to bad (det ene med opplegg for vaskemaskin og tørketrommel), samt et åpent og lyst oppholdsrom som kombinerer stue og kjøkken. Det er mulighet for tilvalg med innredet andre etasje.
NB: Knappen for å vise hele beskrivelsen har kun en visuell effekt.
NB: Knappen for å vise hele beskrivelsen har kun en visuell effekt.
Salgsoppgaven beskriver vesentlig og lovpålagt informasjon om eiendommen
Se komplett salgsoppgaveNyttige lenker
Nærområdet
PrivatMegleren Hallingdal
Kun det beste på dine vegne
Annonseinformasjon
| FINN-kode | 419322978 |
|---|---|
| Sist endret | 26. jan. 2026 10:39 |
| Referanse | 96251134 |
Annonsene kan være mangelfulle i forhold til lovpålagt opplysningsplikt. Før bindende avtale inngås oppfordres interessenter til å innhente komplett informasjon fra meglerforetaket, selger eller utleier.













































