Bildegalleri

Velkommen til Båstadryggen 24B! Dette er en moderne enebolig fra 2020, fordelt over to plan pluss underetasje med integrert garasje.
Solgt
BÅSTAD
Moderne enebolig oppført i 2020 - Takterrasse, hage og flere solrike uteplasser - Garasje - Hybeldel - Nær sjø og marka!
Prisantydning16 500 000 kr
Nøkkelinfo
- Boligtype
- Enebolig
- Eieform
- Eier (Selveier)
- Soverom
- 4
- Internt bruksareal
- 312 m² (BRA-i)
- Bruksareal
- 312 m²
- Balkong/Terrasse
- 26 m² (TBA)
- Byggeår
- 2020
- Energimerking
- B - Gul
- Rom
- 7
- Tomteareal
- 767 m² (eiet)
Fasiliteter
Aircondition
Balkong/Terrasse
Barnevennlig
Garasje/P-plass
Hage
Kjæledyr tillatt
Ingen gjenboere
Offentlig vann/kloakk
Peis/Ildsted
Rolig
Sentralt
Turterreng
Lademulighet
Balansert ventilasjon
Om boligen
Velkommen til Båstadryggen 24B
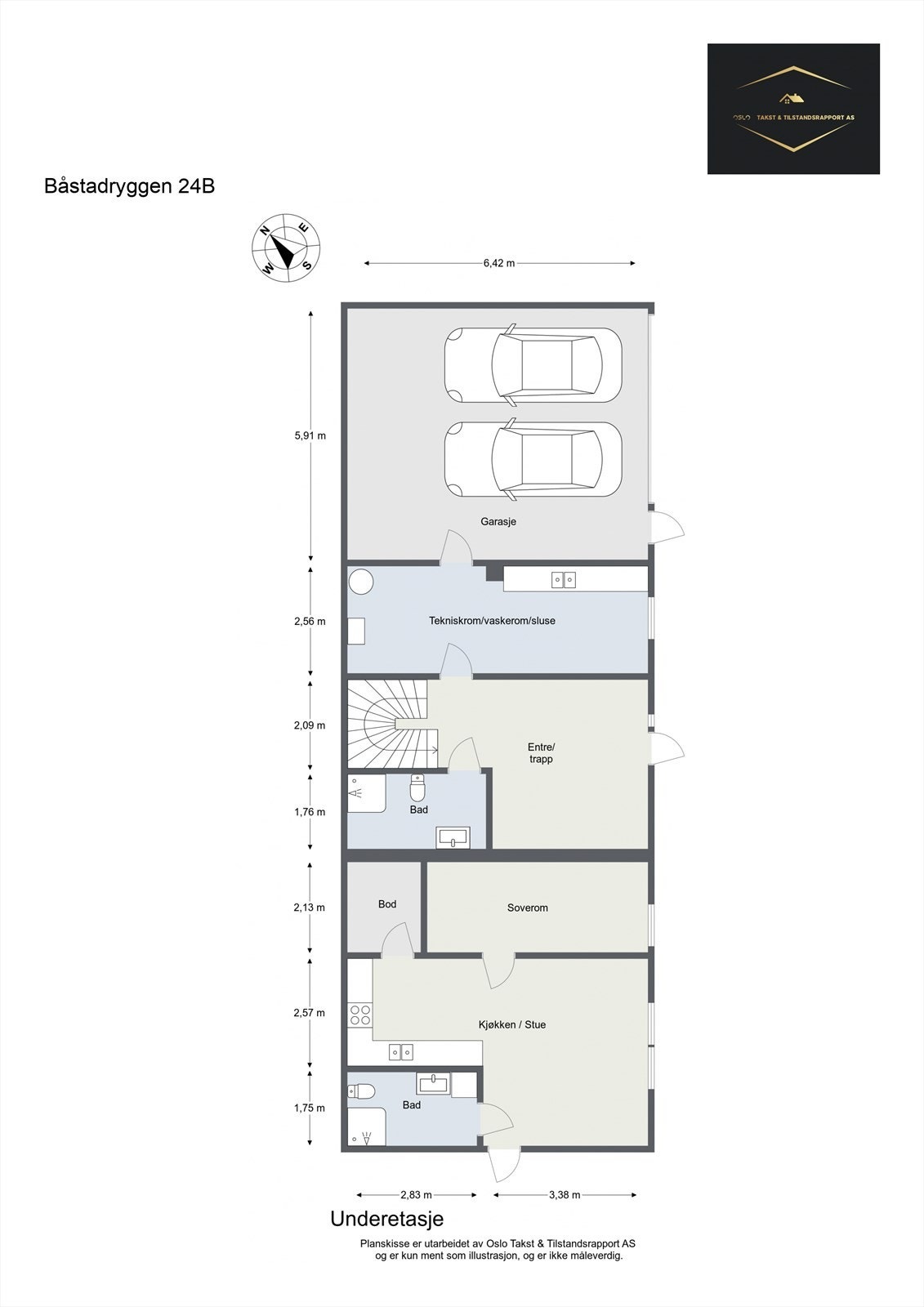
Dette er en lekker enebolig fra 2020, fordelt over to plan pluss underetasje med integrert garasje. Den flotte takterrassen på ca. 26 kvm - et eksklusivt og ettertraktet uterom som virkelig setter prikken over i-en. Boligen ligger attraktivt til nær flotte turstier, Hvalstrand, Leangbukta og Asker sentrum. Området byr på gode fritidstilbud, samtidig som du har enkel tilgang til butikker, skoler, tog og ekspressbuss hvert 5. minutt i rushtid inn til Oslo sentrum
- Innholdsrik enebolig over tre plan, oppført 2020
- Usjenerte og solrike uteområder
- Gjennomført stil og moderne fargevalg
- Peis
- Utleiedel med skattefrie inntekter på kr. 12. 500,- pr. mnd.
- Balansert ventilasjon
- Integrert garasje med plass til to biler
- Rolig beliggenhet uten gjennomkjøring
Dette er en lekker enebolig fra 2020, fordelt over to plan pluss underetasje med integrert garasje. Den flotte takterrassen på ca. 26 kvm - et eksklusivt og ettertraktet uterom som virkelig setter prikken over i-en. Boligen ligger attraktivt til nær flotte turstier, Hvalstrand, Leangbukta og Asker sentrum. Området byr på gode fritidstilbud, samtidig som du har enkel tilgang til butikker, skoler, tog og ekspressbuss hvert 5. minutt i rushtid inn til Oslo sentrum
- Innholdsrik enebolig over tre plan, oppført 2020
- Usjenerte og solrike uteområder
- Gjennomført stil og moderne fargevalg
- Peis
- Utleiedel med skattefrie inntekter på kr. 12. 500,- pr. mnd.
- Balansert ventilasjon
- Integrert garasje med plass til to biler
- Rolig beliggenhet uten gjennomkjøring
NB: Knappen for å vise hele beskrivelsen har kun en visuell effekt.
NB: Knappen for å vise hele beskrivelsen har kun en visuell effekt.
Salgsoppgaven beskriver vesentlig og lovpålagt informasjon om eiendommen
Se komplett salgsoppgaveNyttige lenker
Nærområdet
Nordvik Nydalen
Annonseinformasjon
| FINN-kode | 418751673 |
|---|---|
| Sist endret | 20. nov. 2025 14:49 |
| Referanse | 20-0216/25 |
Annonsene kan være mangelfulle i forhold til lovpålagt opplysningsplikt. Før bindende avtale inngås oppfordres interessenter til å innhente komplett informasjon fra meglerforetaket, selger eller utleier.



































































